+ 16 fotó

Eladó átlagos állapotú ház Szanda
| |  |
| Kedvencbe | Megosztás | Árfigyelő |
- Eladó vagy kiadó:Eladó
- Település:Szanda
- Kategória:Ház
- Alkategória:Családi ház
- Alapterület:63 m2
- Telekterület:1019 m2
- Csere is:Nem
- Hirdető:Cég
- Élő videón megtekinthető:Nem
- Építés éve:1960
- Szobaszám:3
- Állapot:Átlagos állapotú
- Hány szintes az ingatlan:nincs megadva
- Tetőtér:nincs megadva
- Komfortosság:nincs megadva
- Pince:Nincs
- Parkolási lehetőség:Udvaron
- Fűtés:Gáz (konvektor)
- Bútorozottság:nincs megadva
- Fényviszony:nincs megadva
- Tájolás:nincs megadva
- Kilátás:nincs megadva
- Internet:nincs megadva
- Akadálymentesített:nincs megadva
- Energiatanúsítvány:nincs megadva
- Villany:Van
- Víz:Van
- Gáz:Van
- Csatorna:Van

Rucska Lajos
Mondd meg a hirdetőnek, hogy a megveszLAK-on találtad a hirdetést.

Nógrád megye festői szépségű településén, Szanda fóútja mentén...
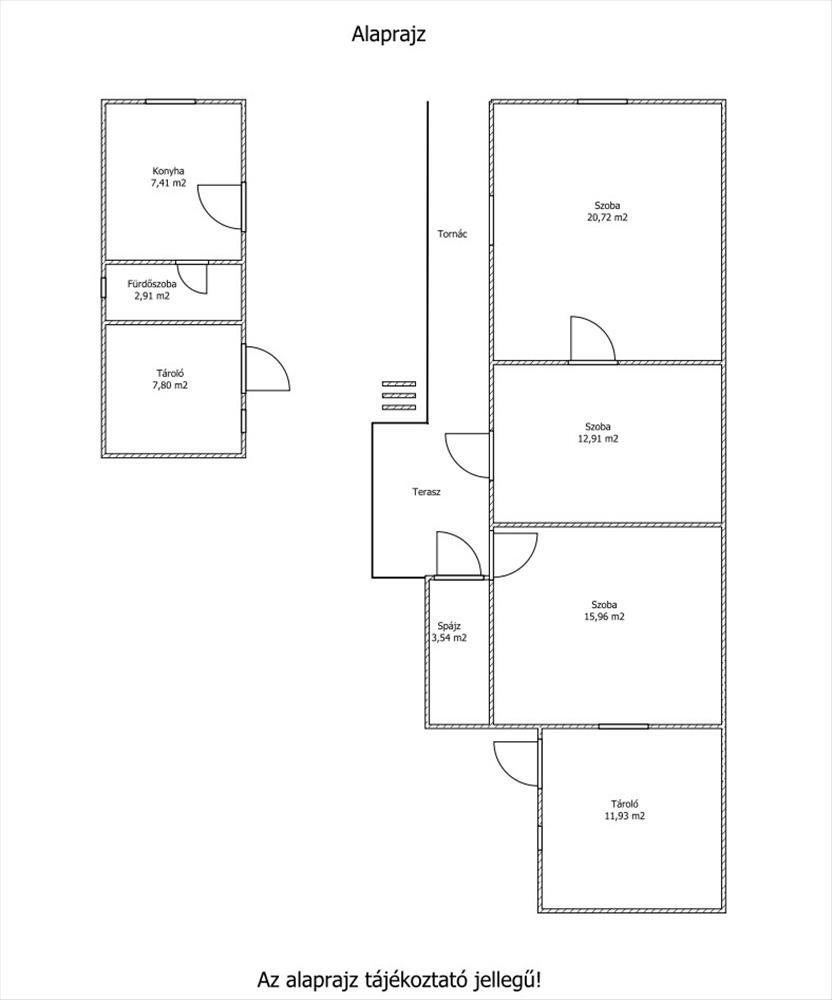
Nógrád megye festői szépségű településén, Szanda fóútja mentén kínálunk megvételre egy 63 m2-es 3 szobás a tornácos házat. a z épület vegyes falazatú, fagerendás. Tető fa szerkezetű, cserép fedéssel. a nyílászárók fa szerkezetűek kétrétegű üvegezéssel. Az épület részben alápincézett. a fűtést gázkonvektorok, a melegvizet villanybojler szolgáltatja. a falak festettek, padozat a szobákban pvc és hajópadló. Az épület folytatásaként tároló épült. Az 1019 m2-es rendezett telken egy különálló melléképület épült, itt található a konyha és a fürdőszoba. Kitűnő választás gazdálkodásra, hétvégi pihenőháznak de turisztikai hasznosításra is. Irányár:16, 0 MFt
FIX 3% lakáshitelre megvehető Hasonló ingatlan hirdetések