Eladó átlagos állapotú ház - Szárliget
- INGYENES HIRDETÉS FELADÁS
Ingatlan adatai
- Eladó vagy kiadó:Eladó
- Település:Szárliget
- Kategória:Ház
- Alkategória:Családi ház
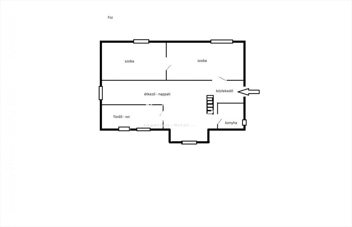
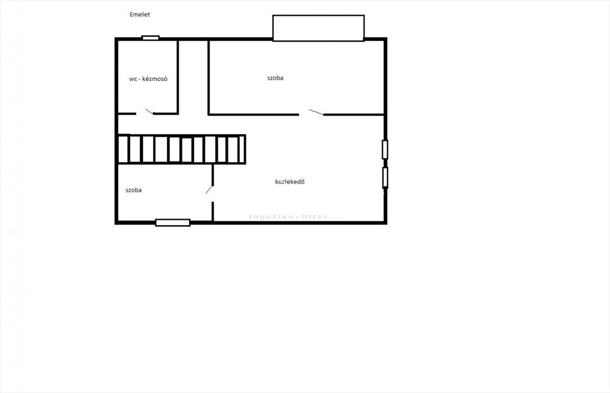
- Alapterület:125 m2
- Telekterület:719 m2
- Csere is:Nem
- Hirdető:Cég
- Élő videón megtekinthető:Nem
- Szobaszám:4
- Állapot:Átlagos állapotú
- Hány szintes az ingatlan:nincs megadva
- Tetőtér:nincs megadva
- Komfortosság:nincs megadva
- Pince:Nincs
- Parkolási lehetőség:nincs megadva
- Fűtés:Gáz (cirko)
- Bútorozottság:nincs megadva
- Fényviszony:nincs megadva
- Tájolás:nincs megadva
- Kilátás:nincs megadva
- Internet:nincs megadva
- Klíma:nincs megadva
- Akadálymentesített:nincs megadva
- Energiatanúsítvány:nincs megadva
- Villany:nincs megadva
- Víz:nincs megadva
- Gáz:nincs megadva
- Csatorna:nincs megadva
- Kapcsolatfelvétel

Ádám Csaba
+36-(70)-677-0893
Mondd meg a hirdetőnek, hogy a megveszLAK-on találtad a hirdetést.
Hitel ajánlatok
Ingatlan hirdetés leírása
Lakáskulcs ingatlan, és hitel iroda eladásra kínálja az alábbi...
Lakáskulcs ingatlan, és hitel iroda eladásra kínálja az alábbi ingatlant.
A festői környezetű Szárliget szépsége mellett kiváló lokációban fekszik, ennek köszönhetően rendkívül közkedvelt, és értékálló környezetben található.
Öröm itt élni, sokszor hallom a Falu lakóitól. Itt még Mindenki köszön a másiknak, még az idegenek is!
A közbiztonság tökéletes.
Közlekedés vonattal, busszal, és autóval is kiváló. a Főváros csak 45 percre található. Sőt kerékpárral 15 perc és már Tatabányán vagyunk. Vonattal csupán két megálló, és a Megyeszékhely központjában találjuk magunkat, ahol Vértes Pláza, bankok, magán orvosi rendelő is megtalálható.
Eladó családi házunk 4 szobás, két wc -s. emeleten az egyik szobában terasz is található, ami véleményem szerint nagyon jó szülői háló lehet.
Ingatlanunk nagyon jó elosztású, sőt könnyen változtatható is!
Ablakok cserélve modern műanyag thermora. Fűtést, és a meleg vizet egy szinte új kombi cirkó gázkazán biztosítja. a jó minőségű fűtésnek köszönhetően a téli időszakban havi 35e Ft a fűtés, nyári időszakban csupán pár ezer Ft a fenntartási költség.
Ezt az ingatlant jó szívvel ajánlom fiataloknak, és idősebbeknek egyaránt.
Akik felújításban, átalakításban gondolkoznak azoknak a Lakáskulcsos csapat soron kívül a rendelkezésére áll.
Amennyiben felkeltettem az érdeklődését, kérem hívjon, és nézzük meg közösen!
Irodánk ingyenes szolgáltatásai:
- Banki hitelügyintézés vezető partner bankjaink termékeivel
- CSOK ügyintézés
- Ingyenes ingatlan állapotfelmérés, tanácsadás.
Irodánk egyéb szolgáltatásai: Ingatlan teljes körű felújítása- átalakítása profin, szakszerűen.
Kérem tekintse meg további hirdetéseimet is, várom hívását!
Ádám Csaba az Ön ingatlan szakértője: +36(70)677 0893 FIX 3% lakáshitelre megvehető

