Eladó jó állapotú ház - Szarvaskő
- INGYENES HIRDETÉS FELADÁS
Ingatlan adatai
- Eladó vagy kiadó:Eladó
- Település:Szarvaskő
- Kategória:Ház
- Alkategória:Családi ház
- Alapterület:424 m2
- Telekterület:2013 m2
- Csere is:Nem
- Hirdető:Cég
- Élő videón megtekinthető:Nem
- Építés éve:1992
- Szobaszám:6
- Állapot:Jó állapotú
- Hány szintes az ingatlan:2 szintes
- Tetőtér:nincs megadva
- Komfortosság:nincs megadva
- Pince:nincs megadva
- Parkolási lehetőség:Udvaron
- Fűtés:Egyéb
- Bútorozottság:nincs megadva
- Fényviszony:Napfényes
- Tájolás:nincs megadva
- Kilátás:nincs megadva
- Internet:nincs megadva
- Klíma:Van
- Akadálymentesített:nincs megadva
- Energiatanúsítvány:nincs megadva
- Villany:nincs megadva
- Víz:nincs megadva
- Gáz:nincs megadva
- Csatorna:nincs megadva
- Kapcsolatfelvétel

Angyal Tamás József
+36-(70)-344-3132
Mondd meg a hirdetőnek, hogy a megveszLAK-on találtad a hirdetést.
Referencia szám: M238680
Hitel ajánlatok
Ingatlan hirdetés leírása
Eladó Ház, Szarvaskő
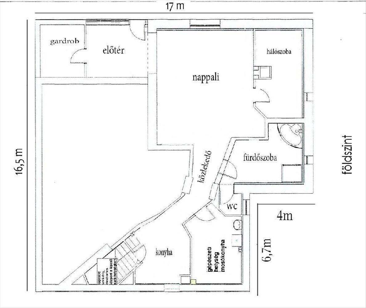
Heves megye, Szarvaskő, rendkívüli adottságokkal rendelkező családi ház eladó. a Makovecz Imre tervei alapján, a 1990-es években épült ingatlan egyedi formavilágával, kialakításával és a környezettel, melyben épült, páratlan lehetőségeket rejt magában. Magáncélra lakóingatlanként, pihenőházként használva vagy szállásadó helyként, illetve rendezvények színhelyeként üzemeltetve is nagyszerű választás. Az épület az elmúlt években felújításon esett át, melynek során törekedtek megtartani jellegzetes építészeti stílusát, tulajdonságait, de modernizálni is. a Bükk lábainál elhelyezkedő település dísze a 2013 nm -en elterülő ingatlan. Az erdősávval szegélyezett területen található egy gondozott kert; dísztó; nyitott, faszerkezetű, jól felszerelt kerti konyha kemencével; nyársaló; egy fémszerkezetes üvegház; továbbá egy medence. a lakóépület 3 szinten helyezkedik el. a legalsó szint külön bejárattal rendelkező, önálló lakrész, melyben nappali, hálószoba, konyha/étkező, fürdőszoba(szaunával, masszázs zuhanykabinnal), wc és előszoba kapott helyet. Ugyanitt kapott helyet a ház gépészeti helyisége is. a középső szinten helyezkedik el a nagyméretű nappali, mely a belső terek közül leginkább hivatott az egyedi stílus közvetítésére üvegkupolájának és faszerkezetes kialakításának köszönhetően. Ezen térhez csatlakozik egy közel 100 nm -es terasz is. a nappaliból nyílóan alakítottak ki egy konyhát, illetve egy WC-t. a legfelső emeleten, a nappalit felülről ölelő folyosón, három lakószoba került kialakításra, melyek közül mindegyik saját fürdőszobát és WC-t kapott. Az épületben külön padló- és fal-fűtés, illetve hűtésrendszer üzemel, továbbá minden szobába klímaberendezéseket telepítettek, valamint szellőztető légrendszert is kiépítettek. a fűtéséről és melegvíz-ellátásról napkollektor és a svájci Alpha InnoTech hőszivattyús levegőkazán gondoskodik. Amennyiben felkeltették figyelmét a képek és a leírtak, szeretne személyesen is meggyőződni azok valóságtartalmáról, kérem, keressen, egyeztessünk időpontot!
Érd: Angyal Tamás József +36 70 344 3132
Referencia szám: m238680 Hitel.hu - Hasonlítsa össze a bankok lakáshitel ajánlatait
Tetszett ez az eladó Szarvaskői jó állapotú 6 szobás családi ház? Hívd fel a hirdetőt most, és tudj meg mindent erről az eladó családi házról! Ha gondolod nézelődj tovább az eladó ház Szarvaskő oldal hirdetései között. Ennek az eladó háznak az ára 160000000 Ft és mivel az alapterülete 424 négyzetméter, ezért az átlagos négyzetméterára 377358 HUF/m2.
Az eladó házak menüpontban további hirdetések között is böngészhetsz. Ha van kedved, akkor böngészhetsz a Angyal Tamás József összes hirdetése között, vagy akár a/az OTPip Eger Kertész utca 25 - OTP Ingatlanpont Iroda összes hirdetése között is.

