Eladó jó állapotú ház - Szászvár
- INGYENES HIRDETÉS FELADÁS
Ingatlan adatai
- Eladó vagy kiadó:Eladó
- Település:Szászvár
- Kategória:Ház
- Alkategória:Családi ház
- Alapterület:70 m2
- Telekterület:531 m2
- Csere is:Nem
- Hirdető:Cég
- Élő videón megtekinthető:Nem
- Építés éve:1964
- Szobaszám:2
- Állapot:Jó állapotú
- Hány szintes az ingatlan:Földszintes
- Tetőtér:nincs megadva
- Komfortosság:nincs megadva
- Pince:nincs megadva
- Parkolási lehetőség:Udvaron
- Fűtés:Gáz (konvektor)
- Bútorozottság:nincs megadva
- Fényviszony:Jó
- Tájolás:nincs megadva
- Kilátás:nincs megadva
- Internet:nincs megadva
- Klíma:nincs megadva
- Akadálymentesített:nincs megadva
- Energiatanúsítvány:nincs megadva
- Villany:nincs megadva
- Víz:nincs megadva
- Gáz:nincs megadva
- Csatorna:nincs megadva
- Kapcsolatfelvétel

Vincze László György
+36-(20)-938-4141
Mondd meg a hirdetőnek, hogy a megveszLAK-on találtad a hirdetést.
Referencia szám: M323898
Hitel ajánlatok
Ingatlan hirdetés leírása
Eladó Ház, Szászvár, Eladó jó állapotú ház - Szászvár
Eladó 2 szobás részben felújított ikerház Szászváron ideális választás családnak vagy befektetőknek egyaránt jó befektetés!
Baranya vármegyében, Bonyhád és Komló között elhelyezkedő Szászváron kínáljuk eladásra a 70 nm -es, 2 szobás ikerházat, amely egy 531 nm -es telekkel rendelkezik. a téglaépítésű ingatlan cserépfedésű tetővel bír, a felújítás már megkezdődött, így új tulajdonosa saját elképzelése szerint alakíthatja tovább.
A nyílászárók már korszerű műanyag hőszigetelt ablakokra lettek cserélve, a hátsó rész felé teraszajtó került beépítésre, amely lehetőséget ad egy kényelmes pihenő terasz kialakítására. Az elektromos hálózat felújított, a konvektorok cseréjéhez pedig a radiátorok már rendelkezésre állnak.
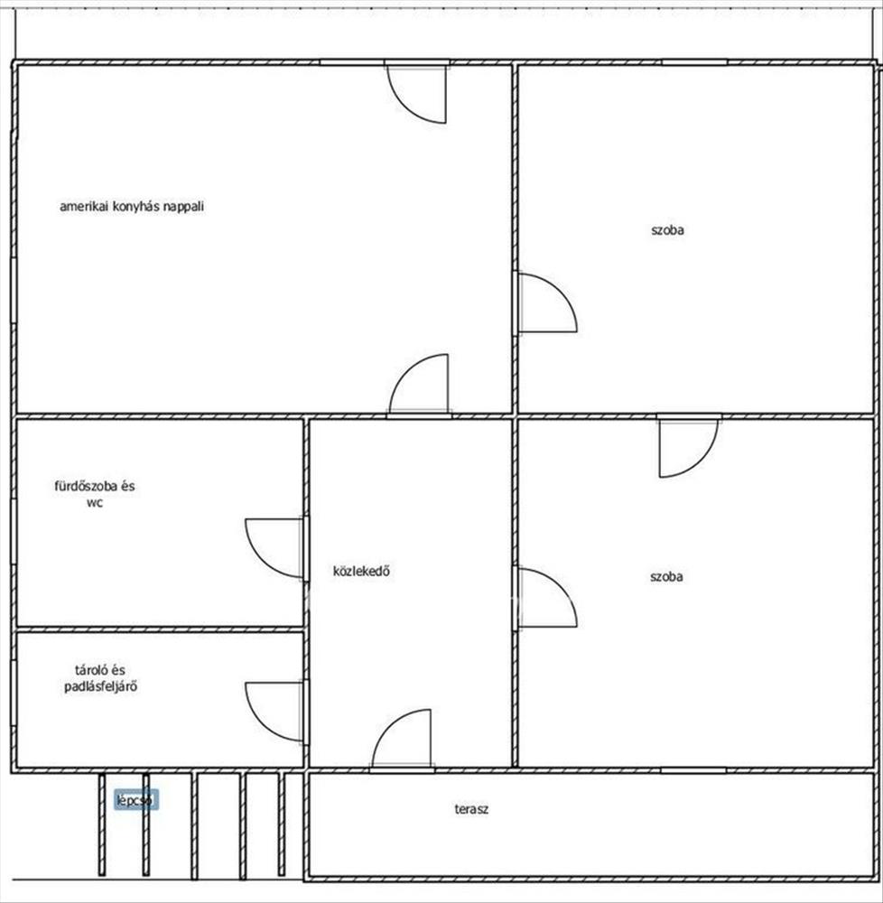
Az ingatlan praktikus elrendezéssel rendelkezik: a tágas folyosóról nyílnak a helyiségek, ami jó átláthatóságot és kényelmes közlekedést biztosít.
Alaprajzi adatok:
Folyosó: 6 nm
Utcai szoba: 18 nm
Hátsó szoba: 16 nm
Amerikai nappalis konyha: 20 nm + részben kialakított terasz
Fürdőszoba + wc: 5 nm
Tároló és padlásfeljáró: 5 nm a padlás beépítésével könnyen bővíthető a hasznos terület.
A fűtést jelenleg gázkonvektor biztosítja, így a korszerűbb fűtési megoldások, például cirkó vagy hőszivattyú, kiépítése is egyszerűen megoldható.
Szászvár község kitűnő infrastruktúrával rendelkezik: helyben található iskola, óvoda, bölcsőde, orvosi rendelő, gyógyszertár, üzletek, posta, vendéglő. a település kiváló buszmegközelítéssel bír, rendszeres járatok indulnak Komló, Dombóvár és Bonyhád irányába.
CSOK vagy támogatott 3%hitel igényléséhez is szakértő segítséget nyújtunk ügyfeleinknek, hogy a vásárlása gördülékeny és zökkenőmentes legyen.
Amennyiben felkeltette érdeklődését ez az ingatlan, kérem, keressen bizalommal a hét bármely napján! M323898
26900000 Ft
Referencia szám: m323898 FIX 3% lakáshitelre megvehető
Tetszett ez az eladó Szászvári jó állapotú 2 szobás családi ház? Hívd fel a hirdetőt most, és tudj meg mindent erről az eladó családi házról! Ha gondolod nézelődj tovább az eladó ház Szászvár oldal hirdetései között. Ennek az eladó háznak az ára 26900000 Ft és mivel az alapterülete 70 négyzetméter, ezért az átlagos négyzetméterára 384286 HUF/m2.
Az eladó házak menüpontban további hirdetések között is böngészhetsz. Ha van kedved, akkor böngészhetsz a Vincze László György összes hirdetése között, vagy akár a/az OTPip Pécs Király utca 75 - OTP Ingatlanpont Iroda összes hirdetése között is.

