Eladó jó állapotú ház - Szeged
- INGYENES HIRDETÉS FELADÁS
Ingatlan adatai
- Eladó vagy kiadó:Eladó
- Település:Szeged
- Kategória:Ház
- Alkategória:Családi ház
- Alapterület:200 m2
- Telekterület:1453 m2
- Csere is:Nem
- Hirdető:Cég
- Élő videón megtekinthető:Nem
- Építés éve:1994
- Szobaszám:7 + 1 fél
- Állapot:Jó állapotú
- Hány szintes az ingatlan:Földszintes
- Tetőtér:nincs megadva
- Komfortosság:nincs megadva
- Pince:nincs megadva
- Parkolási lehetőség:nincs megadva
- Fűtés:Gáz (cirko)
- Bútorozottság:nincs megadva
- Fényviszony:Napfényes
- Tájolás:DK
- Kilátás:nincs megadva
- Internet:nincs megadva
- Klíma:nincs megadva
- Akadálymentesített:nincs megadva
- Energiatanúsítvány:nincs megadva
- Villany:Van
- Víz:Van
- Gáz:Van
- Csatorna:Van
- Kapcsolatfelvétel

Roncsák Martin
+36-(20)-251-9117
Mondd meg a hirdetőnek, hogy a megveszLAK-on találtad a hirdetést.
Referencia szám: HZ075143
Hitel ajánlatok
Ingatlan hirdetés leírása
Eladó ház, Szeged, Eladó jó állapotú ház - Szeged
Békés, csendes környezetben minden igényt kielégítő családi ház + MELLÉKÉPÜLET
NAGYCSALÁDOSOK, összeköltözők, befektetők FIGYELMÉBE!
Szeged-Baktó egyik kedvelt utcájában igényes házak szomszédságában szépen, teljes körűen felújított napfényes, kétszintes, kettő különálló lakrésszel rendelkező családi ház és egy teljes körűen felújított melléképület eladó.
Az épület 1453 m2-es telken helyezkedik el, amely további lehetőséget is rejt magában. a telek hátsó részén tervezett utca megnyitásával 700 m2-es építési telek választható le.
Az épület 1994-ben téglából épült, külső -, belső szigetelést kapott.
Az elmúlt években (2020. ) Jelentős felújítások történtek, mely során
- korszerűsítették a víz-és elektromos hálózatot ( 3 x 16 a - bővíthető)
- modern hőszigetelt nyílászárók. Redőnnyel-, szúnyoghálóval felszereltek
- Baxi kazán, Ariston vízmelegítő
- Gree inverteres klíma
- konyha, fürdő új köntösbe öltözött
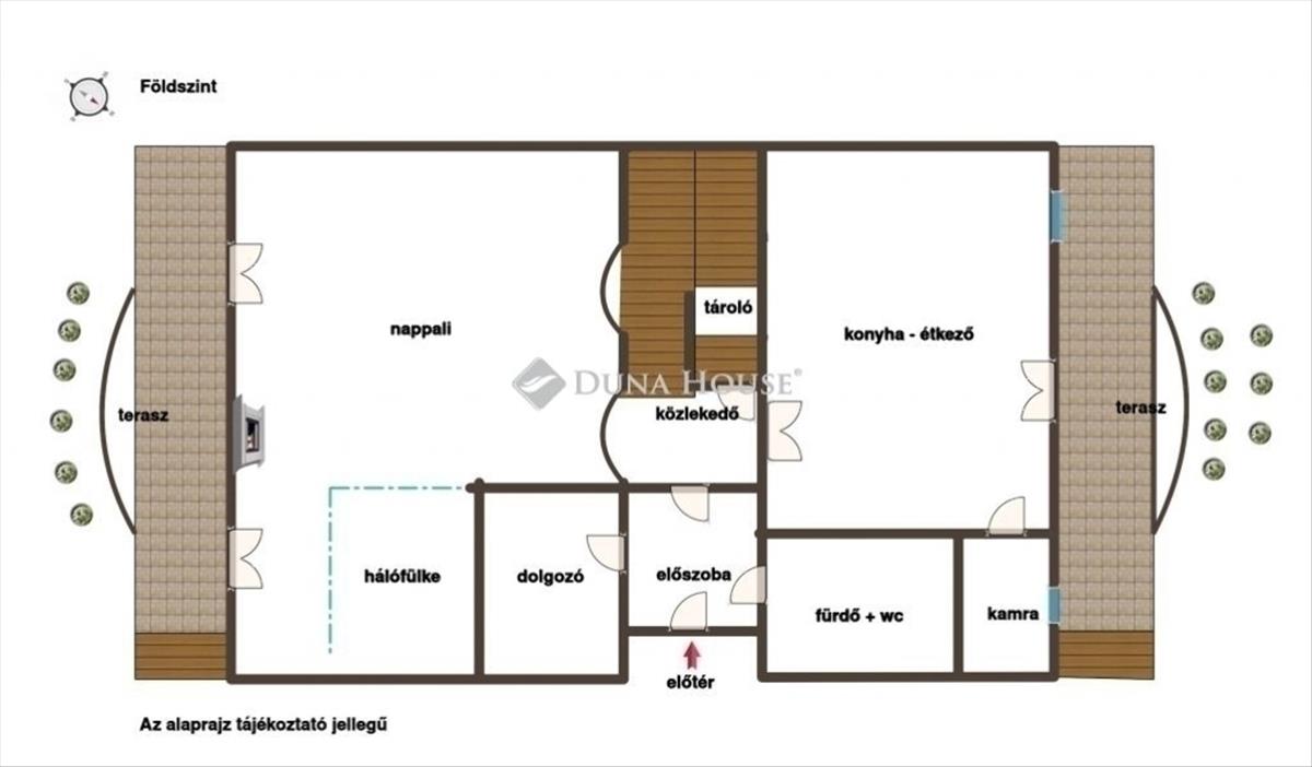
A főépület lakótere: 137, 71 / 166, 32 m2
Az ingatlan elosztása praktikus, világos, jó adottságokkal rendelkezik.
A földszinten található a tágas, napfényes nappali, konyha-étkező, kamra, szoba, hálófülke, zuhanyzós fürdő és tároló.
Fő élettér a földszinti hangulatos, jó fényviszonyokkal rendelkező tágas nappali, hangulatát a kandalló növeli amely téli napokon hozzájárulhat az ünnepi hangulat megteremtéséhez. a konyha-étkezőbe minőségi bútor került beépítésre, gépesített. a nappaliból és a konyha-étkezőből a nyílik 1-1 fedett terasz, mely kiválóan alkalmas társasági életre.
A felső szintre igényes lépcső vezet, ahol amerikai konyha + nappali, 3 külön bejáratú szoba és fürdő került kialakításra. a környezettel való kapcsolatot loggia biztosítja, mely a nappaliból és a szobából is megközelíthető.
A melléképület teljes körű felújítása 2 évvel ezelőtt történt ( szigetelés, vezetékek, nyílászárók)
Lakótere 45 m2, ahol 2 szoba, konyha-étkező, kamra és fürdő került kialakításra.
A fűtésről fatüzelésű kandalló, konvektor valamint inverteres klíma gondoskodik.
A környezettel való kapcsolatot 20 m2-es terasz biztosítja.
Falai festettek, nappali és a szobák parkettával, a többi helyiség járólappal burkolt.
Az ingatlan műszakilag, és esztétikailag kifogástalan állapotban van.
A lakrészek önálló mérőórákkal ( víz, villany, gáz) felszereltek.
Előnyei:
- egyedi gáz cirkó, konvektor, kandalló
- klíma
- nyílászárók hőszigeteltek, szúnyoghálóval, redőnnyel felszereltek
- szigetelt épület
- fúrt kút
A kert szépen rendben tartott, parkosított.
A tökéletességhez a kiépített automata öntözőrendszer is hozzájárul.
A lakók rendelkezésére áll egy utcai bejáratú 16 m2-es könnyűszerkezetes garázs.
Szép, kellemes, zöldövezeti környék, családi házas övezet, jó infrastruktúrával rendelkezik. Az épület előtt kerékpárút húzódik, közelében autóbuszmegálló található.
Ajánlom azoknak, akik csendes, nyugodt környéken keresnek tágas családi otthont.
Ha felkeltette érdeklődését bővebb információért hívjon bizalommal!
Referencia szám: hz075143 Hitel.hu - Hasonlítsa össze a bankok lakáshitel ajánlatait
Tetszett ez az eladó Szegedi jó állapotú 7 egész és 1 fél szobás családi ház? Hívd fel a hirdetőt most, és tudj meg mindent erről az eladó családi házról! Ha gondolod nézelődj tovább az eladó ház Szeged oldal hirdetései között. Ennek az eladó háznak az ára 199900000 Ft és mivel az alapterülete 200 négyzetméter, ezért az átlagos négyzetméterára 999500 HUF/m2.
Az eladó házak menüpontban további hirdetések között is böngészhetsz. Ha van kedved, akkor böngészhetsz a Roncsák Martin összes hirdetése között, vagy akár a/az Duna House Szeged, Mérey utca összes hirdetése között is.

