Eladó újszerű állapotú ház - Szeged
- INGYENES HIRDETÉS FELADÁS
Ingatlan adatai
- Eladó vagy kiadó:Eladó
- Település:Szeged
- Kategória:Ház
- Alkategória:Családi ház
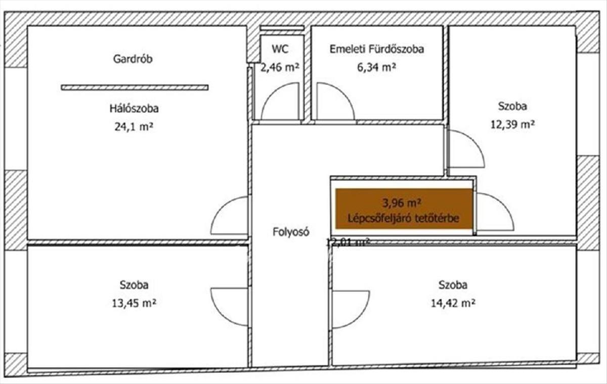
- Alapterület:302 m2
- Telekterület:540 m2
- Csere is:Nem
- Hirdető:Cég
- Élő videón megtekinthető:Nem
- Építés éve:2019
- Szobaszám:7
- Állapot:Újszerű, kitűnő
- Hány szintes az ingatlan:2 szintes
- Tetőtér:nincs megadva
- Komfortosság:nincs megadva
- Pince:nincs megadva
- Parkolási lehetőség:Teremgarázsban
- Fűtés:Gáz (cirko)
- Bútorozottság:nincs megadva
- Fényviszony:Jó
- Tájolás:nincs megadva
- Kilátás:nincs megadva
- Internet:nincs megadva
- Klíma:nincs megadva
- Akadálymentesített:nincs megadva
- Energiatanúsítvány:nincs megadva
- Villany:Van
- Víz:Van
- Gáz:Van
- Csatorna:Van
- Kapcsolatfelvétel

Jószai Olívia
+36-(70)-677-4669
Mondd meg a hirdetőnek, hogy a megveszLAK-on találtad a hirdetést.
Referencia szám: M321570
Hitel ajánlatok
Ingatlan hirdetés leírása
Eladó Ház, Szeged, Eladó újszerű állapotú ház - Szeged
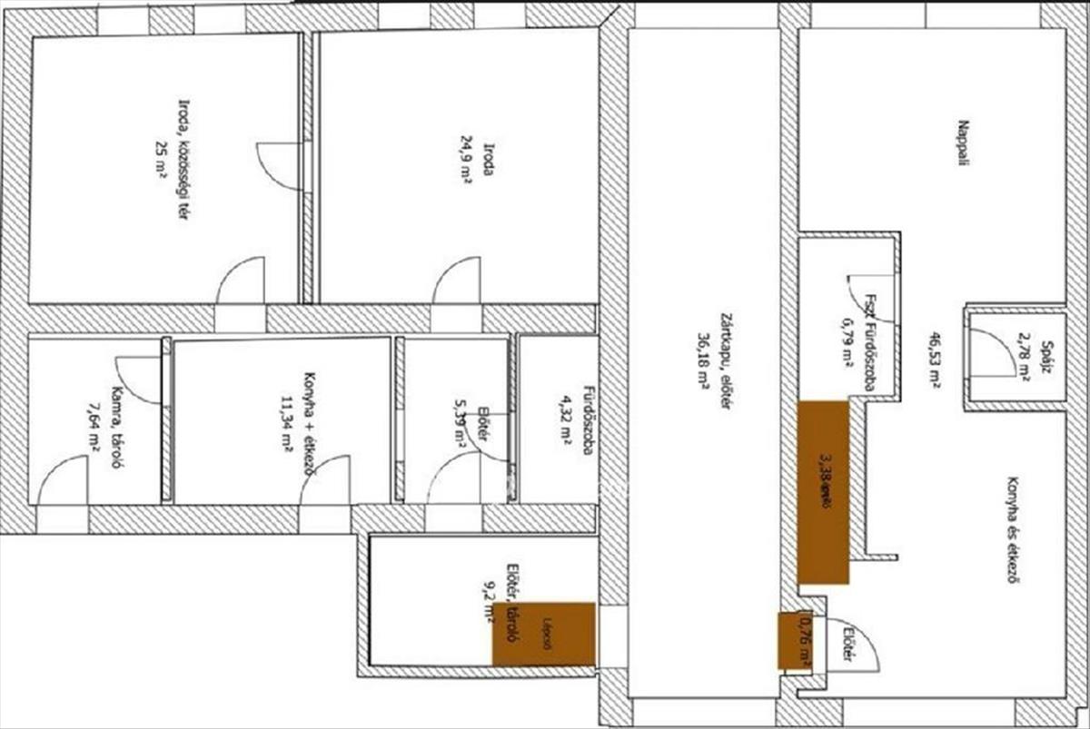
Szeged Alsóvárosának frekventált részén, a Mátyás tér közvetlen közelében eladó egy 540 nm -es telken fekvő, összesen 302 nm alapterületű, 2019-ben felújított, két különálló épületből álló családi házegyüttes.
Az épületek közös, zárt kapun keresztül közelíthetők meg. a lakrészek külön villany- és gázórákkal rendelkeznek, így a fogyasztás a támogatott kategórián belül marad. Az irányár a felújított, befejezett alapterületre vonatkozik.
Ezen felül rendelkezésre áll még egy 80 nm -es pince, valamint egy beépíthető tetőtér is.
A főépület 167 nm -es családi lakóházként funkcionál. a kisebb, 88 nm -es épület jelenleg irodaként használatos. a tető cseréje és a szigetelés 2019-ben megtörtént, a fűtés kondenzációs kazánnal és klímával megoldott. Az éves gázfogyasztás mindössze 726 nm .
Az udvaron több autó számára van beállási lehetőség. a ház előtt 3 utcai parkoló áll rendelkezésre. Az ingatlan alacsony rezsijű, sokoldalúan hasznosítható. Ideális választás mindazoknak, akik modern technológiájú, csendes környezetben elhelyezkedő, mégis minden igényt kielégítő kétgenerációs otthont, keresnek.
További információért hívjon bizalommal akár hétvégén is! Megtekintésre telefonos egyeztetés alapján van lehetőség.
Referencia szám: m321570-ml Hitel.hu - Hasonlítsa össze a bankok lakáshitel ajánlatait
Tetszett ez az eladó Szegedi újszerű állapotú 7 szobás családi ház? Hívd fel a hirdetőt most, és tudj meg mindent erről az eladó családi házról! Ha gondolod nézelődj tovább az eladó ház Szeged oldal hirdetései között. Ennek az eladó háznak az ára 297000000 Ft és mivel az alapterülete 302 négyzetméter, ezért az átlagos négyzetméterára 983444 HUF/m2.
Az eladó házak menüpontban további hirdetések között is böngészhetsz. Ha van kedved, akkor böngészhetsz a Jószai Olívia összes hirdetése között, vagy akár a/az OTPip Szentes Petőfi utca 12 - OTP Ingatlanpont Iroda összes hirdetése között is.

