Eladó felújítandó ház - Szegvár
- INGYENES HIRDETÉS FELADÁS
Ingatlan adatai
- Eladó vagy kiadó:Eladó
- Település:Szegvár
- Kategória:Ház
- Alkategória:Családi ház
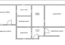
- Alapterület:83 m2
- Telekterület:1079 m2
- Csere is:Nem
- Hirdető:Cég
- Élő videón megtekinthető:Nem
- Építés éve:1960
- Szobaszám:1 + 1 fél
- Állapot:Felújítandó
- Hány szintes az ingatlan:Földszintes
- Tetőtér:nincs megadva
- Komfortosság:nincs megadva
- Pince:nincs megadva
- Parkolási lehetőség:Udvaron
- Fűtés:Házközponti
- Bútorozottság:nincs megadva
- Fényviszony:Közepes
- Tájolás:nincs megadva
- Kilátás:nincs megadva
- Internet:nincs megadva
- Klíma:nincs megadva
- Akadálymentesített:nincs megadva
- Energiatanúsítvány:nincs megadva
- Villany:Telken belül
- Víz:Telken belül
- Gáz:Van
- Csatorna:nincs megadva
- Kapcsolatfelvétel

Lázár Krisztina
+36-(30)-223-3606
Mondd meg a hirdetőnek, hogy a megveszLAK-on találtad a hirdetést.
Referencia szám: M305428
Ingatlan hirdetés leírása
Eladó Ház, Szegvár, Eladó felújítandó ház - Szegvár
Csak az OTP Ingatlanpontnál! ! !
Eladásra kínálunk Csongrád-Csanád vármegyében Szegváron egy kis kertes házat. Az ingatlan csendes forgalomtól mentes utcájában található, egy perc sétára a Kurca folyótól. a falak 60%-át kicserélték téglára, a maradék vályogfalakat aláfalazták, így a ház vízszigetelése tökéletes. a fűtés vegyestüzelésű kazánról működik, de a gázcsonk a telekhatáron van. a melegvizet villanybojler adja. a 1079m2-es telek lehetőséget ad bővítésre, kertészkedésre. Aki szereti a csendet, szeret nagyokat sétálni, horgászni, annak tökéletes választás.
Az OTP Bankcsoport teljes körű ügyintézéssel áll az eladók és a vevők rendelkezésére! a kínálatunkból választott ingatlan finanszírozásához kedvezményes hitel konstrukciókat kínálunk. Legújabb szolgáltatásként ajánlom minden kedves ügyfelem részére az OTP Bank által közvetített Babaváró, CSOK plusz, Falusi csok, vagy egyéb kölcsönök intézését.
Az adásvételi szerződés megkötéséhez igény szerint megbízható ügyvédi közreműködést biztosítunk, és segítséget nyújtunk az adásvételhez kapcsolódó ügyek intézéséhez.
Érdeklődni: Lázár Krisztina 06302233606
Referencia szám: m305428-ml FIX 3% lakáshitelre megvehető


