- >>
- eladó ingatlanok
- >>
- eladó ház
- >>
- eladó ház Szegvár
- >>
Eladó felújítandó ház - Szegvár
| | |||
| Kedvencnek jelölöm | Elküldöm emailben | Megosztás | Szavazás |
| FIX 3% lakáshitelre megvehető | |||
| 9 800 000 HUF | |||
Ingatlan adatai
- Eladó vagy kiadó:Eladó
- Település:Szegvár
- Kategória:Ház
- Alkategória:Családi ház
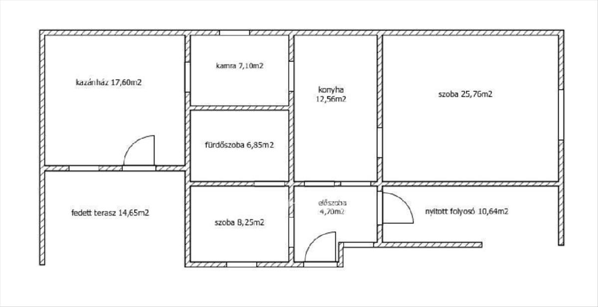
- Alapterület:83 m2
- Telekterület:1079 m2
- Csere is:Nem
- Hirdető:Cég
- Élő videón megtekinthető:Nem
- Építés éve:1960
- Szobaszám:1 + 1 fél
- Állapot:Felújítandó
- Hány szintes az ingatlan:Földszintes
- Tetőtér:nincs megadva
- Komfortosság:nincs megadva
- Parkolási lehetőség:Udvaron
- Fűtés:Házközponti
- Bútorozottság:nincs megadva
- Fényviszony:Közepes
- Tájolás:nincs megadva
- Kilátás:nincs megadva
- Internet:nincs megadva
- Akadálymentesített:nincs megadva
- Energiatanúsítvány:nincs megadva
- Villany:Telken belül
- Víz:Telken belül
- Gáz:Van
- Csatorna:nincs megadva
- Üzenetküldés
- Hívás

Referencia szám: M305428

Ingatlan hirdetés leírása
Eladó Ház, Szegvár, Eladó felújítandó ház - Szegvár
Csak az OTP Ingatlanpontnál! ! !Eladásra kínálunk Csongrád-Csanád vármegyében Szegváron egy kis kertes házat. Az ingatlan csendes forgalomtól mentes utcájában található, egy perc sétára a Kurca folyótól. a falak 60%-át kicserélték téglára, a maradék vályogfalakat aláfalazták, így a ház vízszigetelése tökéletes. a fűtés vegyestüzelésű kazánról működik, de a gázcsonk a telekhatáron van. a melegvizet villanybojler adja. a 1079m2-es telek lehetőséget ad bővítésre, kertészkedésre. Aki szereti a csendet, szeret nagyokat sétálni, horgászni, annak tökéletes választás.
Az OTP Bankcsoport teljes körű ügyintézéssel áll az eladók és a vevők rendelkezésére! a kínálatunkból választott ingatlan finanszírozásához kedvezményes hitel konstrukciókat kínálunk. Legújabb szolgáltatásként ajánlom minden kedves ügyfelem részére az OTP Bank által közvetített Babaváró, CSOK plusz, Falusi csok, vagy egyéb kölcsönök intézését.
Az adásvételi szerződés megkötéséhez igény szerint megbízható ügyvédi közreműködést biztosítunk, és segítséget nyújtunk az adásvételhez kapcsolódó ügyek intézéséhez.
Irodáink Szentes, Petőfi utca 12. (A buszmegálló felől) és Csongrád, Fő utca 54. Szám alatt várja a személyes érdeklődőket.
Akár hétvégén is hívható vagyok! Amennyiben igényli, kérem küldjön SMS-t és szívesen visszahívom!
Referencia szám: m305428-ml FIX 3% lakáshitelre megvehető


