Eladó felújítandó ház - Szegvár
- INGYENES HIRDETÉS FELADÁS
Ingatlan adatai
- Eladó vagy kiadó:Eladó
- Település:Szegvár
- Kategória:Ház
- Alkategória:Családi ház
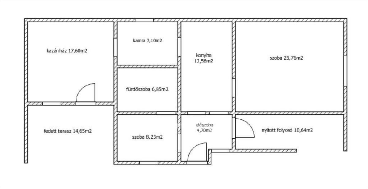
- Alapterület:83 m2
- Telekterület:1079 m2
- Csere is:Nem
- Hirdető:Cég
- Élő videón megtekinthető:Nem
- Építés éve:1960
- Szobaszám:1 + 1 fél
- Állapot:Felújítandó
- Hány szintes az ingatlan:Földszintes
- Tetőtér:nincs megadva
- Komfortosság:nincs megadva
- Pince:nincs megadva
- Parkolási lehetőség:Udvaron
- Fűtés:Egyéb
- Bútorozottság:nincs megadva
- Fényviszony:Közepes
- Tájolás:nincs megadva
- Kilátás:nincs megadva
- Internet:nincs megadva
- Klíma:nincs megadva
- Akadálymentesített:nincs megadva
- Energiatanúsítvány:nincs megadva
- Villany:Telken belül
- Víz:Telken belül
- Gáz:Van
- Csatorna:nincs megadva
- Kapcsolatfelvétel

Arnoth-Kuczora Eszter
+36-(30)-472-6467
Mondd meg a hirdetőnek, hogy a megveszLAK-on találtad a hirdetést.
Referencia szám: M323220
Hitel ajánlatok
Ingatlan hirdetés leírása
Eladó Ház, Szegvár, Eladó felújítandó ház - Szegvár
Csak az OTP Ingatlanpontnál!
Eladásra kínálunk Szegvár településen, Csongrád-Csanád vármegye területén egy 83 m2-es kertes házat, amely csendes, forgalomtól mentes utcában helyezkedik el, mindössze egy perc sétára a Kurca folyótól. Az ingatlan nyugodt, természetközeli környezetet kínál, ideális választás mindazok számára, akik értékelik a békét, a nagy sétákat vagy akár a horgászat nyújtotta kikapcsolódást. a ház falainak 60%-át téglára cserélték, a megmaradt vályogfalakat aláfalazták, így az épület vízszigetelése kiváló állapotú. a fűtést vegyestüzelésű kazán biztosítja, ugyanakkor a gázcsonk a telekhatáron található, ami lehetőséget ad a későbbi gázfűtés kialakítására. a melegvíz-ellátásról villanybojler gondoskodik. Az 1079 m2-es telek tágas teret kínál bővítésre, kertészkedésre vagy akár további melléképületek kialakítására. Az ingatlan belső munkálatai, az új tulajdonosát várja.
Az Otthon Start Hitelprogram keretében az OTP Bankcsoport teljes körű ügyintézéssel áll az eladók és a vevők rendelkezésére. a kínálatunkból választott ingatlan finanszírozásához kedvezményes hitelkonstrukciókat biztosítunk, valamint lehetőséget kínálunk az OTP Bank által közvetített Babaváró, CSOK plusz, Falusi CSOK és egyéb kölcsönök ügyintézésére is. Igény esetén megbízható ügyvédi közreműködést biztosítunk az adásvételi szerződés megkötéséhez, és segítséget nyújtunk az adásvételhez kapcsolódó további ügyek intézésében. Irodáink Szentesen a Petőfi utca 12. Szám alatt (a buszmegálló felől), valamint Csongrádon a Fő utca 54. Szám alatt várják a személyes érdeklődőket. Akár hétvégén is hívható vagyok, és amennyiben kényelmesebb, SMS-ben is elér, készséggel visszahívom.
Referencia szám: m323220-ml FIX 3% lakáshitelre megvehető
Tetszett ez az eladó Szegvári felújítandó 1 egész és 1 fél szobás családi ház? Hívd fel a hirdetőt most, és tudj meg mindent erről az eladó családi házról! Ha gondolod nézelődj tovább az eladó ház Szegvár oldal hirdetései között. Ennek az eladó háznak az ára 9800000 Ft és mivel az alapterülete 83 négyzetméter, ezért az átlagos négyzetméterára 118072 HUF/m2.
Az eladó házak menüpontban további hirdetések között is böngészhetsz. Ha van kedved, akkor böngészhetsz a Arnoth-Kuczora Eszter összes hirdetése között, vagy akár a/az OTPip Szentes Petőfi utca 12 - OTP Ingatlanpont Iroda összes hirdetése között is.

