Eladó jó állapotú ház - Szentes
- INGYENES HIRDETÉS FELADÁS
Ingatlan adatai
- Eladó vagy kiadó:Eladó
- Település:Szentes
- Kategória:Ház
- Alkategória:Családi ház
- Alapterület:69 m2
- Telekterület:540 m2
- Csere is:Nem
- Hirdető:Cég
- Élő videón megtekinthető:Nem
- Építés éve:1950
- Szobaszám:3
- Állapot:Jó állapotú
- Hány szintes az ingatlan:Földszintes
- Tetőtér:nincs megadva
- Komfortosság:nincs megadva
- Pince:nincs megadva
- Parkolási lehetőség:Udvaron
- Fűtés:Egyéb
- Bútorozottság:nincs megadva
- Fényviszony:Jó
- Tájolás:nincs megadva
- Kilátás:nincs megadva
- Internet:nincs megadva
- Klíma:nincs megadva
- Akadálymentesített:nincs megadva
- Energiatanúsítvány:nincs megadva
- Villany:nincs megadva
- Víz:nincs megadva
- Gáz:nincs megadva
- Csatorna:nincs megadva
- Kapcsolatfelvétel

Vincze Zoltán
+36-(70)-708-1452
Mondd meg a hirdetőnek, hogy a megveszLAK-on találtad a hirdetést.
Referencia szám: M325321
Hitel ajánlatok
Ingatlan hirdetés leírása
Eladó Ház, Szentes, Eladó jó állapotú ház - Szentes
Eladó ház Szentesen, a központ közelében!
Frekventált, mégis csendes környéken kínálunk megvételre egy kiváló adottságokkal rendelkező ingatlant!
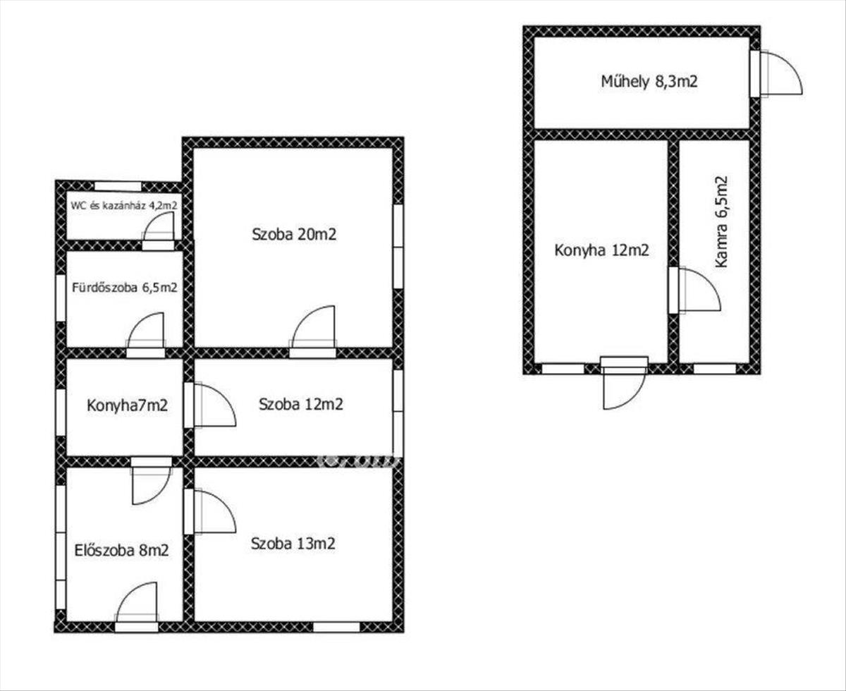
A 540 m2-es telken elhelyezkedő, vegyes falazatú ház hivatalos alapterülete 69 m2, amely két utcáról is megközelíthető, így különösen praktikus elrendezést biztosít.
Az ingatlanban 3 szoba található, valamint egy világos, nagy ablakokkal rendelkező előszoba, amely ideális helyszíne lehet meghitt családi étkezéseknek.
Az ingatlanhoz tartozik egy különálló melléképület is, amely jelenleg nyári konyhaként funkcionál, azonban átalakítással akár vállalkozás céljára is kiválóan hasznosítható.
Az ingatlan villanyhálózata és a fürdőszoba felújításra került, így ezek már korszerű állapotban várják az új tulajdonost. Minden közmű bevezetésre került a házba.
A ház állapota lehetővé teszi az azonnali költözést, így nem igényel sürgős felújítást.
A fűtésről gáz- és kazánfűtés gondoskodik. a parkolás kényelmesen megoldható az ingatlan előtt, valamint a másik bejárat felől is.
A közlekedés kiváló: a buszmegálló és a pályaudvar mindössze kb. 5 Perc sétára található, így akár busszal, akár vonattal egyszerűen elérhető minden fontosabb célpont. a közelben bolt is található, szintén pár perc sétára.
A környék nyugodt, barátságos szomszédokkal, ezért ideális választás családok számára, ugyanakkor befektetésnek is remek lehetőség.
Az ingatlan tehermentes, hitelezhető, valamint CSOK és 3%-os Otthon Start hitel is igényelhető rá, így kiváló lehetőség kedvező finanszírozással történő vásárlásra.
Amennyiben az OTP Ingatlanpont kínálatából választ, számíthat szakmai támogatásunkra a teljes vételi folyamat során az adásvételi szerződés megkötésétől a hitel-ügyintézésen át az ingatlan átadásáig. Ajánlom minden kedves ügyfelem részére az OTP Bank által közvetített Babaváró, CSOK plusz, Otthon Start Hitelprogram vagy egyéb kölcsönök intézését. Az OTP Ingatlanpont kedvezményes pénzügyi konstrukciókkal áll ügyfelei rendelkezésére, és VIP-szolgáltatást nyújt az OTP-hiteltermékek, ügyintézésben. Kedvező hitelajánlatokkal (babaváró hitel, piaci hitel, és szabadfelhasználású hitel) várjuk jelentkezését. Számos konstrukció közül választhatnak. Irodáink Szentes, Petőfi u. 12. (A buszmegálló felől) és Csongrád, Fő u. 54. Szám alatt várja a személyes érdeklődőket. ***Válasszuk ki együtt az önnek legmegfelelőbb ajánlatot! Banki sorban állás nélkül! ***
Referencia szám: m325321-ml FIX 3% lakáshitelre megvehető
Tetszett ez az eladó Szentesi jó állapotú 3 szobás családi ház? Hívd fel a hirdetőt most, és tudj meg mindent erről az eladó családi házról! Ha gondolod nézelődj tovább az eladó ház Szentes oldal hirdetései között. Ennek az eladó háznak az ára 54000000 Ft és mivel az alapterülete 69 négyzetméter, ezért az átlagos négyzetméterára 782609 HUF/m2.
Az eladó házak menüpontban további hirdetések között is böngészhetsz. Ha van kedved, akkor böngészhetsz a Vincze Zoltán összes hirdetése között, vagy akár a/az OTPip Csongrád Fő utca 54 - OTP Ingatlanpont Iroda összes hirdetése között is.

