Eladó felújítandó ház - Szentes
- INGYENES HIRDETÉS FELADÁS
Ingatlan adatai
- Eladó vagy kiadó:Eladó
- Település:Szentes
- Kategória:Ház
- Alkategória:Családi ház
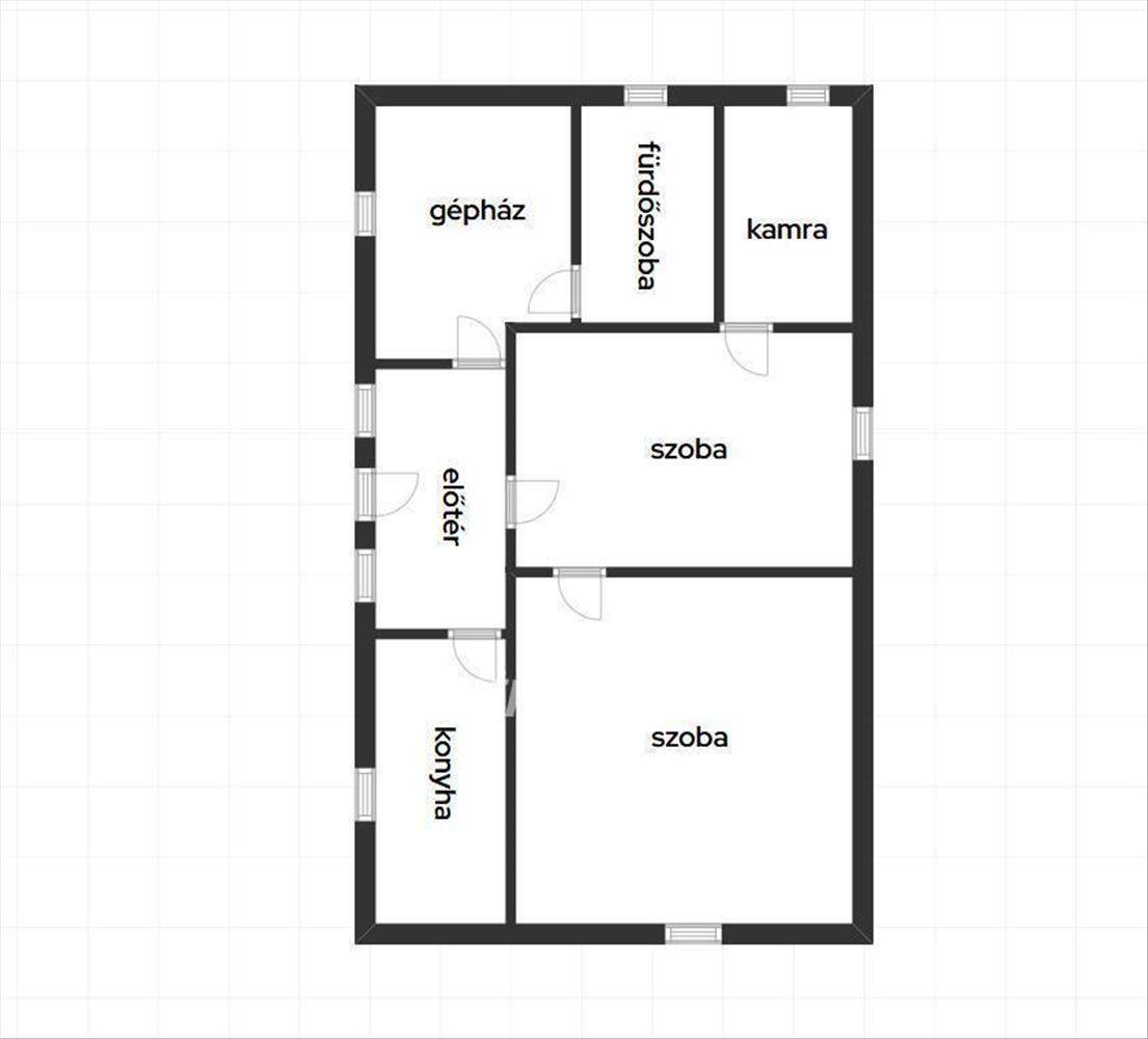
- Alapterület:72 m2
- Telekterület:1238 m2
- Csere is:Nem
- Hirdető:Cég
- Élő videón megtekinthető:Nem
- Építés éve:1959
- Szobaszám:2
- Állapot:Felújítandó
- Hány szintes az ingatlan:Földszintes
- Tetőtér:nincs megadva
- Komfortosság:nincs megadva
- Pince:nincs megadva
- Parkolási lehetőség:Udvaron
- Fűtés:Egyéb
- Bútorozottság:nincs megadva
- Fényviszony:Napfényes
- Tájolás:nincs megadva
- Kilátás:nincs megadva
- Internet:nincs megadva
- Klíma:nincs megadva
- Akadálymentesített:nincs megadva
- Energiatanúsítvány:nincs megadva
- Villany:nincs megadva
- Víz:Utcában
- Gáz:nincs megadva
- Csatorna:nincs megadva
- Kapcsolatfelvétel

Fábrik-Csendes Zsuzsanna
+36-(30)-656-4440
Mondd meg a hirdetőnek, hogy a megveszLAK-on találtad a hirdetést.
Referencia szám: M312095
Hitel ajánlatok
Ingatlan hirdetés leírása
Eladó Ház, Szentes, Eladó felújítandó ház - Szentes
*** Csak az OTP ingatlanpont kínálatában! *** Szentes egyik csendes utcájában távol a város zajától kínálunk eladásra egy felújításra szoruló, 72 négyzetméter alapterületű lakóházat. a ház elrendezése jól kihasznált: két világos szoba található benne, melyek ideálisak hálószobáknak vagy nappaliként való használatra, valamint egy funkcionális konyha, fürdőszoba és kamra kapott helyet. a ház központi fűtéses rendszerrel van felszerelve. Az ingatlanhoz 488 négyzetméteres gyümölcsös is tartozik. Az udvar rengeteg tárolási lehetőséget kínál, a meglévő melléképületekkel. Tulajdoni lap alapján zárt kertet/ Kivett / lakóház, udvar, gazdasági épület és gyümölcsös szerepel. Ne hagyja ki ezt a remek lehetőséget! Hívjon még ma! Irodáink Szentes, Petőfi utca 12. a buszmegálló felől, és Csongrád, Fő utca 54. Szám alatt várja a személyes érdeklődőket. ***Válasszuk ki együtt az önnek legmegfelelőbb ajánlatot! Banki sorban állás nélkül! Az adásvételi szerződés megkötéséhez igény szerint megbízható ügyvédi közreműködést biztosítunk, és segítséget nyújtunk az adásvételhez kapcsolódó ügyek intézésénél.
Referencia szám: m312095-ml FIX 3% lakáshitelre megvehető
Tetszett ez az eladó Szentesi felújítandó 2 szobás családi ház? Hívd fel a hirdetőt most, és tudj meg mindent erről az eladó családi házról! Ha gondolod nézelődj tovább az eladó ház Szentes oldal hirdetései között. Ennek az eladó háznak az ára 15000000 Ft és mivel az alapterülete 72 négyzetméter, ezért az átlagos négyzetméterára 208333 HUF/m2.
Az eladó házak menüpontban további hirdetések között is böngészhetsz. Ha van kedved, akkor böngészhetsz a Fábrik-Csendes Zsuzsanna összes hirdetése között, vagy akár a/az OTPip Szentes Petőfi utca 12 - OTP Ingatlanpont Iroda összes hirdetése között is.

