Eladó jó állapotú ház - Szentes
- INGYENES HIRDETÉS FELADÁS
Ingatlan adatai
- Eladó vagy kiadó:Eladó
- Település:Szentes
- Kategória:Ház
- Alkategória:Családi ház
- Alapterület:152 m2
- Telekterület:2014 m2
- Csere is:Nem
- Hirdető:Cég
- Élő videón megtekinthető:Nem
- Építés éve:1940
- Szobaszám:6
- Állapot:Jó állapotú
- Hány szintes az ingatlan:Földszintes
- Tetőtér:nincs megadva
- Komfortosság:nincs megadva
- Pince:nincs megadva
- Parkolási lehetőség:Teremgarázsban
- Fűtés:Gáz (cirko)
- Bútorozottság:nincs megadva
- Fényviszony:Jó
- Tájolás:nincs megadva
- Kilátás:nincs megadva
- Internet:nincs megadva
- Klíma:nincs megadva
- Akadálymentesített:nincs megadva
- Energiatanúsítvány:nincs megadva
- Villany:nincs megadva
- Víz:nincs megadva
- Gáz:nincs megadva
- Csatorna:nincs megadva
- Kapcsolatfelvétel

Gyenes Martin
+36-(30)-375-5815
Mondd meg a hirdetőnek, hogy a megveszLAK-on találtad a hirdetést.
Referencia szám: M305685
Hitel ajánlatok
Ingatlan hirdetés leírása
Eladó Ház, Szentes, Eladó jó állapotú ház - Szentes
Szentes városközpontjához közel, a Kisér elején, 2014 m2-es telken eladó egy sokoldalúan hasznosítható ipari ingatlan, amely kiváló választás telephelynek, raktárnak, műhelynek vagy lakás + vállalkozás kombinációjához. Nyilvántartás szerint lakóház, udvar megjelölésű, tehermentes.
Polgári elegancia modern kényelemmel, különleges otthon várja új tulajdonosát!
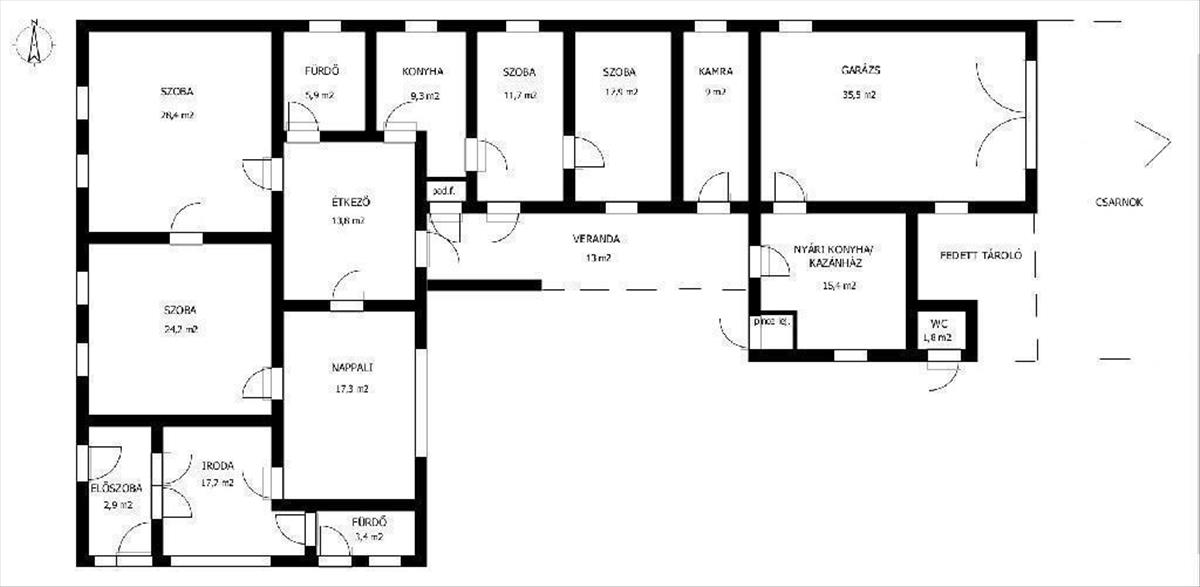
Ez a teljes körűen felújított, 152 m2-es lakóépület a klasszikus polgári építészet időtálló báját ötvözi a mai kor elvárásaival. a tágas, világos terek (4 szoba, nappali, étkező, iroda), a nagy belmagasság és az otthon melegét adó kandalló a századfordulós hangulatot idézik, míg a korszerű műszaki megoldások (hő- és vízszigetelt aljzat, teljes közműfelújítás, víz, szennyvíz, villany, 3 fázis, gáz, hőszigetelt, redőnyös nyílászárók) biztosítják a kényelmet és gazdaságos fenntarthatóságot.
A két fürdőszoba, két konyha, valamint a klíma és a választható fűtési rendszerek (gázkazán és vegyes tüzelésű kazán) tovább növelik a funkcionalitást, így ez az otthon ideális választás nagyobb családok vagy akár két generáció számára is.
A nyári konyhából keresztül jutunk a fűthető, 35 m2-es garázsba, 2, 7 méteres belmagassággal és széles, üvegezett ipari ajtóval, amelyhez külön gázóra is tartozik. a műhely mögött egy 256 m2-es, fedett csarnok kapott helyet, amely ideális raktározásra, gyártási tevékenységre, géptárolásra vagy egyéb ipari felhasználásra. a csarnok előtt nagy, betonozott munkaterület található, amely megkönnyíti az árumozgatást és logisztikát.
Az udvar hátsó részében szerelőaknás 75 m2-es műhely áll, amely felett egy külön bejáratú, 72 m2-es, modern tetőtéri lakás került kialakításra. a lakás amerikai konyhás nappalival, külön hálószobával, sarokkádas fürdőszobával és saját gázkazánnal rendelkezik, így kiváló lehetőség szolgálati lakásnak, irodának vagy vendéglakásnak.
Az utcafronton nagy teherbírású, térköves parkoló került kialakításra, így az ingatlan ipari és üzleti célú hasznosítása már meglévő infrastruktúrával biztosított.
Ez a sokoldalú ingatlan ideális választás lehet mindazoknak, akik saját vállalkozásuknak keresnek telephelyet, műhelyt vagy raktárt, és szeretnék mindezt lakhatási lehetőséggel egy helyen megoldani. Az ipari adottságok, a rendezett környezet és a kiváló megközelíthetőség ritka kombinációt kínálnak Szentes egyik legjobb elhelyezkedésű részén.
Az OTP Ingatlanpont kedvezményes pénzügyi konstrukciókkal áll ügyfelei rendelkezésére! VIP-szolgáltatást nyújtunk az OTP-hiteltermékek ügyintézésében. Jogi és pénzügyi segítséget nyújtanak szakértőink, hogy az adásvétel folyamata gördülékeny legyen. Amennyiben a vételár a kérdés, és úgy gondolja még nincs meg az összeg a leendő új otthonra? Lehet, hogy még is rendelkezésére áll a vételár csak még Ön nem is tudja? Tisztában van valóban az anyagi lehetőségeivel? Az áthidaló megoldásokkal? Esetleg csak az az akadály, hogy nem adta el még a saját ingatlanját? Nem gond, a tulajdonosaink, eladóink szívesen megvárják Önt, segítünk a gyors értékesítésben is. Ne maradjon le a vételről, ha már megtalálta a megfelelő új otthont! Szolgáltatásunk ingyenes, kizárólag sikeres értékesítés esetén van megbízási díj fizetési kötelezettség. a vevők is nálunk vannak és lehet az Ön ingatlanjára várnak? ! Tudjon meg többet, hívjon bizalommal!
Eladó ingatlanja van? Nincs vevője? Hívjon segítek az értékesítésben!
Kedvező hitelajánlatokkal (Otthon Start Program, Babaváró hitel, csok, piaci hitel, és szabadfelhasználású hitel) várjuk jelentkezését. Számos konstrukció közül választhatnak. Irodáink Szentes, Petőfi utca 12. (A buszmegálló felől) és Csongrád, Fő utca 54. Szám alatt várja a személyes érdeklődőket. ***Válasszuk ki együtt az önnek legmegfelelőbb ajánlatot! Banki sorban állás nélkül! ***
Referencia szám: m305685 FIX 3% lakáshitelre megvehető
Tetszett ez az eladó Szentesi jó állapotú 6 szobás családi ház? Hívd fel a hirdetőt most, és tudj meg mindent erről az eladó családi házról! Ha gondolod nézelődj tovább az eladó ház Szentes oldal hirdetései között. Ennek az eladó háznak az ára 99000000 Ft és mivel az alapterülete 152 négyzetméter, ezért az átlagos négyzetméterára 651316 HUF/m2.
Az eladó házak menüpontban további hirdetések között is böngészhetsz. Ha van kedved, akkor böngészhetsz a Gyenes Martin összes hirdetése között, vagy akár a/az OTPip Csongrád Fő utca 54 - OTP Ingatlanpont Iroda összes hirdetése között is.

