Eladó átlagos állapotú ház - Szentes
- INGYENES HIRDETÉS FELADÁS
Ingatlan adatai
- Eladó vagy kiadó:Eladó
- Település:Szentes
- Kategória:Ház
- Alkategória:Családi ház
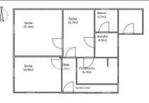
- Alapterület:65 m2
- Telekterület:720 m2
- Csere is:Nem
- Hirdető:Cég
- Élő videón megtekinthető:Nem
- Építés éve:1940
- Szobaszám:3
- Állapot:Átlagos állapotú
- Hány szintes az ingatlan:Földszintes
- Tetőtér:nincs megadva
- Komfortosság:nincs megadva
- Pince:nincs megadva
- Parkolási lehetőség:nincs megadva
- Fűtés:Házközponti
- Bútorozottság:nincs megadva
- Fényviszony:Közepes
- Tájolás:nincs megadva
- Kilátás:nincs megadva
- Internet:nincs megadva
- Klíma:nincs megadva
- Akadálymentesített:nincs megadva
- Energiatanúsítvány:nincs megadva
- Villany:Telken belül
- Víz:Telken belül
- Gáz:Telken belül
- Csatorna:nincs megadva
- Kapcsolatfelvétel

Vincze Zoltán
+36-(70)-708-1452
Mondd meg a hirdetőnek, hogy a megveszLAK-on találtad a hirdetést.
Referencia szám: M288476
Ingatlan hirdetés leírása
Eladó Ház, Szentes, Eladó átlagos állapotú ház - Szentes
***Kizárólag az OTP Ingatlanpontnál! ! ***
Eladásra kínálom Csongrád-Csanád Vármegyében Szentes Berekhát városrészen egy 65 négyzetméteres házat. Csendes utcában, 720 m2 telek, 3 szobás, összkomfortos ingatlan. a meleget vegyes tüzelésű kazán, melegvizet villanybojler biztosítja. Vastagon alábetonozott mindenhol. Nyílászárói fából vannak. Tartozik hozzá nyári konyha és sok tároló helység. Udvara rendezett.
Ne feledjétek, az OTP Ingatlanpont kedvezményes pénzügyi konstrukciókkal áll rendelkezésére! VIP-szolgáltatást nyújtunk az OTP-hiteltermékek ügyintézésében. Jogi és pénzügyi segítséget nyújtanak szakértőink, hogy az adásvétel folyamata gördülékeny legyen. Amennyiben a vételár a kérdés, és azt hiszed még nincs meg az összeg a leendő új otthonodra, lehet hogy még is rendelkezésére áll a vételár csak még nem is tudod? Tisztában vagy valóban az anyagi lehetőségeiddel? Az áthidaló megoldásokkal? Esetleg csak az az akadály, hogy nem adtad el még a saját ingatlanod? Nem gond, a tulajdonosaink, eladóink szívesen megvárnak, segítünk a gyors értékesítésben is. Ne maradj le a vételről, ha már megtaláltad a megfelelő új otthont! a vevők is nálunk vannak és lehet az Te ingatlanodra várnak? ! Tudj meg többet, hívj bizalommal!
Eladó ingatlanod van? Nincs vevőd? Hívj és segítek az eladásban is.
Referencia szám: m288476-ml FIX 3% lakáshitelre megvehető


