Eladó jó állapotú ház - Szentes
- INGYENES HIRDETÉS FELADÁS
Ingatlan adatai
- Eladó vagy kiadó:Eladó
- Település:Szentes
- Kategória:Ház
- Alkategória:Családi ház
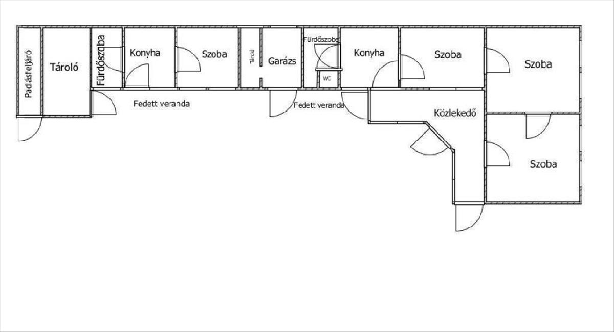
- Alapterület:180 m2
- Telekterület:823 m2
- Csere is:Nem
- Hirdető:Cég
- Élő videón megtekinthető:Nem
- Építés éve:1920
- Szobaszám:4
- Állapot:Jó állapotú
- Hány szintes az ingatlan:Földszintes
- Tetőtér:nincs megadva
- Komfortosság:nincs megadva
- Pince:nincs megadva
- Parkolási lehetőség:Teremgarázsban
- Fűtés:Gáz (cirko)
- Bútorozottság:nincs megadva
- Fényviszony:Jó
- Tájolás:nincs megadva
- Kilátás:nincs megadva
- Internet:nincs megadva
- Klíma:nincs megadva
- Akadálymentesített:nincs megadva
- Energiatanúsítvány:nincs megadva
- Villany:nincs megadva
- Víz:nincs megadva
- Gáz:nincs megadva
- Csatorna:nincs megadva
- Kapcsolatfelvétel

Lázár Krisztina
+36-(30)-223-3606
Mondd meg a hirdetőnek, hogy a megveszLAK-on találtad a hirdetést.
Referencia szám: M309792
Ingatlan hirdetés leírása
Eladó Ház, Szentes, Eladó jó állapotú ház - Szentes
*** Nagy polgári ház eladó Csongrád-Csanád vármegyében, Szentesen. a jó állapotú, vegyes falazatú kertes családi ház, a városközpontban, egy 823 nm-es telken helyezkedik el. a 220 nm-es lakóház 2 család részére is kényelmes otthont biztosíthat, mivel 2 külön bejáratú lakórészre van osztva, melyek külön közüzemi mérőórákkal rendelkeznek. a 122 nm-es lakórészben 3 nagy szoba, konyha, fürdőszoba, wc és közlekedő, valamint egy tároló és egy garázs tartozik. Itt a fűtésről gázkazán, a meleg vízről villanybojler gondoskodik. a másik, az egy szoba + konyha + fürdőszoba helyiségekből álló 37 nm-es lakrész, melyhez egy 21 nm-es tároló is tartozik, ami alkalmas lenne egy újabb szoba kialakítására a még nagyobb kényelemért. Ebben a kisebb lakrészben a fűtést konvektorok, a meleg vizet szintén villanybojler biztosítja. Az udvar végében, a kisebb lakrész előtt egy lemez garázs kapott helyet. Az ingatlant nagycsaládosoknak ajánlom, de akár több generáció együttélésére is kiválóan alkalmas lehet, csakúgy, mint vállalkozás működtetésére, lakhat és dolgozhat egy helyen, ráadásul mindez a város kellős közepén egy csendes, nyugodt helyen. Amennyiben az OTP Ingatlanpont kínálatából választ, számíthat szakmai támogatásunkra a teljes vételi folyamat során az adásvételi szerződés megkötésétől a hitel-ügyintézésen át az ingatlan átadásáig. Az OTP Ingatlanpont kedvezményes pénzügyi konstrukciókkal áll ügyfelei rendelkezésére, és VIP-szolgáltatást nyújt az OTP-hiteltermékek, valamint CSOK-ügyintézésben. Kedvező hitelajánlatokkal (babaváró hitel, piaci hitel, és szabadfelhasználású hitel) várjuk jelentkezését. Számos konstrukció közül választhatnak. ***Válasszuk ki együtt az önnek legmegfelelőbb ajánlatot! Banki sorban állás nélkül! ***Amennyiben az OTP Ingatlanpont kínálatából választ, számíthat szakmai támogatásunkra a teljes vételi folyamat során az adásvételi szerződés megkötésétől a hitel-ügyintézésen át az ingatlan átadásáig. Az OTP Ingatlanpont kedvezményes pénzügyi konstrukciókkal áll ügyfelei rendelkezésére, és VIP-szolgáltatást nyújt az OTP-hiteltermékek, valamint CSOK-ügyintézésben. Kedvező hitelajánlatokkal (babaváró hitel, piaci hitel, és szabadfelhasználású hitel) várjuk jelentkezését. Számos konstrukció közül választhatnak. ***Válasszuk ki együtt az önnek legmegfelelőbb ajánlatot! Banki sorban állás NÉLKÜL! ***
Érdeklődni: Lázár Krisztina 06302233606
Referencia szám: m309792-ml FIX 3% lakáshitelre megvehető


