Eladó jó állapotú ház - Szentes
- INGYENES HIRDETÉS FELADÁS
Ingatlan adatai
- Eladó vagy kiadó:Eladó
- Település:Szentes
- Kategória:Ház
- Alkategória:Családi ház
- Alapterület:106 m2
- Telekterület:576 m2
- Csere is:Nem
- Hirdető:Cég
- Élő videón megtekinthető:Nem
- Építés éve:1973
- Szobaszám:4
- Állapot:Jó állapotú
- Hány szintes az ingatlan:Földszintes
- Tetőtér:nincs megadva
- Komfortosság:nincs megadva
- Pince:nincs megadva
- Parkolási lehetőség:Udvaron
- Fűtés:Gáz (cirko)
- Bútorozottság:nincs megadva
- Fényviszony:Napfényes
- Tájolás:nincs megadva
- Kilátás:nincs megadva
- Internet:nincs megadva
- Klíma:Van
- Akadálymentesített:nincs megadva
- Energiatanúsítvány:nincs megadva
- Villany:nincs megadva
- Víz:nincs megadva
- Gáz:nincs megadva
- Csatorna:nincs megadva
- Kapcsolatfelvétel

Petkov Gyöngyi Katalin
+36-(20)-985-2665
Mondd meg a hirdetőnek, hogy a megveszLAK-on találtad a hirdetést.
Referencia szám: M321810
Hitel ajánlatok
Ingatlan hirdetés leírása
Eladó Ház, Szentes, Eladó jó állapotú ház - Szentes
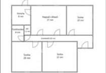
*** Csak az Otp Ingatlanpont kínálatában eladó *** tégla építésű kockaház eladó Szentesen. a részben felújított jó állapotú ház a Felsőpárt városrészben található. Az 575 nm -es telken elhelyezkedő 106 nm -es hasznos alapterületű épületben helyet kapott egy nagy nappali étkezővel + 3 külön bejáratú szoba, közlekedő, valamint fürdőszoba és külön wc. a fűtést kombi gázkazán biztosítja radiátoros hőleadással, a nappaliban kiegészítve egy kandallóval és hűtő-fűtő klímával. a külső nyílászárók és az egyik bejárati ajtó hőszigetelt műanyag nyílászárók, a másik bejárati ajtó hőszigetelt fa ajtó. Redőny és szúnyogháló van minden ablakon. a 3 fázisú villanyhálózat járul hozzá a nagyobb teljesítményhez. Egy kis melléképületben van tárolási lehetőség, az autók számára pedig udvari beálló. Az ingatlan alkalmas jelzáloghitel, csok+ és Otthon Start hitel igénylésére. Amennyiben az OTP Ingatlanpont kínálatából választ, számíthat szakmai támogatásunkra a teljes vételi folyamat során az adásvételi szerződés megkötésétől a hitel-ügyintézésen át az ingatlan átadásáig. Ajánlom minden kedves ügyfelem részére az OTP Bank által közvetített Babaváró, CSOK plusz, Otthon Start Hitelprogram vagy egyéb kölcsönök intézését. Az OTP Ingatlanpont kedvezményes pénzügyi konstrukciókkal áll ügyfelei rendelkezésére, és VIP-szolgáltatást nyújt az OTP-hiteltermékek, ügyintézésben. Kedvező hitelajánlatokkal (babaváró hitel, piaci hitel, és szabadfelhasználású hitel) várjuk jelentkezését. Számos konstrukció közül választhatnak. Irodáink Szentes, Petőfi u. 12. a buszmegálló felől és Csongrád, Fő u. 54. Szám alatt várja a személyes érdeklődőket. ***Válasszuk ki együtt az önnek legmegfelelőbb ajánlatot! Banki sorban állás nélkül! ***
Referencia szám: m321810-ml FIX 3% lakáshitelre megvehető
Tetszett ez az eladó Szentesi jó állapotú 4 szobás családi ház? Hívd fel a hirdetőt most, és tudj meg mindent erről az eladó családi házról! Ha gondolod nézelődj tovább az eladó ház Szentes oldal hirdetései között. Ennek az eladó háznak az ára 45900000 Ft és mivel az alapterülete 106 négyzetméter, ezért az átlagos négyzetméterára 433019 HUF/m2.
Az eladó házak menüpontban további hirdetések között is böngészhetsz. Ha van kedved, akkor böngészhetsz a Petkov Gyöngyi Katalin összes hirdetése között, vagy akár a/az OTPip Csongrád Fő utca 54 - OTP Ingatlanpont Iroda összes hirdetése között is.

