Eladó jó állapotú ház - Szentes (45523813)
ELADÓ INGATLANOK
KIADÓ INGATLANOK
CSERE INGATLANOK
KÜLFÖLDI INGATLANOK
RÉSZLETES KERESÉS
INGATLAN HÍREK
HIRDETÉS FELADÁS
BELÉPÉS
REGISZTRÁCIÓ
hirdetés 1. fotó
hirdetés 2. fotóhirdetés 3. fotó
hirdetés 4. fotóhirdetés 5. fotó
hirdetés 6. fotó
+ 18 fotó
hirdetés 7. fotó
+ 15 fotó
hirdetés 7. fotóhirdetés 8. fotóhirdetés 9. fotóhirdetés 10. fotóhirdetés 11. fotóhirdetés 12. fotóhirdetés 13. fotóhirdetés 14. fotóhirdetés 15. fotóhirdetés 16. fotóhirdetés 17. fotóhirdetés 18. fotóhirdetés 19. fotóhirdetés 20. fotóhirdetés 21. fotó

Ingatlan adatai

  • Eladó vagy kiadó:Eladó
  • Település:Szentes
  • Kategória:Ház
  • Alkategória:Családi ház
  • Alapterület:106 m2
  • Telekterület:576 m2
  • Csere is:Nem
  • Hirdető:Cég
  • Élő videón megtekinthető:Nem
  • Építés éve:1973
  • Szobaszám:4
  • Állapot:Jó állapotú
  • Hány szintes az ingatlan:Földszintes
  • Tetőtér:nincs megadva
  • Komfortosság:nincs megadva
  • Pince:nincs megadva
  • Parkolási lehetőség:Udvaron
  • Fűtés:Gáz (cirko)
  • Bútorozottság:nincs megadva
  • Fényviszony:Napfényes
  • Tájolás:nincs megadva
  • Kilátás:nincs megadva
  • Internet:nincs megadva
  • Klíma:Van
  • Akadálymentesített:nincs megadva
  • Energiatanúsítvány:nincs megadva
  • Villany:Van
  • Víz:Van
  • Gáz:Van
  • Csatorna:Van
  • Kapcsolatfelvétel
Jószai Olívia
Jószai Olívia
+36-(70)-677-4669
Mondd meg a hirdetőnek, hogy a megveszLAK-on találtad a hirdetést.
Referencia szám: M321810
Érdekel kedvezményes lakáshitel ajánlat is
Az ASZF-et és az Adatkezelési tájékoztatót elfogadom

Hitel ajánlatok

 

Ingatlan hirdetés leírása

Eladó Ház, Szentes, Eladó jó állapotú ház - Szentes


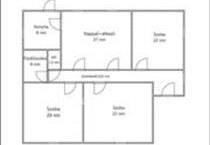
*** Csak az Otp Ingatlanpont kínálatában eladó *** tégla építésű kockaház eladó Szentesen. a részben felújított jó állapotú ház a Felsőpárt városrészben található. Az 575 nm -es telken elhelyezkedő 106 nm -es hasznos alapterületű épületben helyet kapott egy nagy nappali étkezővel + 3 külön bejáratú szoba, közlekedő, valamint fürdőszoba és külön wc. a fűtést kombi gázkazán biztosítja radiátoros hőleadással, a nappaliban kiegészítve egy kandallóval és hűtő-fűtő klímával. a külső nyílászárók és az egyik bejárati ajtó hőszigetelt műanyag nyílászárók, a másik bejárati ajtó hőszigetelt fa ajtó. Redőny és szúnyogháló van minden ablakon. a 3 fázisú villanyhálózat járul hozzá a nagyobb teljesítményhez. Egy kis melléképületben van tárolási lehetőség, az autók számára pedig udvari beálló. Az ingatlan alkalmas jelzáloghitel, csok+ és Otthon Start hitel igénylésére. Amennyiben az OTP Ingatlanpont kínálatából választ, számíthat szakmai támogatásunkra a teljes vételi folyamat során az adásvételi szerződés megkötésétől a hitel-ügyintézésen át az ingatlan átadásáig. Ajánlom minden kedves ügyfelem részére az OTP Bank által közvetített Babaváró, CSOK plusz, Otthon Start Hitelprogram vagy egyéb kölcsönök intézését. Az OTP Ingatlanpont kedvezményes pénzügyi konstrukciókkal áll ügyfelei rendelkezésére, és VIP-szolgáltatást nyújt az OTP-hiteltermékek, ügyintézésben. Kedvező hitelajánlatokkal (babaváró hitel, piaci hitel, és szabadfelhasználású hitel) várjuk jelentkezését. Számos konstrukció közül választhatnak. ***Válasszuk ki együtt az önnek legmegfelelőbb ajánlatot! Banki sorban állás nélkül! ***

Referencia szám: m321810-ml FIX 3% lakáshitelre megvehető

Tetszett ez az eladó Szentesi jó állapotú 4 szobás családi ház? Hívd fel a hirdetőt most, és tudj meg mindent erről az eladó családi házról! Ha gondolod nézelődj tovább az eladó ház Szentes oldal hirdetései között. Ennek az eladó háznak az ára 45900000 Ft és mivel az alapterülete 106 négyzetméter, ezért az átlagos négyzetméterára 433019 HUF/m2.

Az eladó házak menüpontban további hirdetések között is böngészhetsz. Ha van kedved, akkor böngészhetsz a Jószai Olívia összes hirdetése között, vagy akár a/az OTPip Szentes Petőfi utca 12 - OTP Ingatlanpont Iroda összes hirdetése között is.

 
 
© megveszLAK.hu - Az egyszerűen jó ingatlan hirdetési oldal