Eladó jó állapotú ház Szentes
| Kedvencbe | Megosztás | Árfigyelő |
| FIX 3% lakáshitelre megvehető | ||
| 60 000 000 HUF | ||
Ingatlan adatai
- Eladó vagy kiadó:Eladó
- Település:Szentes
- Kategória:Ház
- Alkategória:Családi ház
- Alapterület:85 m2
- Telekterület:769 m2
- Csere is:Nem
- Hirdető:Cég
- Élő videón megtekinthető:Nem
- Építés éve:1985
- Szobaszám:2 + 2 fél
- Állapot:Jó állapotú
- Hány szintes az ingatlan:2 szintes
- Tetőtér:nincs megadva
- Komfortosság:nincs megadva
- Parkolási lehetőség:Udvaron
- Fűtés:Gáz
- Bútorozottság:nincs megadva
- Fényviszony:Jó
- Tájolás:nincs megadva
- Kilátás:nincs megadva
- Internet:nincs megadva
- Akadálymentesített:nincs megadva
- Energiatanúsítvány:nincs megadva
- Villany:nincs megadva
- Víz:nincs megadva
- Gáz:nincs megadva
- Csatorna:nincs megadva
- Üzenetküldés
- Hívás

Referencia szám: M311031

Hitel ajánlat
Ingatlan hirdetés leírása
Eladó Ház, Szentes, Eladó jó állapotú ház - Szentes
Eladó családi ház Szentesen, a városközpont közelében! !Szentesen, a belvároshoz közel kínálunk megvételre egy 85 m2 hasznos alapterületű családi házat, amely 769 m2-es telken helyezkedik el.
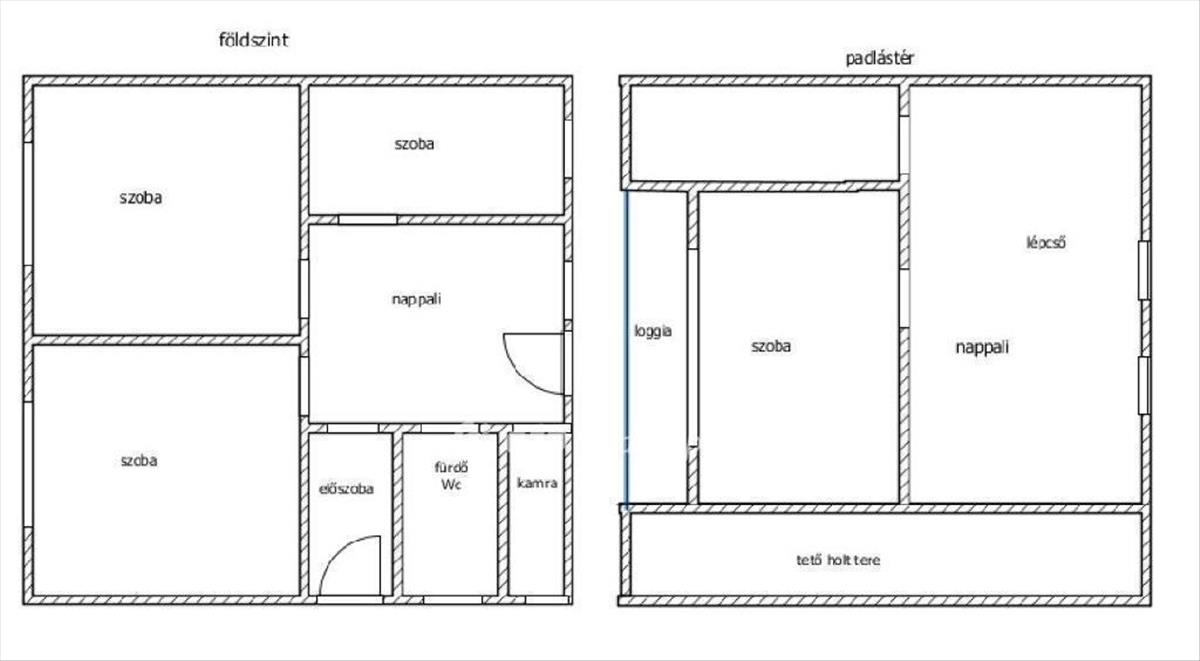
A földszinten 2, 5 szoba, fürdőszoba, tágas előszoba (innen vezet feljárat a padlástérbe) található.
A padlástérben 1 szoba és egy tágas hall van, amelyből igény szerint könnyedén kialakítható még egy plusz szoba is akár.
A ház mögött egy hangulatos kis házban kapott helyet a konyha, valamint innen működik a fűtésrendszer is.
Az udvarban van autóbeállásra alkalmas féltető, ólak és melléképületek, egy kis épület, amely korábban üzlethelyiségként funkcionált.
A gondozott előkertbe ültetett növényekkel csillapították az utca zaját.
Az ingatlan tehermentes, de jelenlegi állapota miatt csak készpénzes vevők jelentkezését várjuk!
Az adásvételi szerződés megkötéséhez igény szerint ügyvédet biztosítunk.
Irodáink Szentes, Petőfi utca 12. (A buszmegálló felől) és Csongrád, Fő utca 54. Szám alatt várja a személyes érdeklődőket.
Referencia szám: m311031-ml FIX 3% lakáshitelre megvehető
Tetszett ez az eladó Szentesi jó állapotú 2 egész és 2 fél szobás családi ház? Hívd fel a hirdetőt most, és tudj meg mindent erről az eladó családi házról! Ha gondolod nézelődj tovább az eladó ház Szentes oldal hirdetései között. Ennek az eladó háznak az ára 60000000 Ft és mivel az alapterülete 85 négyzetméter, ezért az átlagos négyzetméterára 705882 HUF/m2.
Az eladó ház menüpontban további hirdetések között is böngészhetsz. Ha van kedved, akkor böngészhetsz a Vas Edit összes hirdetése között, vagy akár a/az OTPip Csongrád Fő utca 54 - OTP Ingatlanpont Iroda összes hirdetése között is.

