Eladó felújítandó ház Szentes
| Kedvencbe | Megosztás | Árfigyelő |
| FIX 3% lakáshitelre megvehető | ||
| 69 000 000 HUF | ||
Ingatlan adatai
- Eladó vagy kiadó:Eladó
- Település:Szentes
- Kategória:Ház
- Alkategória:Családi ház
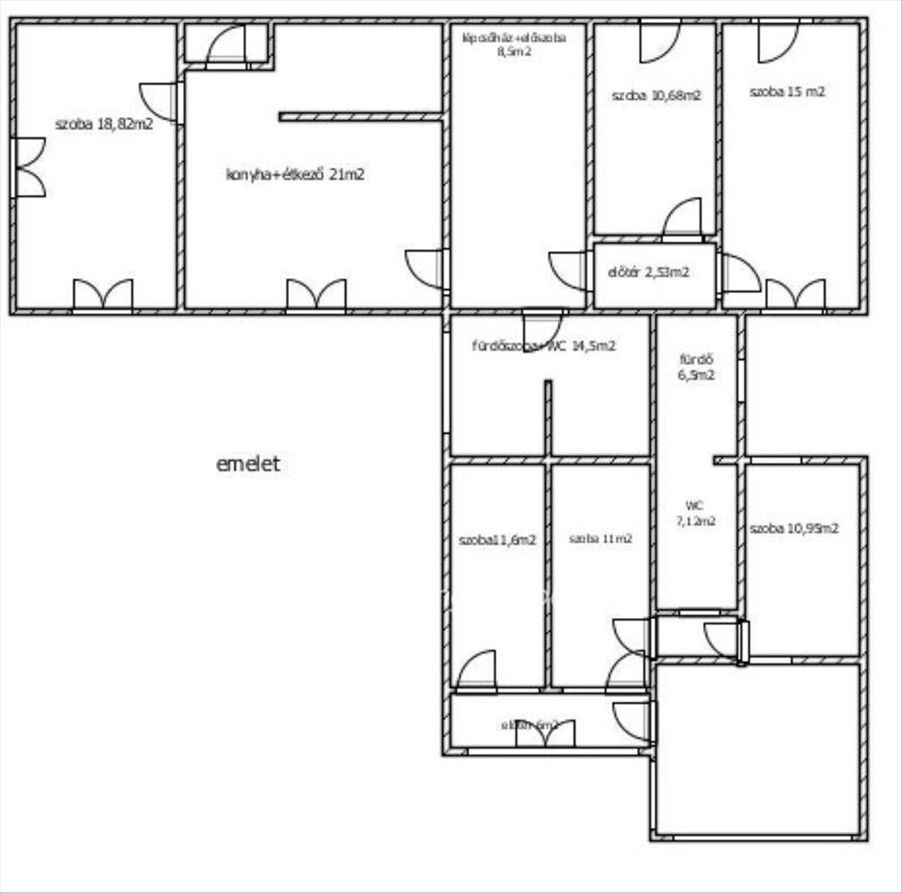
- Alapterület:350 m2
- Telekterület:564 m2
- Csere is:Nem
- Hirdető:Cég
- Élő videón megtekinthető:Nem
- Építés éve:1975
- Szobaszám:6 + 2 fél
- Állapot:Felújítandó
- Hány szintes az ingatlan:2 szintes
- Tetőtér:nincs megadva
- Komfortosság:nincs megadva
- Parkolási lehetőség:Udvaron
- Fűtés:Gáz
- Bútorozottság:nincs megadva
- Fényviszony:Közepes
- Tájolás:nincs megadva
- Kilátás:nincs megadva
- Internet:nincs megadva
- Akadálymentesített:nincs megadva
- Energiatanúsítvány:nincs megadva
- Villany:nincs megadva
- Víz:nincs megadva
- Gáz:nincs megadva
- Csatorna:nincs megadva
- Üzenetküldés
- Hívás

Referencia szám: M312255

Hitel ajánlat
Ingatlan hirdetés leírása
Eladó Ház, Szentes, Eladó felújítandó ház - Szentes
Eladásra kínálunk Csongrád-Csanád vármegyében Szentesen egy 350m2-es családi házat. Az ingatlan a város központjában helyezkedik el, közelben iskola, óvoda, boltok, éttermek, játszótér és minden, amit a város központja kínál. a kétszintes családi ház, két lakótérből áll, külön bejárattal, amelyekben összesen 6 hálószoba, 3 konyha, 2 étkező, 2 fürdőszoba, 3 wc, és 2 hatalmas nappali teszi lehetővé a kényelmes életet. Az építéskor medence is került beépítésre, melyet kihasználatlanság miatt lefedtek fapadlóval, de könnyedén visszaállítható az eredeti állapot. a fűtésről egy cserépkályha, és kandalló gondoskodik, amely rá van kötve a radiátoros fűtésrendszerre. E mellett, egy nagyteljesítményű Vaillant gázkazán + puffertartály is segíti az otthon fűtését. a villanyvezetékek részlegesen át lettek húzva. a tetőszerkezet épp, nem sérült. Az ingatlan viszonylag kicsi 565m2-es saroktelken helyezkedik el, így két kapubejáró, és két garázs is segíti a parkolást. a kis kertben, fedett terasz, és árnyas fák teszik hangulatossá a pihenést. Összeköltözőknek, nagyobb lakásra vágyóknak, kiváló lehetőség. Az ingatlan per- és tehermentes.Igény esetén az adásvételkor ügyvédi segítséget is biztosítunk.
Ingyenes hitelügyintézés irodáinkban!
Irodáink, Szentes Petőfi utca 12. (A buszmegálló felől), és Csongrád Fő utca 54. Alatt várja az érdeklődőket!
Referencia szám: m312255-ml FIX 3% lakáshitelre megvehető

