Eladó felújítandó ház - Szentes
- INGYENES HIRDETÉS FELADÁS
Ingatlan adatai
- Eladó vagy kiadó:Eladó
- Település:Szentes
- Kategória:Ház
- Alkategória:Családi ház
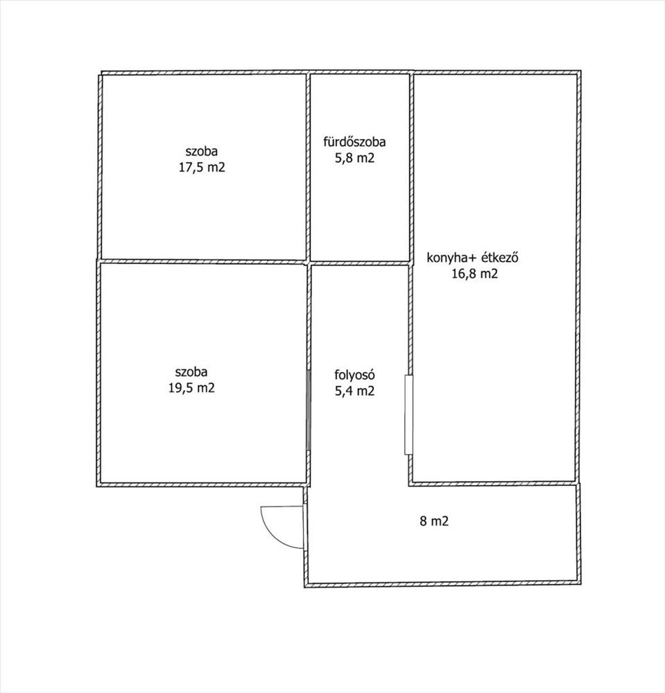
- Alapterület:73 m2
- Telekterület:nincs megadva
- Csere is:Nem
- Hirdető:Cég
- Élő videón megtekinthető:Nem
- Szobaszám:2
- Állapot:Felújítandó
- Hány szintes az ingatlan:nincs megadva
- Tetőtér:nincs megadva
- Komfortosság:nincs megadva
- Pince:nincs megadva
- Parkolási lehetőség:nincs megadva
- Fűtés:nincs megadva
- Bútorozottság:nincs megadva
- Fényviszony:nincs megadva
- Tájolás:nincs megadva
- Kilátás:nincs megadva
- Internet:nincs megadva
- Klíma:nincs megadva
- Akadálymentesített:nincs megadva
- Energiatanúsítvány:nincs megadva
- Villany:nincs megadva
- Víz:nincs megadva
- Gáz:nincs megadva
- Csatorna:nincs megadva
- Kapcsolatfelvétel

Garai-Szabó Magdolna
+36-(20)-519-2248
Mondd meg a hirdetőnek, hogy a megveszLAK-on találtad a hirdetést.
Hitel ajánlatok
Ingatlan hirdetés leírása
Eladó 73 m2 családi ház, Szentes
Ár: 4. 300. 000. -
Csongrád - Csanád Vármegyében, Szentes külterületi részén, d- oldalon kivett tanyás ingatlan eladó. a tanya 1630 m2- es telken helyezkedik el, tehát esetleges bővítésre is van lehetőség. Az ingatlanhoz jól járható betonúton lehet eljutni, Szentes kb. 10 Perc autózással megközelíthető. Buszjáratokkal is megoldható a közlekedés, illetve a tanya gondnoki szolgálat is működik. a ház felújítását elkezdték, mely munkálatok magában foglalják a teljes villanyhálózat cseréjét, és az összes nyílászárót is lecserélték modern, műanyag ajtóra, és ablakokra. a további munkálatok már az új tulajdonosok feladata lesz. Az ingatlanban kettő szoba található, (19. 5 És 17. 5 m2- es), egy 16. 8 m2- es konyha+ étkező. a fürdőszoba helye megvan, és a szaniterek egy része is. Az összes alapterület: 73 m2. Fűtése eddig kályhával volt megoldva. Ajánlom mindazoknak, akik szeretnének gazdálkodni, távolabb a város zajától nyugodtabban élni. a tanya megtekintéséhez időpont egyeztetés szükséges, kérem hívjon bizalommal! Garai-Szabó Magdolna Ingatlan értékesítő +36205192248 4. 3 M. (Hivatkozási szám: m125140) FIX 3% lakáshitelre megvehető
Tetszett ez az eladó Szentesi felújítandó 2 szobás családi ház? Hívd fel a hirdetőt most, és tudj meg mindent erről az eladó családi házról! Ha gondolod nézelődj tovább az eladó ház Szentes oldal hirdetései között. Ennek az eladó háznak az ára 4300000 Ft és mivel az alapterülete 73 négyzetméter, ezért az átlagos négyzetméterára 58904 HUF/m2.
Az eladó házak menüpontban további hirdetések között is böngészhetsz. Ha van kedved, akkor böngészhetsz a Garai-Szabó Magdolna összes hirdetése között, vagy akár a/az Adlak összes hirdetése között is.

