Eladó felújítandó ház - Szentes (63923864)
törölt hirdetés nincs hozzá fotó

Eladó felújítandó ház Szentes

FIX 3% lakáshitelre megvehető
18 900 000 HUF

Ingatlan adatai

  • Eladó vagy kiadó:Eladó
  • Település:Szentes
  • Kategória:Ház
  • Alkategória:Családi ház
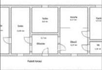
  • Alapterület:126 m2
  • Telekterület:1188 m2
  • Csere is:Nem
  • Hirdető:Cég
  • Élő videón megtekinthető:Nem
  • Építés éve:1960
  • Szobaszám:2 + 1 fél
  • Állapot:Felújítandó
  • Hány szintes az ingatlan:Földszintes
  • Tetőtér:nincs megadva
  • Komfortosság:nincs megadva
  • Parkolási lehetőség:Udvaron
  • Fűtés:Gáz (konvektor)
  • Bútorozottság:nincs megadva
  • Fényviszony:Napfényes
  • Tájolás:nincs megadva
  • Kilátás:nincs megadva
  • Internet:nincs megadva
  • Akadálymentesített:nincs megadva
  • Energiatanúsítvány:nincs megadva
  • Villany:nincs megadva
  • Víz:nincs megadva
  • Gáz:nincs megadva
  • Csatorna:nincs megadva
INGYENES HIRDETÉS FELADÁS

Hitel ajánlat

Ingatlan hirdetés leírása

Eladó felújítandó ház - Szentes

Sajnos ez az ingatlan hirdetés már nem aktuális, mivel a hirdető már törölte azt. FIX 3% lakáshitelre megvehető

Hasonló ingatlan hirdetések




© megveszLAK.hu
Az egyszerűen jó ingatlan hirdetési oldal