Eladó felújítandó ház - Szentes
- INGYENES HIRDETÉS FELADÁS
Ingatlan adatai
- Eladó vagy kiadó:Eladó
- Település:Szentes
- Kategória:Ház
- Alkategória:Családi ház
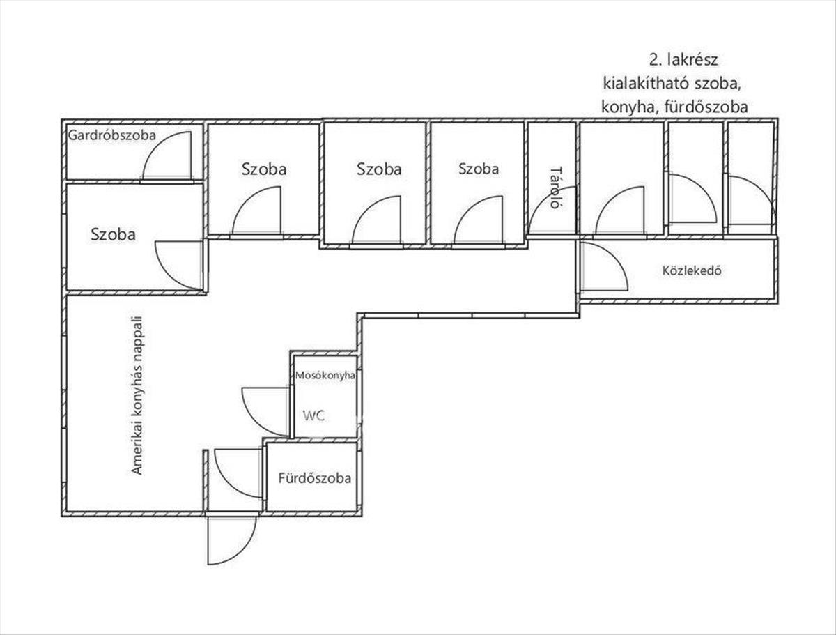
- Alapterület:123 m2
- Telekterület:701 m2
- Csere is:Nem
- Hirdető:Cég
- Élő videón megtekinthető:Nem
- Építés éve:1960
- Szobaszám:4 + 1 fél
- Állapot:Felújítandó
- Hány szintes az ingatlan:Földszintes
- Tetőtér:nincs megadva
- Komfortosság:nincs megadva
- Pince:nincs megadva
- Parkolási lehetőség:Udvaron
- Fűtés:Gáz (cirko)
- Bútorozottság:nincs megadva
- Fényviszony:Napfényes
- Tájolás:nincs megadva
- Kilátás:nincs megadva
- Internet:nincs megadva
- Klíma:nincs megadva
- Akadálymentesített:nincs megadva
- Energiatanúsítvány:nincs megadva
- Villany:nincs megadva
- Víz:nincs megadva
- Gáz:nincs megadva
- Csatorna:nincs megadva
- Kapcsolatfelvétel

Orovecz Józsefné
+36-(30)-535-2397
Mondd meg a hirdetőnek, hogy a megveszLAK-on találtad a hirdetést.
Referencia szám: M320027
Hitel ajánlatok
Ingatlan hirdetés leírása
Eladó Ház, Szentes, Eladó felújítandó ház - Szentes
*** Csak az OTP Ingatlanpont kínálatában eladó Szentesen, közel a városközponthoz egy 701 nm -es telken elfekvő 150 nm -es, amerikai konyhás + 4 szobás családi ház, ahol a felújítási munkálatok egy része megtörtént, befejezése az új tulajdonosra vár. Milyen jó, hogy ön a saját ízlésére formálhatja! Hatalmas terek, kényelmes méretű helyiségek várják! Új, hőszigetelt műanyag nyílászárók vannak beépítve. a gázkazánnal történő fűtési rendszer kiépítése is megtörtént. a házhoz épített 25 nm -es külön bejáratú lakrészben egy szoba, konyha és fürdőszoba alakítható ki.
Fontos! Készültségi állapotát tekintve hitelfelvételre nem alkalmas, csak készpénzes vásárlóknak ajánljuk! Amennyiben mégis hitelt szeretne a vevő, úgy csakis extra ingatlanfedezet bevonásával oldható meg! Amennyiben az OTP Ingatlanpont kínálatából választ, számíthat szakmai támogatásunkra a teljes vételi folyamat során az adásvételi szerződés megkötésétől a hitel-ügyintézésen át az ingatlan átadásáig. Ajánlom minden kedves ügyfelem részére az OTP Bank által közvetített Babaváró, CSOK plusz, Otthon Start Hitelprogram vagy egyéb kölcsönök intézését. Az OTP Ingatlanpont kedvezményes pénzügyi konstrukciókkal áll ügyfelei rendelkezésére, és VIP-szolgáltatást nyújt az OTP-hiteltermékek, ügyintézésben. Kedvező hitelajánlatokkal (babaváró hitel, piaci hitel, és szabadfelhasználású hitel) várjuk jelentkezését. Számos konstrukció közül választhatnak. Irodáink Szentes, Petőfi u. 12. a buszmegálló felől és Csongrád, Fő u. 54. Szám alatt várja a személyes érdeklődőket. ***Válasszuk ki együtt az önnek legmegfelelőbb ajánlatot! Banki sorban állás nélkül! ***
Referencia szám: m320027 FIX 3% lakáshitelre megvehető
Tetszett ez az eladó Szentesi felújítandó 4 egész és 1 fél szobás családi ház? Hívd fel a hirdetőt most, és tudj meg mindent erről az eladó családi házról! Ha gondolod nézelődj tovább az eladó ház Szentes oldal hirdetései között. Ennek az eladó háznak az ára 30900000 Ft és mivel az alapterülete 123 négyzetméter, ezért az átlagos négyzetméterára 251220 HUF/m2.
Az eladó házak menüpontban további hirdetések között is böngészhetsz. Ha van kedved, akkor böngészhetsz a Orovecz Józsefné összes hirdetése között, vagy akár a/az OTPip Szentes Petőfi utca 12 - OTP Ingatlanpont Iroda összes hirdetése között is.

