Eladó átlagos állapotú ház - Szentes
- INGYENES HIRDETÉS FELADÁS
Ingatlan adatai
- Eladó vagy kiadó:Eladó
- Település:Szentes
- Kategória:Ház
- Alkategória:Családi ház
- Alapterület:59 m2
- Telekterület:1188 m2
- Csere is:Nem
- Hirdető:Cég
- Élő videón megtekinthető:Nem
- Építés éve:1960
- Szobaszám:2 + 1 fél
- Állapot:Átlagos állapotú
- Hány szintes az ingatlan:Földszintes
- Tetőtér:nincs megadva
- Komfortosság:nincs megadva
- Pince:nincs megadva
- Parkolási lehetőség:Udvaron
- Fűtés:Gáz (konvektor)
- Bútorozottság:nincs megadva
- Fényviszony:Jó
- Tájolás:nincs megadva
- Kilátás:nincs megadva
- Internet:nincs megadva
- Klíma:nincs megadva
- Akadálymentesített:nincs megadva
- Energiatanúsítvány:nincs megadva
- Villany:nincs megadva
- Víz:nincs megadva
- Gáz:nincs megadva
- Csatorna:nincs megadva
- Kapcsolatfelvétel

Dr. Szabados Éva
+36-(30)-309-5252
Mondd meg a hirdetőnek, hogy a megveszLAK-on találtad a hirdetést.
Referencia szám: M320996
Hitel ajánlatok
Ingatlan hirdetés leírása
Eladó Ház, Szentes, Eladó átlagos állapotú ház - Szentes
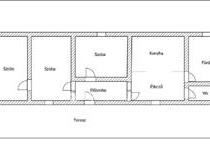
Eladásra kínáljuk Csongrád-Csanád vármegyében Szentesen, ezt a vegyes falazatú, 59 m2-es családi házat, melyhez 67 m2-es melléképület tartozik. Itt a lehetőség, hogy Szentesen a Felsőpárton, csendes, nyugodt környéken kialakítsa álmai otthonát! Ideális fiatal pároknak, összeköltözőknek, családosoknak vagy akár egyedülállóknak. Az ingatlanban 2 szoba, 1 félszoba, előszoba, konyha, étkező, wc és fürdőszoba található. a ház melegét gázkonvektor biztosítja. a ház frissen festve beköltözhető, a házhoz vásároltak már 40 m2 laminált parkettát, 35 m2 bel- és kültérre is használható burkolólapot, 1 db 5 ponton záródó műanyag bejárati ajtót és 500 db klinkertéglát is, mely tartalmazza a vételárat. a telek 1188 m2, amely alkalmas akár állattartásra is. Az udvaron 700 m2 fóliaborda öntözőrendszerrel, 2db fúrt Norton kút, valamint 1db ivóvizes kút is megtalálható. a közelben van helyijáratos buszmegálló, boltok, orvosirendelők, gyógyszertárak, óvodák és iskola is. Az ingatlan tehermentes. Ha érdeklődsz az ingatlan iránt, keress bizalommal, akár hétvégén is! Nézzük meg együtt! Legújabb szolgáltatásként ajánlom minden kedves ügyfelem részére az OTP Bank által közvetített Babaváró, CSOK plusz, Otthon Start Hitelprogram vagy egyéb kölcsönök intézését. Az OTP Ingatlanpont kedvezményes pénzügyi konstrukciókkal áll ügyfelei rendelkezésére! VIP-szolgáltatást nyújtunk az OTP-hiteltermékek ügyintézésében. Jogi és pénzügyi segítséget nyújtanak szakértőink, hogy az adásvétel folyamata gördülékeny legyen. Amennyiben a vételár a kérdés, és úgy gondolja még nincs meg az összeg a leendő új otthonra? Lehet, hogy még is rendelkezésére áll a vételár csak még Ön nem is tudja? Tisztában van valóban az anyagi lehetőségeivel? Az áthidaló megoldásokkal? Esetleg csak az az akadály, hogy nem adta el még a saját ingatlanját? Nem gond, a tulajdonosaink, eladóink szívesen megvárják Önt, segítünk a gyors értékesítésben is. Ne maradjon le a vételről, ha már megtalálta a megfelelő új otthont! Szolgáltatásunk ingyenes, kizárólag sikeres értékesítés esetén van megbízási díj fizetési kötelezettség. a vevők is nálunk vannak és lehet az Ön ingatlanjára várnak? ! Tudjon meg többet, hívjon bizalommal! Eladó ingatlanja van? Nincs vevője? Hívjon segítek az értékesítésben! Kedvező hitelajánlatokkal (babaváró hitel, piaci hitel, és szabadfelhasználású hitel) várjuk jelentkezését. Számos konstrukció közül választhatnak. Irodáink Szentes, Petőfi utca 12. (A buszmegálló felől) és Csongrád, Fő utca 54. Szám alatt várja a személyes érdeklődőket. ***Válasszuk ki együtt az önnek legmegfelelőbb ajánlatot! Banki sorban állás nélkül! ***
Referencia szám: m320996-ml FIX 3% lakáshitelre megvehető

