- >>
- eladó ingatlanok
- >>
- eladó ház
- >>
- eladó ház Szentes
- >>
Eladó jó állapotú ház - Szentes
| | |||
| Kedvencnek jelölöm | Elküldöm emailben | Megosztás | Szavazás |
| FIX 3% lakáshitelre megvehető | |||
| 66 900 000 HUF | |||
Ingatlan adatai
- Eladó vagy kiadó:Eladó
- Település:Szentes
- Kategória:Ház
- Alkategória:Családi ház
- Alapterület:169 m2
- Telekterület:569 m2
- Csere is:Nem
- Hirdető:Cég
- Élő videón megtekinthető:Nem
- Építés éve:1976
- Szobaszám:3
- Állapot:Jó állapotú
- Hány szintes az ingatlan:2 szintes
- Tetőtér:nincs megadva
- Komfortosság:nincs megadva
- Parkolási lehetőség:Teremgarázsban
- Fűtés:Gáz (cirko)
- Bútorozottság:nincs megadva
- Fényviszony:Napfényes
- Tájolás:nincs megadva
- Kilátás:nincs megadva
- Internet:nincs megadva
- Klíma:Van
- Akadálymentesített:nincs megadva
- Energiatanúsítvány:nincs megadva
- Villany:nincs megadva
- Víz:nincs megadva
- Gáz:nincs megadva
- Csatorna:nincs megadva
- Üzenetküldés
- Hívás

Referencia szám: M312227

Hitel ajánlat
Ingatlan hirdetés leírása
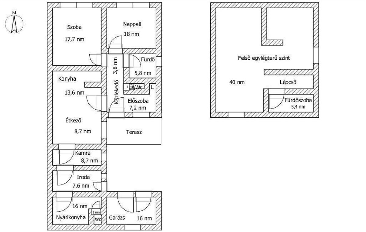
Eladó Ház, Szentes, Eladó jó állapotú ház - Szentes
Kizárólag az OTP Ingatlanpont kínálatában! Otthon, ahol a családi emlékek születnek! Szentes csendes, barátságos részén még is a központhoz közel, eladó egy 169-nm-es, kétszintes családi ház, 569 nm-es telekkel, tökéletes választás mindazoknak, akik szeretnének tágas, szeretetteljes otthonba költözni. a földszinten található: nappali és egy szoba, sarokkádas és zuhanyzós fürdőszoba, külön wc, előszoba, nagy konyha étkezővel, kamra és irodahelyiség, mely közvetlen összeköttetésben van a melléképülettel. Az udvar felől és a házból is megközelíthető a nyárikonyha, külön WC-vel rendelkezik. Az emeleten egy nagylégterű szoba és fürdőszoba található WC-vel. Az udvaron fűtött garázs, kisebb tárolók és egy szín biztosítanak rengeteg helyet a kerti eszközöknek és a kertben végezhető hobbiknak. Amit még szeretni fogsz ebben a házban: napelemek a takarékos energiafelhasználásért, gázfűtés, fa tüzelésű kazán és 2 klíma. Télen-nyáron komfortos hőmérséklet, 5 cm hőszigetelés, energiahatékony megoldások. Ez a ház nem csak falakat és tetőt ad, hanem egy meleg, barátságos otthont, ahol a család minden tagja megtalálhatja a saját kis zugát. Legújabb szolgáltatásként ajánlom minden kedves ügyfelem részére az OTP Bank által közvetített Babaváró, CSOK plusz, Otthon Start Hitelprogram vagy egyéb kölcsönök intézését. Az OTP Ingatlanpont kedvezményes pénzügyi konstrukciókkal áll ügyfelei rendelkezésére! VIP-szolgáltatást nyújtunk az OTP-hiteltermékek ügyintézésében. Jogi és pénzügyi segítséget nyújtanak szakértőink, hogy az adásvétel folyamata gördülékeny legyen. Amennyiben a vételár a kérdés, és úgy gondolja még nincs meg az összeg a leendő új otthonra? Lehet, hogy még is rendelkezésére áll a vételár csak még Ön nem is tudja? Tisztában van valóban az anyagi lehetőségeivel? Az áthidaló megoldásokkal? Esetleg csak az az akadály, hogy nem adta el még a saját ingatlanját? Nem gond, a tulajdonosaink, eladóink szívesen megvárják Önt, segítünk a gyors értékesítésben is. Ne maradjon le a vételről, ha már megtalálta a megfelelő új otthont! Szolgáltatásunk ingyenes, kizárólag sikeres értékesítés esetén van megbízási díj fizetési kötelezettség. a vevők is nálunk vannak és lehet az Ön ingatlanjára várnak? ! Tudjon meg többet, hívjon bizalommal! Eladó ingatlanja van? Nincs vevője? Hívjon segítek az értékesítésben! Kedvező hitelajánlatokkal (babaváró hitel, piaci hitel, és szabadfelhasználású hitel) várjuk jelentkezését. Számos konstrukció közül választhatnak. Irodáink Szentes, Petőfi utca 12. (A buszmegálló felől) és Csongrád, Fő utca 54. Szám alatt várja a személyes érdeklődőket. ***Válasszuk ki együtt az önnek legmegfelelőbb ajánlatot! Banki sorban állás nélkül! ***Referencia szám: m312227-ml FIX 3% lakáshitelre megvehető

