Eladó újszerű állapotú ház - Szigethalom
- INGYENES HIRDETÉS FELADÁS
Ingatlan adatai
- Eladó vagy kiadó:Eladó
- Település:Szigethalom
- Kategória:Ház
- Alkategória:Családi ház
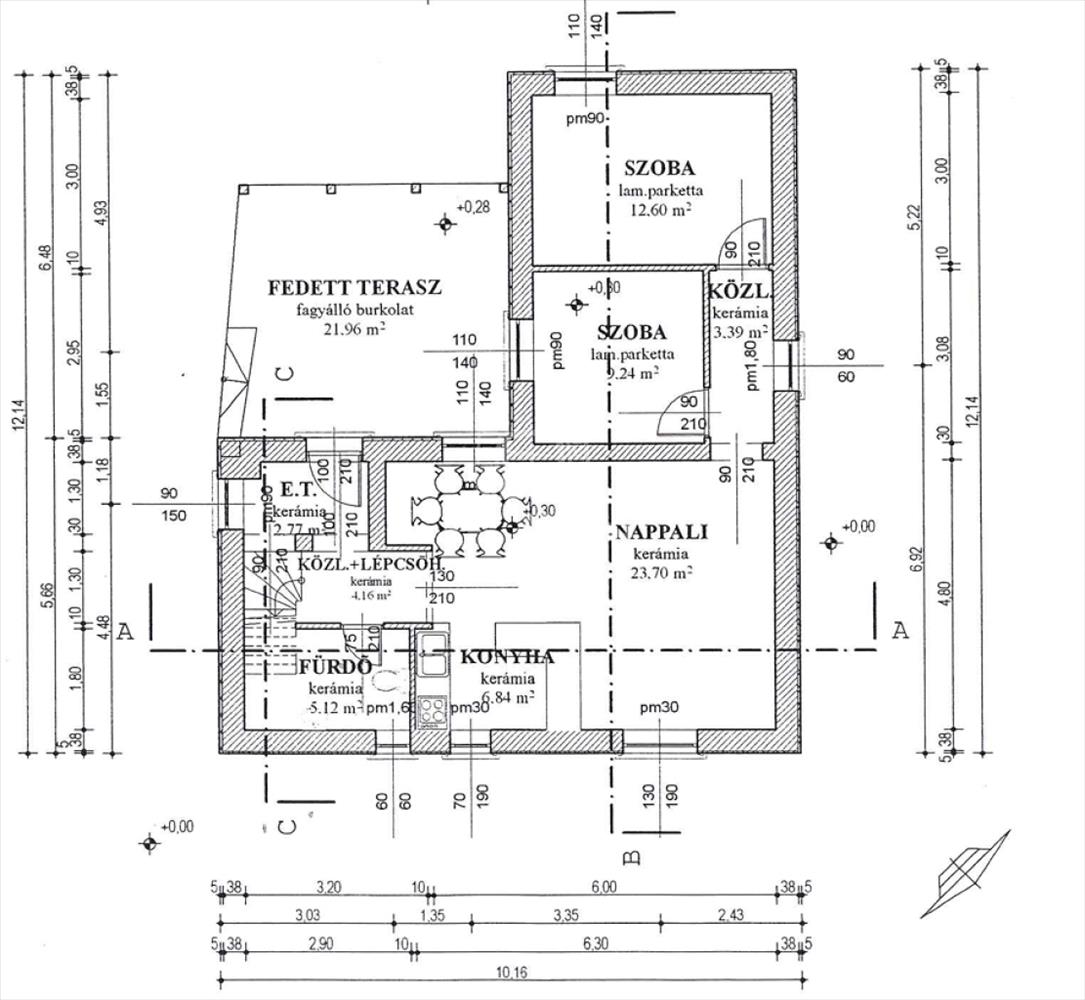
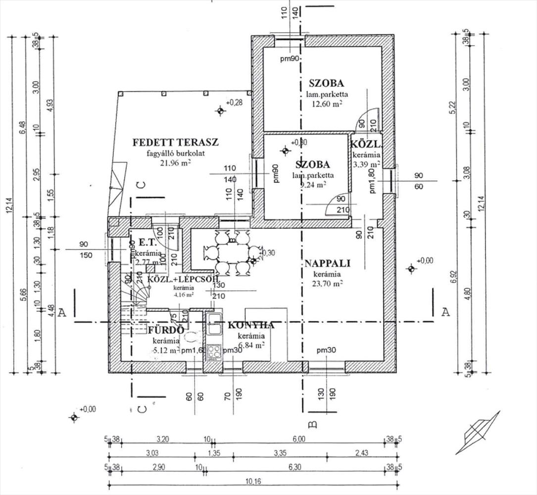
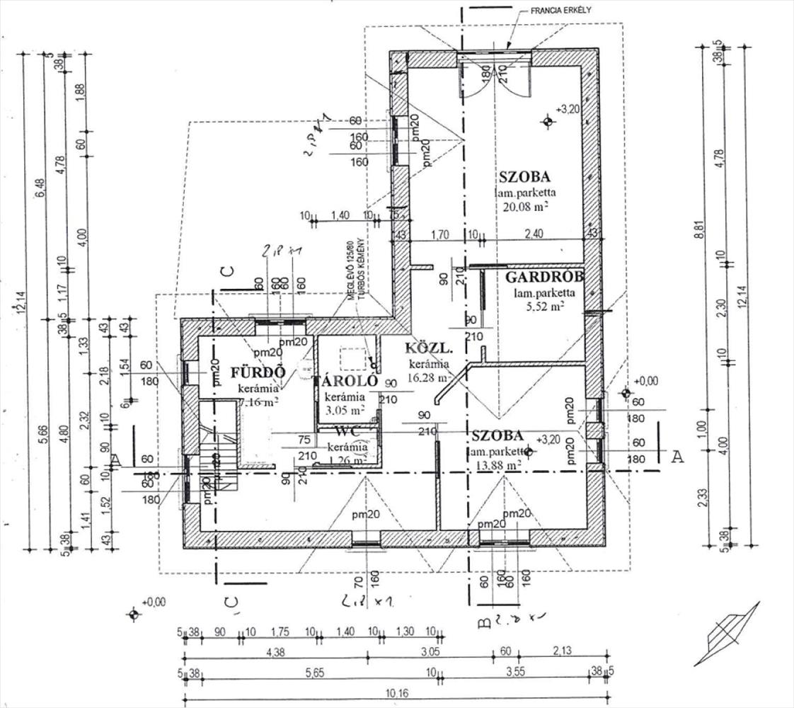
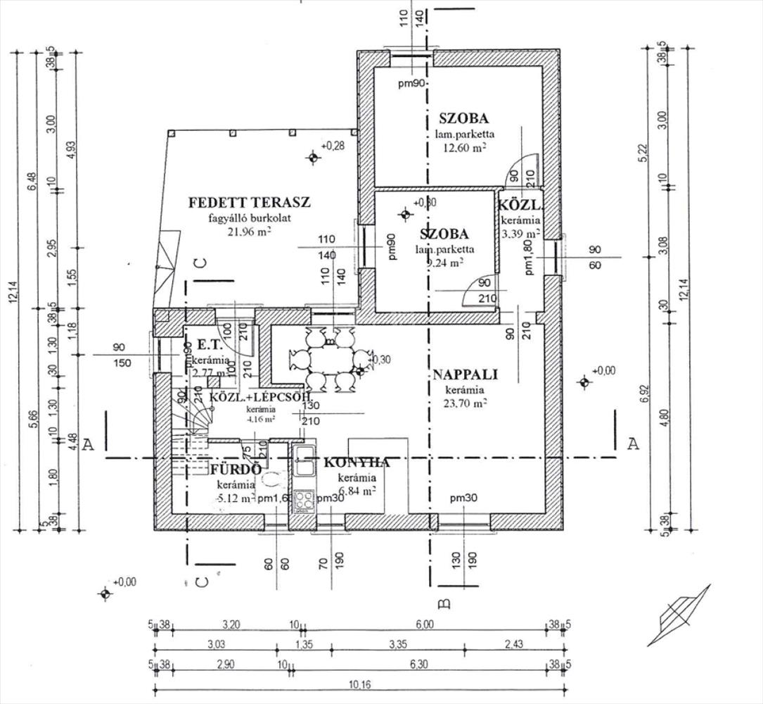
- Alapterület:135 m2
- Telekterület:634 m2
- Csere is:Nem
- Hirdető:Cég
- Élő videón megtekinthető:Nem
- Építés éve:2003
- Szobaszám:5
- Állapot:Újszerű, kitűnő
- Hány szintes az ingatlan:2 szintes
- Tetőtér:nincs megadva
- Komfortosság:nincs megadva
- Pince:nincs megadva
- Parkolási lehetőség:Beállóban
- Fűtés:Gáz (cirko)
- Bútorozottság:nincs megadva
- Fényviszony:nincs megadva
- Tájolás:nincs megadva
- Kilátás:nincs megadva
- Internet:nincs megadva
- Klíma:nincs megadva
- Akadálymentesített:nincs megadva
- Energiatanúsítvány:nincs megadva
- Villany:Van
- Víz:Van
- Gáz:Van
- Csatorna:Van
- Kapcsolatfelvétel

Csík Zsolt
+36-(30)-641-6167
Mondd meg a hirdetőnek, hogy a megveszLAK-on találtad a hirdetést.
Hitel ajánlatok
Ingatlan hirdetés leírása
Kezdhetném azzal, hogy Szigethalmon nyugodt kertvárosi környez...
Kezdhetném azzal, hogy Szigethalmon nyugodt kertvárosi
környezetben panorámás kilátással, szeretném a figyelmébe ajánlani ezt az 5 szobás két szintes mediterrán stílusú családi házat.
Leírhatnám, hogy az ingatlan 634 nm es összközműves telken,
135 nm alapterületű, 2015-ben épült beton sávalapra 38-as Phorotherm téglából, 15 cm homlokzati szigeteléssel, beton födémmel, betoncserép tetővel.
Az otthon melegét wolf turbó gázkazán biztosítja padlófűtéssel és radiátoros hőleadókkal, a nyílászárók műanyag szerkezetűek az alsó szinten 2, a felső szinten 3 rétegű thermo üvegezettek szúnyoghálóval szereltek.
A kellemes hőmérsékletről a nyári melegben két klíma, télen a meghitt hangulatról a nappaliban elhelyezett bio etanol kandalló gondoskodik.
Azt, hogy egy fárasztó nap után az emeleti fürdőszobában egy pohár borral a páratlan kilátás mindenért kárpótol!
A kert páratlan, dupla fedett gk tároló vár, melyet automatizált kapun keresztül tudunk megközelíteni.
De nem teszem mert, ez mind kiderül a hirdetésben feltöltött képekből!
Amit leírni nem lehet az amit nem lát, az OTTHON!
Otthon az ahova este valaki hazavár, ahol nem csak alszol, hanem pihensz, kipihened magad. Ahol összejöhet az egész család a hatalmas fedett teraszon, az otthonos nappaliban!
Ahol ez mind megvan az az OTTHON!
Ezt az érzést, csak akkor tudom megmutatni Önnek, ha személyesen TALÁLKOZUNK.
Jöjjön el nézze meg, garantálom, hogy bele szeret!
Várom megtisztelő hívását!
FINANSZÍROZÁS:
Nálunk mindent egy helyen intézhet:
- hivatalos ingatlanközvetítés;
- szakszerű jogi képviselet;
- profi csok-plusz, és hitelügyintézés: 16 Bank, több mint 100 konstrukció;
A részletes adatvédelmi tájékoztató folyamatosan elérhető a gdn adatvédelmi oldalán. FIX 3% lakáshitelre megvehető
Tetszett ez az eladó Szigethalomi újszerű állapotú 5 szobás családi ház? Hívd fel a hirdetőt most, és tudj meg mindent erről az eladó családi házról! Ha gondolod nézelődj tovább az eladó ház Szigethalom oldal hirdetései között. Ennek az eladó háznak az ára 134000000 Ft és mivel az alapterülete 135 négyzetméter, ezért az átlagos négyzetméterára 992593 HUF/m2.
Az eladó házak menüpontban további hirdetések között is böngészhetsz. Ha van kedved, akkor böngészhetsz a Csík Zsolt összes hirdetése között, vagy akár a/az GDN Ingatlanhálózat összes hirdetése között is.

