Eladó új építésű ház - Szigetszentmiklós
- INGYENES HIRDETÉS FELADÁS
Ingatlan adatai
- Eladó vagy kiadó:Eladó
- Település:Szigetszentmiklós
- Kategória:Ház
- Alkategória:Családi ház
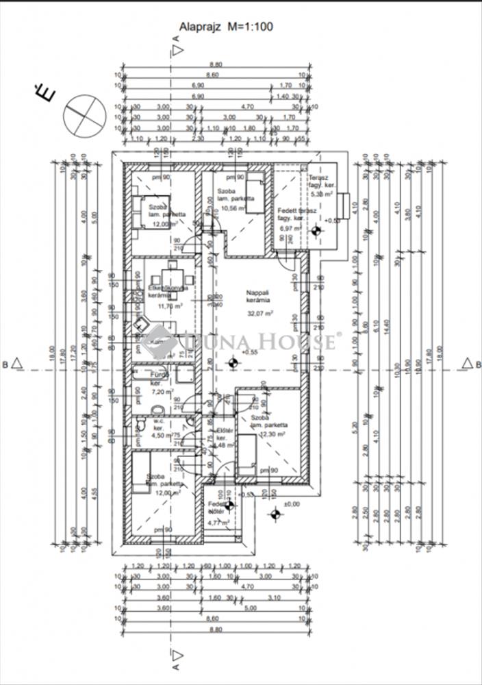
- Alapterület:122 m2
- Telekterület:725 m2
- Csere is:Nem
- Hirdető:Cég
- Élő videón megtekinthető:Nem
- Építés éve:2026
- Szobaszám:4
- Állapot:Új építésű
- Hány szintes az ingatlan:Földszintes
- Tetőtér:nincs megadva
- Komfortosság:nincs megadva
- Pince:nincs megadva
- Parkolási lehetőség:nincs megadva
- Fűtés:Egyéb
- Bútorozottság:nincs megadva
- Fényviszony:Napfényes
- Tájolás:DNY
- Kilátás:nincs megadva
- Internet:nincs megadva
- Klíma:nincs megadva
- Akadálymentesített:nincs megadva
- Energiatanúsítvány:B
- Villany:Van
- Víz:Van
- Gáz:Van
- Csatorna:Van
- Kapcsolatfelvétel

Szücs Gyöngyi
+36-(20)-299-8814
Mondd meg a hirdetőnek, hogy a megveszLAK-on találtad a hirdetést.
Referencia szám: HZ014746
Hitel ajánlatok
Ingatlan hirdetés leírása
Eladó ház, Szigetszentmiklós
Eladásra kínálunk Szigetszentmiklóson egy saroktelken álló, új építésű családi házat, amely 95%-os készültségi állapotban van. Az ingatlan előnye az Ytong szerkezet, az antracit színű cserépfedés és a fedett terasz, amelyek garantálják az új tulajdonos számára a kényelmet és az eleganciát. Az épület méretei megfelelőek egy átlagos család szükségleteinek, így a hely itt mindenki számára megtalálható.
A fedett terasz kiváló helyet biztosít a családi és baráti összejöveteleknek, ahol a szép időben közösen élvezhetik a friss levegőt és a gyönyörű környezetet. Az Ytong szerkezetnek köszönhetően az ingatlan hőszigetelése kiváló, így a téli időszakban jelentős megtakarítás érhető el a fűtésszámlán.
Ez a különleges ajánlat Szigetszentmiklóson található, egy igazán csendes és nyugodt környéken, ahol szinte már az első pillanattól kezdve otthon érezheti magát az új tulajdonos. a saroktelken álló ház által nyújtott privát tér még inkább fokozza ezt az érzést.
Ne hagyja ki ezt a ritkán adódó lehetőséget, hogy egy ilyen egyedülálló otthon legyen az Öné Szigetszentmiklóson. Várjuk jelentkezését, hogy személyesen is megmutathassuk az ingatlan valódi értékét. FIX 3% lakáshitelre megvehető
Tetszett ez az eladó Szigetszentmiklósi új építésű 4 szobás családi ház? Hívd fel a hirdetőt most, és tudj meg mindent erről az eladó családi házról! Ha gondolod nézelődj tovább az eladó ház Szigetszentmiklós oldal hirdetései között. Ennek az eladó háznak az ára 129000000 Ft és mivel az alapterülete 122 négyzetméter, ezért az átlagos négyzetméterára 1057377 HUF/m2.
Az eladó házak menüpontban további hirdetések között is böngészhetsz. Ha van kedved, akkor böngészhetsz a Szücs Gyöngyi összes hirdetése között, vagy akár a/az Duna House Szent Imre-kertváros összes hirdetése között is.

