Eladó újszerű állapotú ház - Szikszó
- INGYENES HIRDETÉS FELADÁS
Ingatlan adatai
- Eladó vagy kiadó:Eladó
- Település:Szikszó
- Kategória:Ház
- Alkategória:Családi ház
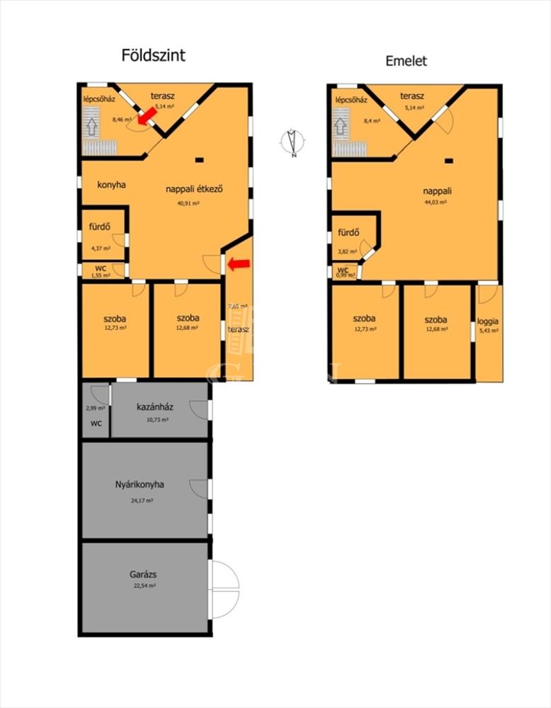
- Alapterület:180 m2
- Telekterület:729 m2
- Csere is:Nem
- Hirdető:Cég
- Élő videón megtekinthető:Nem
- Építés éve:2023
- Szobaszám:6
- Állapot:Újszerű, kitűnő
- Hány szintes az ingatlan:2 szintes
- Tetőtér:nincs megadva
- Komfortosság:nincs megadva
- Pince:nincs megadva
- Parkolási lehetőség:Beállóban
- Fűtés:Házközponti
- Bútorozottság:nincs megadva
- Fényviszony:nincs megadva
- Tájolás:nincs megadva
- Kilátás:nincs megadva
- Internet:nincs megadva
- Klíma:nincs megadva
- Akadálymentesített:nincs megadva
- Energiatanúsítvány:nincs megadva
- Villany:Van
- Víz:Van
- Gáz:Telken belül
- Csatorna:Van
- Kapcsolatfelvétel

Dudás Ágnes
+36-(30)-179-0970
Mondd meg a hirdetőnek, hogy a megveszLAK-on találtad a hirdetést.
Hitel ajánlatok
Ingatlan hirdetés leírása
Eladásra kínálunk egy újszerű állapotú családi házat Szikszó c...
Eladásra kínálunk egy újszerű állapotú családi házat Szikszó csendes utcájában.
A 194 négyzetméteres ingatlan 4 szobával és 2 nappalival rendelkezik, ideális nagyobb családok számára.
A ház fűtését házközponti rendszer biztosítja, amely gazdaságos és kényelmes megoldást nyújt. Minden nyílászáró hőszigetelt.
A kert mérete 729 négyzetméter, elegendő teret biztosít kikapcsolódásra és kertészkedésre.
Az ingatlanhoz tartozik egy 5 négyzetméteres erkély és egy 22 négyzetméteres terasz, amelyek tökéletes helyszín amiről szép látvány mutatkozik a városra
Az utcai kilátás nyugodt környezetet garantál az új tulajdonosok számára. Az ingatlan akár egy sikeres vállalkozás székhelyének vagy bemutatóteremnek, a felsőszint pedig irodának is kialakítható mivel a városközpontban helyezkedík el.
Forduljanak hozzám bizalommal, találjuk meg az Ön számára megfelelő lakást, közösen! FIX 3% lakáshitelre megvehető
Tetszett ez az eladó Szikszói újszerű állapotú 6 szobás családi ház? Hívd fel a hirdetőt most, és tudj meg mindent erről az eladó családi házról! Ha gondolod nézelődj tovább az eladó ház Szikszó oldal hirdetései között. Ennek az eladó háznak az ára 47000000 Ft és mivel az alapterülete 180 négyzetméter, ezért az átlagos négyzetméterára 261111 HUF/m2.
Az eladó házak menüpontban további hirdetések között is böngészhetsz. Ha van kedved, akkor böngészhetsz a Dudás Ágnes összes hirdetése között, vagy akár a/az GDN Ingatlanhálózat összes hirdetése között is.

