Eladó jó állapotú ház - Szikszó
- INGYENES HIRDETÉS FELADÁS
Ingatlan adatai
- Eladó vagy kiadó:Eladó
- Település:Szikszó
- Kategória:Ház
- Alkategória:Családi ház
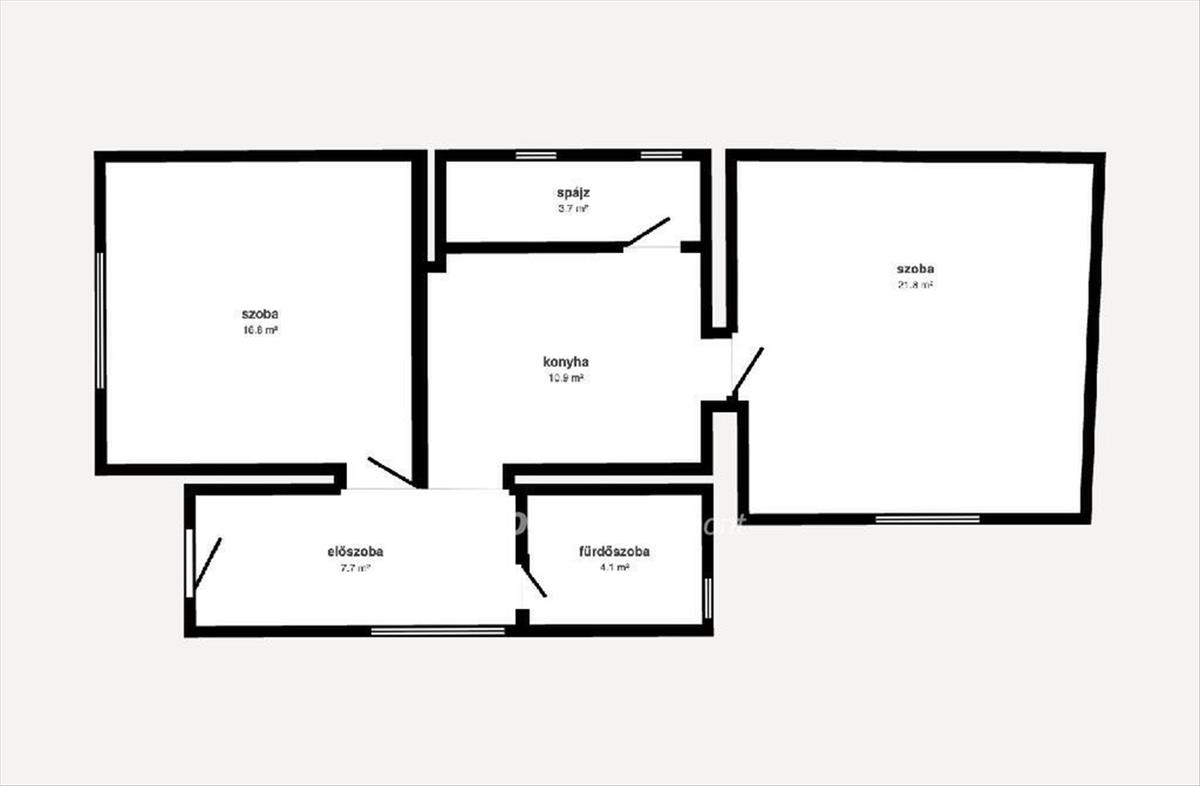
- Alapterület:65 m2
- Telekterület:720 m2
- Csere is:Nem
- Hirdető:Cég
- Élő videón megtekinthető:Nem
- Építés éve:1982
- Szobaszám:2
- Állapot:Jó állapotú
- Hány szintes az ingatlan:Földszintes
- Tetőtér:nincs megadva
- Komfortosság:nincs megadva
- Pince:nincs megadva
- Parkolási lehetőség:Udvaron
- Fűtés:Gáz (konvektor)
- Bútorozottság:nincs megadva
- Fényviszony:Jó
- Tájolás:nincs megadva
- Kilátás:nincs megadva
- Internet:nincs megadva
- Klíma:nincs megadva
- Akadálymentesített:nincs megadva
- Energiatanúsítvány:nincs megadva
- Villany:nincs megadva
- Víz:nincs megadva
- Gáz:nincs megadva
- Csatorna:nincs megadva
- Kapcsolatfelvétel

Piskóti Tibor Lajos
+36-(70)-322-2946
Mondd meg a hirdetőnek, hogy a megveszLAK-on találtad a hirdetést.
Referencia szám: M321687
Hitel ajánlatok
Ingatlan hirdetés leírása
Eladó Ház, Szikszó, Eladó jó állapotú ház - Szikszó
Kizárólag az OTP kínálatában
Eladásra kínálunk Szikszó nyugodt utcájában egy 79 nm -es téglából és szilikátból épült felújított családi házat, mely egy 720 nm -es telken helyezkedik el. Az ingatlanban redőnnyel felszerelt műanyag nyílászárók kerültek beépítésre, továbbá a fürdőszoba, szennyvízhálózat-, valamint villamoshálózat korszerűsítése is megtörtént. Az ingatlan fűtéséről hűtő-fűtő inverteres klímák, továbbá szintén az utóbbi években cserélt gázkonvektorok gondoskodnak, a meleg vizet pedig villanybojler biztosítja. Az ingatlan egyedülállóknak illetve pároknak is egyaránt ideális választás lehet a környék infrastruktúrája miatt. Buszmegálló, boltok, óvoda, iskola, kórház mind elérhető távolságban találhatók, továbbá a hell közelsége miatt befektetési szempontból is egy értékálló beruházás. Hívjon és tekintsük meg együtt, akár hétvégén is! OTP Banki hátterünknek köszönhetően finanszírozási igényekben (pl. Otthon Start Program, Babaváró, Falusi csok, CSOK Plusz, Lakáshitel, Személyi kölcsön stb. ), Illetve biztosítások tekintetében is díjmentesen, soron kívüli ügyintézéssel segítem ügyfeleim! Igény esetén adásvételi szerződéshez ügyvédet biztosítunk. Referenciaszám: M321687
Referencia szám: m321687 FIX 3% lakáshitelre megvehető
Tetszett ez az eladó Szikszói jó állapotú 2 szobás családi ház? Hívd fel a hirdetőt most, és tudj meg mindent erről az eladó családi házról! Ha gondolod nézelődj tovább az eladó ház Szikszó oldal hirdetései között. Ennek az eladó háznak az ára 35900000 Ft és mivel az alapterülete 65 négyzetméter, ezért az átlagos négyzetméterára 552308 HUF/m2.
Az eladó házak menüpontban további hirdetések között is böngészhetsz. Ha van kedved, akkor böngészhetsz a Piskóti Tibor Lajos összes hirdetése között, vagy akár a/az OTPip Miskolc Szemere Bertalan utca 20 - OTP Ingatlanpont Iroda összes hirdetése között is.

