Eladó jó állapotú ház - Szikszó
- INGYENES HIRDETÉS FELADÁS
Ingatlan adatai
- Feladva:4 hónapja a megveszLAK-on
- Eladó vagy kiadó:Eladó
- Település:Szikszó
- Kategória:Ház
- Alkategória:Családi ház
- Alapterület:91 m2
- Telekterület:1095 m2
- Csere is:Nem
- Hirdető:Cég
- Élő videón megtekinthető:Nem
- Építés éve:1962
- Szobaszám:2
- Állapot:Jó állapotú
- Hány szintes az ingatlan:Földszintes
- Tetőtér:nincs megadva
- Komfortosság:nincs megadva
- Pince:nincs megadva
- Parkolási lehetőség:Udvaron
- Fűtés:Gáz (konvektor)
- Bútorozottság:nincs megadva
- Fényviszony:Közepes
- Tájolás:nincs megadva
- Kilátás:nincs megadva
- Internet:nincs megadva
- Klíma:nincs megadva
- Akadálymentesített:nincs megadva
- Energiatanúsítvány:nincs megadva
- Villany:nincs megadva
- Víz:nincs megadva
- Gáz:nincs megadva
- Csatorna:nincs megadva
- Kapcsolatfelvétel

Oroszné Ferencsák Mária
+36-(30)-709-1435
Mondd meg a hirdetőnek, hogy a megveszLAK-on találtad a hirdetést.
Referencia szám: M314937
Hitel ajánlatok
Ingatlan hirdetés leírása
Eladó Ház, Szikszó, Eladó jó állapotú ház - Szikszó
Eladó családi ház Szikszó csendes utcájában, tágas telekkel!
Eladásra kínálok Szikszón, nyugodt, rendezett környezetben, egy 91 m2-es, családi házat, amely egy 1095 m2-es, gondozott telken helyezkedik el. Az ingatlan 1960-ban épült, főfalai vályogból, a mellékfalak téglából készültek.
Ideális választás családoknak vagy pároknak, akik csendes, biztonságos lakókörnyezetben keresnek otthont.
Az évek során a ház folyamatos karbantartást kapott, több fontos felújítás is megtörtént: műanyag, hőszigetelt nyílászárók, vízvezeték cseréje, villanyvezetékek részben felújítva, tetőszerkezet részben felújítva, 30 cm vastag üveggyapot födémszigetelés, ami jó hőmegtartást biztosít.
A fűtést gázkonvektorok, a melegvizet villanybojler biztosítja, így a fenntartási költségek kedvezőek.
Helyiségek és burkolatok:
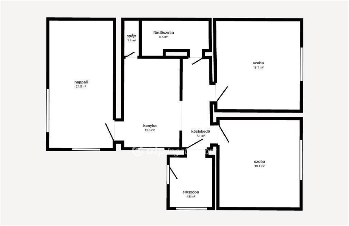
A ház elrendezése praktikus és tágas: nappali + étkező, konyha, két hálószoba, fürdőszoba és wc egyben, előszoba. a szobákban laminált padló, a többi helyiségben járólap található.
A nappali folytatásában terasz kialakítása is lehetséges, és a filagória alapja már elkészült, így a kert további kényelmi funkciókkal könnyen bővíthető.
Telek és környezet:
A 1095 m2-es telek rendezett, jól kihasználható, többféle lehetőséget kínál: kertészkedésre, pihenésre, akár kisállattartásra is kiváló. Udvaron garázs is megtalálható.
A környék csendes, jó szomszédsággal és biztonságos lakókörnyezettel.
A vételár tartalmazza:
A ház részben bútorozott, a következő bútorok a vételár részét képezik: konyhabútor, nappali bútor, hálószobabútor.
Ez az ingatlan remek lehetőség mindazoknak, akik egy nyugodt, biztonságos környéken, felújított, azonnal költözhető házat keresnek Szikszón.
OTP Banki hátterünknek köszönhetően finanszírozási igényekben (pl. Otthon Start Hitelprogram, Babaváró, Falusi csok, CSOK Plusz, Lakáshitel, Személyi kölcsön stb. ), Illetve biztosítások tekintetében is díjmentesen, soron kívüli ügyintézéssel segítem ügyfeleim!
Érdeklődés esetén hivatkozzon m314937 azonosítási számra. FIX 3% lakáshitelre megvehető
Tetszett ez az eladó Szikszói jó állapotú 2 szobás családi ház? Hívd fel a hirdetőt most, és tudj meg mindent erről az eladó családi házról! Ha gondolod nézelődj tovább az eladó ház Szikszó oldal hirdetései között. Ennek az eladó háznak az ára 37000000 Ft és mivel az alapterülete 91 négyzetméter, ezért az átlagos négyzetméterára 406593 HUF/m2.
Az eladó házak menüpontban további hirdetések között is böngészhetsz. Ha van kedved, akkor böngészhetsz a Oroszné Ferencsák Mária összes hirdetése között, vagy akár a/az OTPip Miskolc Szemere Bertalan utca 20 - OTP Ingatlanpont Iroda összes hirdetése között is.

