Eladó átlagos állapotú ház - Szilvásvárad
- INGYENES HIRDETÉS FELADÁS
Ingatlan adatai
- Eladó vagy kiadó:Eladó
- Település:Szilvásvárad
- Kategória:Ház
- Alkategória:Családi ház
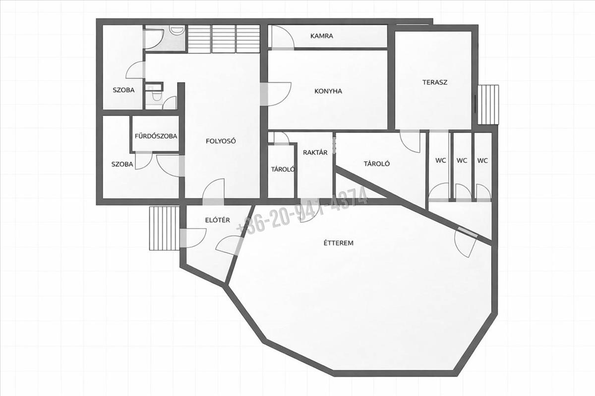
- Alapterület:510 m2
- Telekterület:824 m2
- Csere is:Nem
- Hirdető:Cég
- Élő videón megtekinthető:Nem
- Építés éve:1990
- Szobaszám:10
- Állapot:Átlagos állapotú
- Hány szintes az ingatlan:nincs megadva
- Tetőtér:nincs megadva
- Komfortosság:Dupla komfortos
- Pince:Nincs
- Parkolási lehetőség:Udvaron
- Fűtés:nincs megadva
- Bútorozottság:nincs megadva
- Fényviszony:nincs megadva
- Tájolás:nincs megadva
- Kilátás:nincs megadva
- Internet:nincs megadva
- Klíma:nincs megadva
- Akadálymentesített:nincs megadva
- Energiatanúsítvány:nincs megadva
- Villany:Van
- Víz:Van
- Gáz:Van
- Csatorna:Van
- Kapcsolatfelvétel

Lukovics Vilmos
+36-(20)-941-4374
Mondd meg a hirdetőnek, hogy a megveszLAK-on találtad a hirdetést.
Hitel ajánlatok
Ingatlan hirdetés leírása
Eladó Családi ház, Szilvásvárad, 510nm, 129900000 Ft
Van egy ház Szilvásváradon, ahol a tér, a természet és a lehetőségek ritka harmóniában találkoznak.
Ez nem egy szokványos családi ház.
Ez egy olyan ingatlan, ahol egyszerre lehet kényelmes otthont teremteni, vendégeket fogadni, vállalkozást építeni – vagy mindezt együtt.
A hegyvidéki nyugalomban elhelyezkedő, több szintes épület tágassága már az első belépéskor lenyűgöző. a közel 80 m²-es nappali–étkező–közösségi tér bárpulttal egy valódi élettér: családi ünnepek, baráti esték, vendégek fogadása mind természetesen illeszkedik ide. a külön konyha praktikus, jól elkülönül, mégis könnyen elérhető.
A házban összesen 10 különálló szoba és 10 fürdőszoba található — ritka adottság, amely tökéletessé teszi nagycsaládos életre, vendégháznak vagy akár panziónak is. Mindenki megkapja a saját terét, kényelmét és nyugalmát.
A koronája az ingatlannak a közel 90 m²-es fedett tetőterasz — egy igazi élménytér, ahol reggeli kávé hegyi panorámával, nyári vacsorák a friss levegőn és hosszú beszélgetések a csillagos ég alatt természetessé válnak.
A kert és a tágas udvar tovább növeli az otthonosságot és a szabadságérzetet, a parkolás pedig akár 10 autó számára is kényelmesen megoldott — ritka előny ekkora befogadóképességnél.
Ez az ingatlan nemcsak lakóház.
Ez egy lehetőség.
Lehet belőle:
– álomotthon nagycsaládnak
– jól működő vendégház vagy panzió
– többgenerációs családi birtok
– biztos befektetés turisztikai környezetben
A természet közelsége, a hegyvidéki levegő és Szilvásvárad folyamatosan növekvő népszerűsége hosszú távon is értékálló választássá teszi.
Az ingatlan eladó, de csere is szóba jöhet értékegyeztetéssel.
Ha olyan házat keresel, ami nem csak négy fal — hanem élmény, tér és jövő — akkor ezt mindenképp érdemes megnézned. FIX 3% lakáshitelre megvehető
Tetszett ez az eladó Szilvásváradi átlagos állapotú 10 szobás családi ház? Hívd fel a hirdetőt most, és tudj meg mindent erről az eladó családi házról! Ha gondolod nézelődj tovább az eladó ház Szilvásvárad oldal hirdetései között. Ennek az eladó háznak az ára 129900000 Ft és mivel az alapterülete 510 négyzetméter, ezért az átlagos négyzetméterára 254706 HUF/m2.
Az eladó házak menüpontban további hirdetések között is böngészhetsz. Ha van kedved, akkor böngészhetsz a Lukovics Vilmos összes hirdetése között, vagy akár a/az Leéb és Fia Ingatlanközvetítő Iroda összes hirdetése között is.

