Eladó jó állapotú ház Szilvásvárad
| Kedvencbe | Megosztás | Árfigyelő |
| FIX 3% lakáshitelre megvehető | ||
| 34 500 000 HUF | ||
Ingatlan adatai
- Eladó vagy kiadó:Eladó
- Település:Szilvásvárad
- Kategória:Ház
- Alkategória:Családi ház
- Alapterület:85 m2
- Telekterület:125 m2
- Csere is:Nem
- Hirdető:Cég
- Élő videón megtekinthető:Nem
- Építés éve:1950
- Szobaszám:2
- Állapot:Jó állapotú
- Hány szintes az ingatlan:Földszintes
- Tetőtér:nincs megadva
- Komfortosság:nincs megadva
- Parkolási lehetőség:Udvaron
- Fűtés:Elektromos
- Bútorozottság:nincs megadva
- Fényviszony:Napfényes
- Tájolás:nincs megadva
- Kilátás:nincs megadva
- Internet:nincs megadva
- Akadálymentesített:nincs megadva
- Energiatanúsítvány:nincs megadva
- Villany:nincs megadva
- Víz:nincs megadva
- Gáz:nincs megadva
- Csatorna:nincs megadva
- Üzenetküldés
- Hívás

Referencia szám: M306733

Hitel ajánlat
Ingatlan hirdetés leírása
Eladó Ház, Szilvásvárad
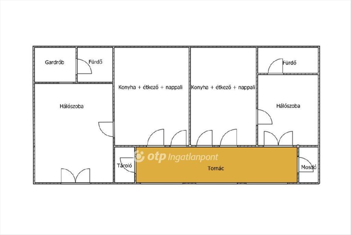
Kizárólag az OTP Ingatlanpont kínálatában!Szilvásváradon, a Bükk hegység kapujában eladásra kínálunk egy két különálló lakrészből álló, azonnal költözhető, teljes körűen felújított ingatlant, amely ideális választás lehet állandó otthonnak, hétvégi háznak vagy akár szállásadási célú befektetésnek.
Az épület 2019-ben átfogó felújításon esett át, melynek során megtörtént a villanyvezetékek, víz- és szennyvízrendszer cseréje, a hidegburkolatok korszerűsítése, valamint az új tetőhéjazat kialakítása, így a ház műszaki állapota kifogástalan.
A két apartman, melyek igény esetén könnyedén egybenyithatók, így egy tágas családi otthont eredményezve, egyenként egy szobát, étkezős konyhát, modern kialakítású fürdőszobát és egy praktikus tárolóhelyiséget foglalnak magukba. a korszerű műanyag nyílászárók és a modern elektromos fűtőpanelek biztosítják a kényelmes és energiatakarékos működést.
Az ingatlan előtti belső udvarban kényelmes parkolási lehetőség biztosított. a ház mindkét apartmanja, eddig sikeresen működött szálláshelyként, kialakításuk és állapotuk minden jelenlegi turisztikai elvárásnak megfelel.
Ez a kivételes lehetőség mindazoknak szól, akik szeretnének Szilvásvárad festői környezetében élni vagy vállalkozni, egy minden szempontból felújított és sokoldalúan hasznosítható ingatlanban.
Amennyiben a fotók és az ingatlan paraméterei felkeltették érdeklődését, kérem forduljon hozzánk bizalommal.
Irodánk teljes körű szolgáltatással áll ügyfelei rendelkezésére: legyen szó csok+, Falusi csok, Babaváró támogatásról, piaci vagy államilag támogatott hitel ügyintézésről, energetikai tanúsítvány elkészítéséről, illetve jogi hátteret biztosító ügyvédi közreműködésről? Nálunk mindent egy helyen elintézhet! FIX 3% lakáshitelre megvehető

