Eladó ház - Sződ
- INGYENES HIRDETÉS FELADÁS
Ingatlan adatai
- Eladó vagy kiadó:Eladó
- Település:Sződ
- Kategória:Ház
- Alkategória:Ikerház
- Alapterület:111 m2
- Telekterület:415 m2
- Csere is:Nem
- Hirdető:Cég
- Élő videón megtekinthető:Nem
- Szobaszám:4 + 1 fél
- Állapot:nincs megadva
- Hány szintes az ingatlan:2 szintes
- Tetőtér:nincs megadva
- Komfortosság:nincs megadva
- Pince:Nincs
- Parkolási lehetőség:nincs megadva
- Fűtés:nincs megadva
- Bútorozottság:nincs megadva
- Fényviszony:nincs megadva
- Tájolás:nincs megadva
- Kilátás:nincs megadva
- Internet:nincs megadva
- Klíma:nincs megadva
- Akadálymentesített:nincs megadva
- Energiatanúsítvány:nincs megadva
- Villany:nincs megadva
- Víz:nincs megadva
- Gáz:nincs megadva
- Csatorna:nincs megadva
- Kapcsolatfelvétel

Czirják Mihály
+36-(20)-220-9995
Mondd meg a hirdetőnek, hogy a megveszLAK-on találtad a hirdetést.
Hitel ajánlatok
Ingatlan hirdetés leírása
Sződ frenkventált részén, csendes, családi házas övezetben egy...
Sződ frenkventált részén, csendes, családi házas övezetben egy új építésű, szabadon álló, dupla komfortos, kétszintes, különálló ikerház eladó.
Az ingatlan főbb jellemzői:
Az ingatlan délnyugati tájolású, sík telken helyezkedik el, mely önállóan áll, egyik fala sem kapcsolódik az ikerház másik feléhez.
Az ingatlan 830 m2 telken helyezkedik el, amelyhez udvaron belüli, viacolorral lerakott autóbeálló tartozik.
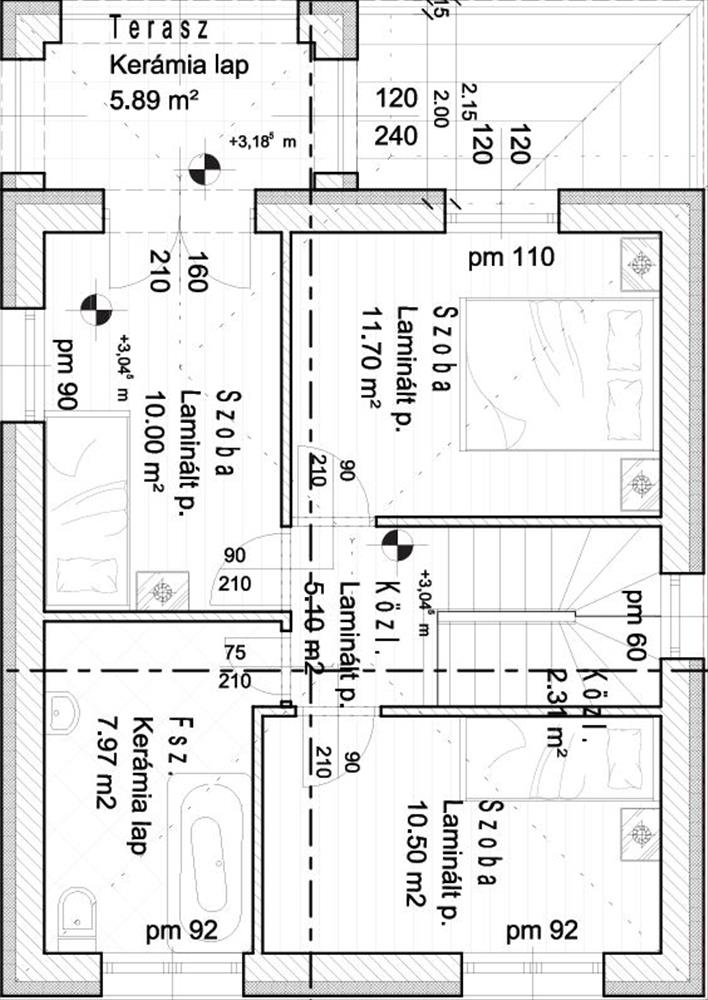
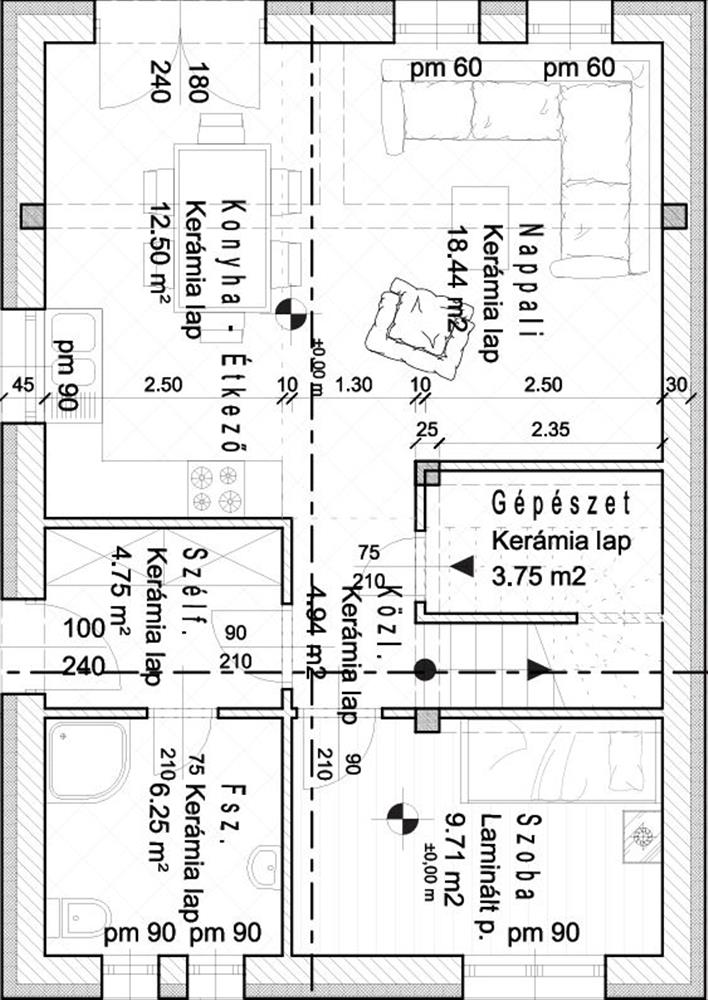
A lakás hasznos alapterülete 111, 50 m2, amelybe beletartozik egy amerikai konyhás nappali, 4 szoba, 2 fürdőszoba és egy tároló helyiség. Ezenkívül egy gépészeti helyiség, egy emeleti közlekedő, egy erkély és egy fedetlen terasz is a ház részét képezik.
Az emeleti szobák teljes szintűek. a földszinti fürdőben zuhanyzó, az emeleti fürdőszobában kád került kialakításra. a teraszra az étkezőből nyílik az ajtó.
Műszaki leírás:
Az ingatlan függőleges teherhordó szerkezetei 30 cm vastagságú, síkra csiszolt Porotherm téglából készültek, homlokzati szigeteléssel.
A tetőt antracitszürke színű Bramac betoncserép fedi.
A fűtési rendszer hőszivattyúval van kialakítva, az összes helyiség padlófűtéssel ellátott.
Elhelyezkedés, közlekedés:
A település 15 percre fekszik a fővárostól, 12 percre fekszik Vác barokk belvárosától és az m2-es autópályáról 5 perc alatt könnyen megközelíthető.
A közelben található buszmegálló, vasútállomás, élelmiszerüzlet, általános iskola, óvoda, bölcsőde, posta, gyógyszertár, orvosi rendelő, fogászat, bank, pékség, játszótér.
Az ingatlan jelenleg épül, átadása 2026. Harmadik negyedévére várható, ezért a belső burkolatok és a belső nyílászárók még szabadon választhatóak a jövendőbeli tulajdonos elképzeléséhez igazodva. a belső műszaki tartalom alapján választhatóak a hideg- és meleg burkolatok.
A képeken korábban épült, más helyszínen található, a leírásban megfelelő ingatlan látható.
A kivitelező megbízható, sok referenciával rendelkezik.
Az ingatlan kulcsrakész ára 126. 000. 000 Forint.
Kérem forduljon hozzám bizalommal, és egyeztessünk megtekintési időpontot!
TEKINTSE meg irodánk további kínálatát logónkra kattintva. FIX 3% lakáshitelre megvehető
Tetszett ez az eladó Sződi 4 egész és 1 fél szobás ikerház? Hívd fel a hirdetőt most, és tudj meg mindent erről az eladó ikerházról! Ha gondolod nézelődj tovább az eladó ház Sződ oldal hirdetései között. Ennek az eladó háznak az ára 126000000 Ft és mivel az alapterülete 111 négyzetméter, ezért az átlagos négyzetméterára 1135135 HUF/m2.
Az eladó házak menüpontban további hirdetések között is böngészhetsz. Ha van kedved, akkor böngészhetsz a Czirják Mihály összes hirdetése között, vagy akár a/az Dunakeszi Ingatlanközpont összes hirdetése között is.

