Eladó ház - Sződ (85582434)
ELADÓ INGATLANOK
KIADÓ INGATLANOK
CSERE INGATLANOK
KÜLFÖLDI INGATLANOK
RÉSZLETES KERESÉS
INGATLAN HÍREK
HIRDETÉS FELADÁS
BELÉPÉS
REGISZTRÁCIÓ

Ingatlan adatai

  • Eladó vagy kiadó:Eladó
  • Település:Sződ
  • Kategória:Ház
  • Alkategória:Családi ház
  • Alapterület:111 m2
  • Telekterület:415 m2
  • Csere is:Nem
  • Hirdető:Cég
  • Élő videón megtekinthető:Nem
  • Szobaszám:4 + 1 fél
  • Állapot:nincs megadva
  • Hány szintes az ingatlan:nincs megadva
  • Tetőtér:nincs megadva
  • Komfortosság:nincs megadva
  • Pince:Nincs
  • Parkolási lehetőség:nincs megadva
  • Fűtés:nincs megadva
  • Bútorozottság:nincs megadva
  • Fényviszony:nincs megadva
  • Tájolás:nincs megadva
  • Kilátás:nincs megadva
  • Internet:nincs megadva
  • Klíma:nincs megadva
  • Akadálymentesített:nincs megadva
  • Energiatanúsítvány:nincs megadva
  • Villany:nincs megadva
  • Víz:nincs megadva
  • Gáz:nincs megadva
  • Csatorna:nincs megadva
  • Kapcsolatfelvétel
Czirják Mihály
Czirják Mihály
+36-(20)-220-9995
Mondd meg a hirdetőnek, hogy a megveszLAK-on találtad a hirdetést.
Érdekel kedvezményes lakáshitel ajánlat is
Az ASZF-et és az Adatkezelési tájékoztatót elfogadom

Hitel ajánlatok

 

Ingatlan hirdetés leírása

Sződ frenkventált részén, csendes, családi házas övezetben egy...


Sződ frenkventált részén, csendes, családi házas övezetben egy új építésű, szabadon álló, dupla komfortos, kétszintes, különálló ikerház eladó.

Az ingatlan főbb jellemzői:

Az ingatlan délnyugati tájolású, sík telken helyezkedik el, mely önállóan áll, egyik fala sem kapcsolódik az ikerház másik feléhez.

Az ingatlan 830 m2 telken helyezkedik el, amelyhez udvaron belüli, viacolorral lerakott autóbeálló tartozik.

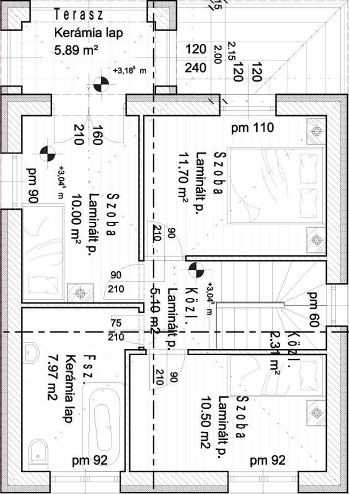
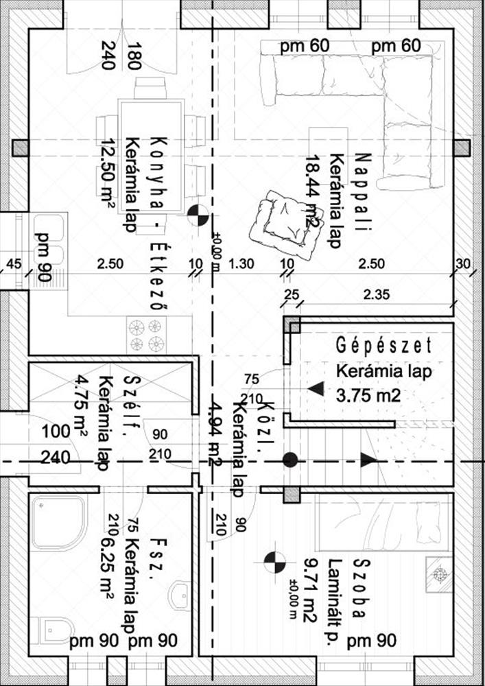
A lakás hasznos alapterülete 111, 50 m2, amelybe beletartozik egy amerikai konyhás nappali, 4 szoba, 2 fürdőszoba és egy tároló helyiség. Ezenkívül egy gépészeti helyiség, egy emeleti közlekedő, egy erkély és egy fedetlen terasz is a ház részét képezik.

Az emeleti szobák teljes szintűek. a földszinti fürdőben zuhanyzó, az emeleti fürdőszobában kád került kialakításra. a teraszra az étkezőből nyílik az ajtó.

Műszaki leírás:

Az ingatlan függőleges teherhordó szerkezetei 30 cm vastagságú, síkra csiszolt Porotherm téglából készültek, homlokzati szigeteléssel.

A tetőt antracitszürke színű Bramac betoncserép fedi.

A fűtési rendszer hőszivattyúval van kialakítva, az összes helyiség padlófűtéssel ellátott.

Elhelyezkedés, közlekedés:

A település 15 percre fekszik a fővárostól, 12 percre fekszik Vác barokk belvárosától és az m2-es autópályáról 5 perc alatt könnyen megközelíthető.

A közelben található buszmegálló, vasútállomás, élelmiszerüzlet, általános iskola, óvoda, bölcsőde, posta, gyógyszertár, orvosi rendelő, fogászat, bank, pékség, játszótér.

Az ingatlan jelenleg épül, átadása 2026. Harmadik negyedévére várható, ezért a belső burkolatok és a belső nyílászárók még szabadon választhatóak a jövendőbeli tulajdonos elképzeléséhez igazodva. a belső műszaki tartalom alapján választhatóak a hideg- és meleg burkolatok.

A képeken korábban épült, más helyszínen található, a leírásban megfelelő ingatlan látható.

A kivitelező megbízható, sok referenciával rendelkezik.

Az ingatlan kulcsrakész ára 126. 000. 000 Forint.

Kérem forduljon hozzám bizalommal, és egyeztessünk megtekintési időpontot!

TEKINTSE meg irodánk további kínálatát logónkra kattintva. FIX 3% lakáshitelre megvehető
 
 

Hasonló ingatlan hirdetések

 
 
© megveszLAK.hu - Az egyszerűen jó ingatlan hirdetési oldal