Eladó új építésű ház Szombathely
| Kedvencbe | Megosztás | Árfigyelő |
| FIX 3% lakáshitelre megvehető | ||
| 99 750 000 HUF | ||
Ingatlan adatai
- Eladó vagy kiadó:Eladó
- Település:Szombathely
- Kategória:Ház
- Alkategória:Családi ház
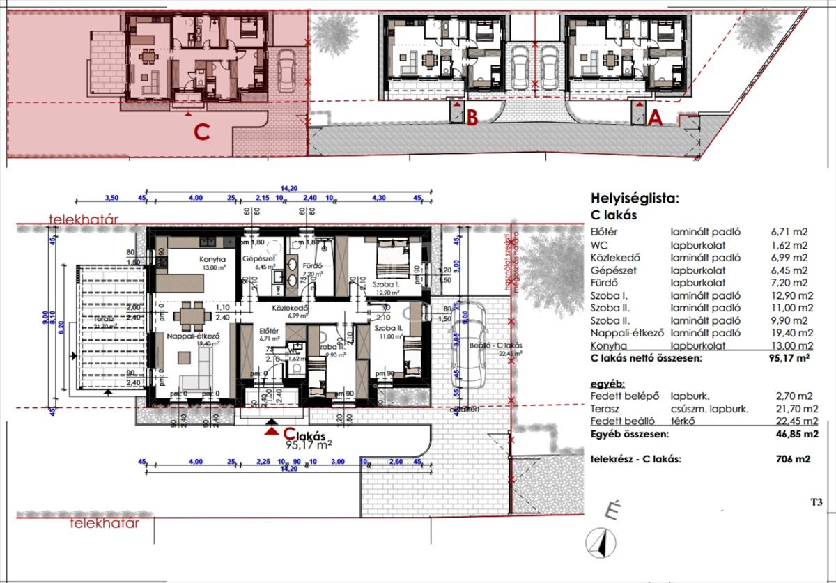
- Alapterület:95 m2
- Telekterület:706 m2
- Csere is:Nem
- Hirdető:Cég
- Élő videón megtekinthető:Nem
- Építés éve:2026
- Szobaszám:4
- Állapot:Új építésű
- Hány szintes az ingatlan:Földszintes
- Tetőtér:nincs megadva
- Komfortosság:nincs megadva
- Parkolási lehetőség:Beállóban
- Fűtés:nincs megadva
- Bútorozottság:nincs megadva
- Fényviszony:nincs megadva
- Tájolás:nincs megadva
- Kilátás:nincs megadva
- Internet:nincs megadva
- Akadálymentesített:nincs megadva
- Energiatanúsítvány:nincs megadva
- Villany:Van
- Víz:Van
- Gáz:Utcában
- Csatorna:Van
- Üzenetküldés
- Hívás

Berkéné Szűcs Judit
Mondd meg a hirdetőnek, hogy a megveszLAK-on találtad a hirdetést.

Hitel ajánlat
Ingatlan hirdetés leírása
Szombathelyen az oladi dombon, aszfaltos útról megközelíthető,...
Szombathelyen az oladi dombon, aszfaltos útról megközelíthető, új építésű házak eladók. a telekre 2db 63 m2 -es ház ( amelyek lexánnal fedett gépkocsibeállókkal érintkeznek) és egy 95 m2-es különálló ingatlan épül. Az ikresített házakhoz 256 m2 saját kert tartozik. a szóló ingatlan 706 m2 telket tudhat magáénak.A Wienerberger Porotherm téglából épülő házak magas műszaki tartalommal épülnek. Tetőszerkezete c22 i. Osztályú, rovar, gomba és lángmentesítővel kezelt faanyaggal kerül kivitelezésre. Fedése Terran vagy Bramac cseréppel történik, az összes rendszer tartozékkal, előírások szerint helyenként hófogóval. Bádogos szerkezetek, a külső vízelvezetések ereszcsatornái, a lefolyócsövei és az egyéb bádogos szerkezetek 0. 6 Mm vastag acéllemezből készülnek. Homlokzati falfelületek 15 cm vastag eps hőszigetelő rendszert, a lábazatok 10 cm vastag xps lábazati hőszigetelő rendszert kapnak. a padozatokba 10 cm vastag teherbíró eps hab hőszigetelés kerül. a födém hőszigetelése 25 cm vastag ásványgyapot szigetelőanyaggal történik. Külső nyílászárói műanyag, három rétegű üvegezéssel szerelt, fokozottan hang-és hőszigeteltek. Fűtése, a háztartási helyiségben elhelyezett 10Kw teljesítményű Gree Versati 3 hőszivattyúval történik, padlófűtéses hőleadással szabályozható termosztáttal. a hőszivattyú biztosítja a melegvizet is, egy 200 literes hőtárolós víztartállyal. Nappaliában 3. 5 Kw teljesítményű hűtő-fűtő klíma kerül. Az ingatlanban riasztó, kaputelefon, előkészítés történik. Beltéri ajtók, hideg-meleg burkolatok, szaniterek, csaptelepek választhatók. . Ha bővebb tájékoztatást szeretne, kérem keressen. Vegye igénybe irodánk szolgáltatásait. Hitelügyintézésben is segítünk. FIX 3% lakáshitelre megvehető

