Eladó jó állapotú ház - Szomolya
- INGYENES HIRDETÉS FELADÁS
Ingatlan adatai
- Eladó vagy kiadó:Eladó
- Település:Szomolya
- Kategória:Ház
- Alkategória:Családi ház
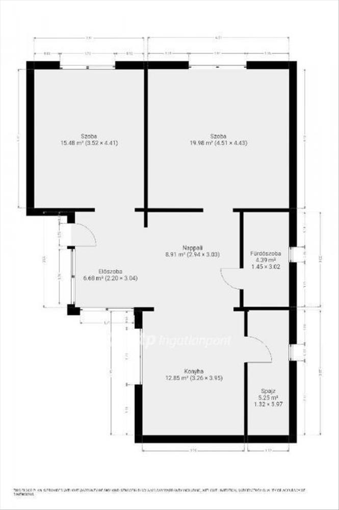
- Alapterület:73 m2
- Telekterület:1069 m2
- Csere is:Nem
- Hirdető:Cég
- Élő videón megtekinthető:Nem
- Építés éve:1950
- Szobaszám:2
- Állapot:Jó állapotú
- Hány szintes az ingatlan:Földszintes
- Tetőtér:nincs megadva
- Komfortosság:nincs megadva
- Pince:nincs megadva
- Parkolási lehetőség:Teremgarázsban
- Fűtés:Gáz (konvektor)
- Bútorozottság:nincs megadva
- Fényviszony:Napfényes
- Tájolás:nincs megadva
- Kilátás:nincs megadva
- Internet:nincs megadva
- Klíma:nincs megadva
- Akadálymentesített:nincs megadva
- Energiatanúsítvány:nincs megadva
- Villany:nincs megadva
- Víz:nincs megadva
- Gáz:nincs megadva
- Csatorna:nincs megadva
- Kapcsolatfelvétel

Juhász Anita
+36-(70)-907-0700
Mondd meg a hirdetőnek, hogy a megveszLAK-on találtad a hirdetést.
Referencia szám: M316882
Hitel ajánlatok
Ingatlan hirdetés leírása
Eladó Ház, Szomolya, Eladó jó állapotú ház - Szomolya
Szomolyán, csendes utcában eladó egy 73, 5 m2-es, két szobás családi ház 1069 m2-es, panorámás telken.
Az ingatlan tufa falazattal épült, szerkezetileg stabil, jól karbantartott, és villamos hálózata, valamint tetőszerkezete felújított. a ház ideális alapot kínál azok számára, akik saját ízlésükre formálnák otthonukat egy nyugodt, természetközeli környezetben.
A telek különlegessége a kőbe vájt, egykori istálló, amely kiválóan alkalmas lehet hangulatos nyári konyha, borospince vagy akár külön pihenőtér kialakítására.
A környék panorámás kilátást, friss levegőt és csendes vidéki hangulatot kínál, így az ingatlan állandó lakhatásra, hétvégi háznak vagy turisztikai célra is remek választás.
OTP Banki hátterünknek köszönhetően finanszírozási igényekben (pl. Otthon Start Program, Babaváró, Falusi csok, CSOK Plusz, Lakáshitel, Személyi kölcsön stb. ), Illetve biztosítások tekintetében is díjmentesen, soron kívüli ügyintézéssel segítem ügyfeleim! Referenciaszám: M316882
Referencia szám: m316882-ml FIX 3% lakáshitelre megvehető

