Eladó újszerű állapotú ház - Tápiószele
- INGYENES HIRDETÉS FELADÁS
Ingatlan adatai
- Eladó vagy kiadó:Eladó
- Település:Tápiószele
- Kategória:Ház
- Alkategória:Családi ház
- Alapterület:119 m2
- Telekterület:1140 m2
- Csere is:Nem
- Hirdető:Cég
- Élő videón megtekinthető:Nem
- Építés éve:2026
- Szobaszám:4
- Állapot:Újszerű, kitűnő
- Hány szintes az ingatlan:nincs megadva
- Tetőtér:nincs megadva
- Komfortosság:nincs megadva
- Pince:Nincs
- Parkolási lehetőség:Garázsban
- Fűtés:Geotermikus
- Bútorozottság:nincs megadva
- Fényviszony:nincs megadva
- Tájolás:nincs megadva
- Kilátás:nincs megadva
- Internet:nincs megadva
- Klíma:nincs megadva
- Akadálymentesített:nincs megadva
- Energiatanúsítvány:nincs megadva
- Villany:nincs megadva
- Víz:Van
- Gáz:Van
- Csatorna:Van
- Kapcsolatfelvétel

Debre László
+36-(20)-234-4207
Mondd meg a hirdetőnek, hogy a megveszLAK-on találtad a hirdetést.
Hitel ajánlatok
Ingatlan hirdetés leírása
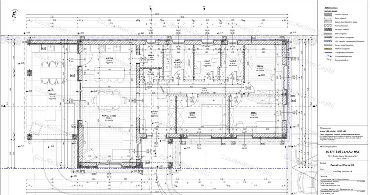
Épülő családi ház Tápiószelén
A casanetwork Cegléd eladásra kínálja - látványtervek alapján - a 174602212 számú Pest megyében, Tápiószele városban lévő 119 m2 alapterületű családi házat, ami egy 1140 m2-es rendezett, körbekerített telken helyezkedik el.
A ház kivitelezése maximum 10 hónapot vesz igénybe az előszerződést követően.
Az ingatlan jellemzői:
– amerikai konyhás nappali
– 3 hálószoba
– fürdőszoba
– külön WC
– háztartási helyiség
– terasz
A ház energiatakarékos kivitelezésben épül, korszerű hőszivattyús fűtéssel, padlófűtéssel.
CSOK Plusz és Otthon Start igénybe vehető!
Főbb műszaki jellemzők
– 30-as nútféderes tégla falazat
– fa födém
– antracit betoncserép tetőhéjazat
– 15 cm eps homlokzati szigetelés
– 10 cm Austrotherm at-n100 padlószigetelés
– 25 cm ásványgyapot födémszigetelés
– 6 légkamrás, 3 rétegű üvegezésű nyílászárók
– 10 kW monoblockos hőszivattyú
– padlófűtés
Választható műszaki tartalom (alapárban)
– hidegburkolat: 3. 000 Ft/m²-ig
– melegburkolat: 3. 000 Ft/m²-ig
– csaptelepek: 15. 000 Ft/db-ig
– kád vagy zuhany: 40. 000 Ft-ig
– beltéri ajtók: 35. 000 Ft/db-ig
Magasabb árkategóriás anyagok is választhatók a különbözet finanszírozásával.
Elektromos kiépítés
– szobák: 3 db konnektor
– nappali: 4 db konnektor + internet és kábeltévé kiállás
– konyha: 6 db konnektor
– világítás: helyiségenként 1 db
– kábeltévé előkészítés
– riasztó előkészítés
– kapumozgató elektronika előkészítés
Megtekintése előre egyeztetett időpontban lehetséges!
Amennyiben a174602212 számú, a casanetwork Cegléd által kínált családi ház vagy bármely a kínálatunkban található ingatlan felkeltette érdeklődését, hívjon a megadott telefonszámon. /A hirdetésben szereplő információk a megbízótól kapott adatok alapján készültek, pontosságukért felelősséget nem vállalunk! /
Irodánk teljes körű segítséget tud nyújtani hitelekhez és az összes államilag finanszírozott családi támogatásokhoz!
Kollégám díjmentes, bank semleges hitel ügyintézéssel áll rendelkezésre.
CASANETWORK - Ingatlanban otthon vagyunk! FIX 3% lakáshitelre megvehető
Tetszett ez az eladó Tápiószelei újszerű állapotú 4 szobás családi ház? Hívd fel a hirdetőt most, és tudj meg mindent erről az eladó családi házról! Ha gondolod nézelődj tovább az eladó ház Tápiószele oldal hirdetései között. Ennek az eladó háznak az ára 64900000 Ft és mivel az alapterülete 119 négyzetméter, ezért az átlagos négyzetméterára 545378 HUF/m2.
Az eladó házak menüpontban további hirdetések között is böngészhetsz. Ha van kedved, akkor böngészhetsz a Debre László összes hirdetése között, vagy akár a/az CasaNetWork Cegléd összes hirdetése között is.

