Eladó újszerű állapotú ház - Tápiószele
- INGYENES HIRDETÉS FELADÁS
Ingatlan adatai
- Eladó vagy kiadó:Eladó
- Település:Tápiószele
- Kategória:Ház
- Alkategória:Családi ház
- Alapterület:41 m2
- Telekterület:6783 m2
- Csere is:Nem
- Hirdető:Cég
- Élő videón megtekinthető:Nem
- Építés éve:1977
- Szobaszám:1 + 2 fél
- Állapot:Újszerű, kitűnő
- Hány szintes az ingatlan:Földszintes
- Tetőtér:nincs megadva
- Komfortosság:nincs megadva
- Pince:nincs megadva
- Parkolási lehetőség:Udvaron
- Fűtés:Egyéb
- Bútorozottság:nincs megadva
- Fényviszony:Napfényes
- Tájolás:nincs megadva
- Kilátás:nincs megadva
- Internet:nincs megadva
- Klíma:nincs megadva
- Akadálymentesített:nincs megadva
- Energiatanúsítvány:nincs megadva
- Villany:nincs megadva
- Víz:nincs megadva
- Gáz:nincs megadva
- Csatorna:nincs megadva
- Kapcsolatfelvétel

Botka József
+36-(20)-348-3543
Mondd meg a hirdetőnek, hogy a megveszLAK-on találtad a hirdetést.
Referencia szám: M323376
Hitel ajánlatok
Ingatlan hirdetés leírása
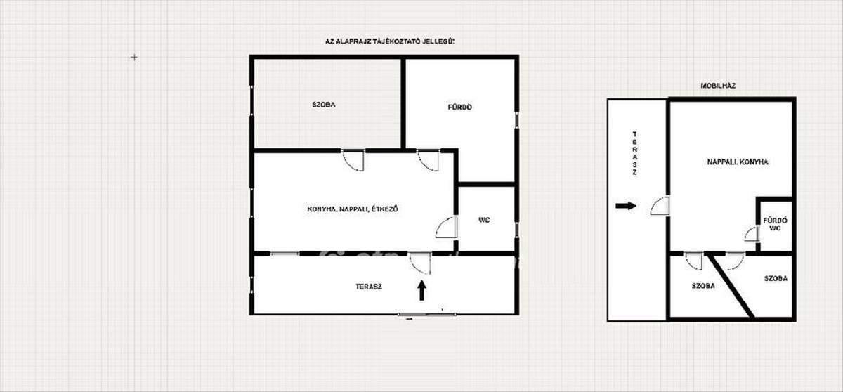
Eladó Ház, Tápiószele
Budapesttől 70 km-re, Pest vármegyében, Tápiószele városa mellett, külterületi családi ház + mobilház nagy földterülettel eladó.
A tégla falazatú 41+30 nm -es ingatlan és a 30 nm -es, könnyűszerkezetes mobilház egy 6783 nm -es telken helyezkedik el.
A házban egy szoba, konyha/étkező, fürdő, wc, egy beépíthető terasz található.
A padlástér beépítése már elkezdődött, ahol igény szerint még két szoba kialakítható.
A mobilházban két szoba, nappali/konyha, fürdő/wc és egy terasz található.
Az otthon melegéről H tarifás klímák gondoskodnak.
Víz, villany és emésztő van.
Az udvaron egy több helyiséges tároló és egy fedett garázs is megtalálható.
Tökéletes választás azoknak, akik kellemes, nyugodt, tanyasi környeztet keresnek, akár mezőgazdálkodásra/állattenyésztésre is.
Vevő ügyfeleinket díjmentes hitel tanácsadással és teljes körű ügyintézéssel segítjük az ingatlan megvásárlásában, a piaci hiteleknél kedvezményesebb konstrukcióval lepjük meg Önt!
Bővebb információért keressen bizalommal. FIX 3% lakáshitelre megvehető
Tetszett ez az eladó Tápiószelei újszerű állapotú 1 egész és 2 fél szobás családi ház? Hívd fel a hirdetőt most, és tudj meg mindent erről az eladó családi házról! Ha gondolod nézelődj tovább az eladó ház Tápiószele oldal hirdetései között. Ennek az eladó háznak az ára 34900000 Ft és mivel az alapterülete 41 négyzetméter, ezért az átlagos négyzetméterára 851220 HUF/m2.
Az eladó házak menüpontban további hirdetések között is böngészhetsz. Ha van kedved, akkor böngészhetsz a Botka József összes hirdetése között, vagy akár a/az OTPip Szolnok Szapáry utca 23 - OTP Ingatlanpont Iroda összes hirdetése között is.

