- >>
- eladó ingatlanok
- >>
- eladó ház
- >>
- eladó ház Tapolca
- >>
Eladó jó állapotú ház - Tapolca
| | |||
| Kedvencnek jelölöm | Elküldöm emailben | Megosztás | Szavazás |
| FIX 3% lakáshitelre megvehető | |||
| 54 900 000 HUF | |||
Ingatlan adatai
- Eladó vagy kiadó:Eladó
- Település:Tapolca
- Kategória:Ház
- Alkategória:Családi ház
- Alapterület:75 m2
- Telekterület:344 m2
- Csere is:Nem
- Hirdető:Cég
- Élő videón megtekinthető:Nem
- Építés éve:1980
- Szobaszám:2
- Állapot:Jó állapotú
- Hány szintes az ingatlan:nincs megadva
- Tetőtér:nincs megadva
- Komfortosság:nincs megadva
- Parkolási lehetőség:nincs megadva
- Fűtés:nincs megadva
- Bútorozottság:nincs megadva
- Fényviszony:nincs megadva
- Tájolás:DNY
- Kilátás:nincs megadva
- Internet:nincs megadva
- Akadálymentesített:nincs megadva
- Energiatanúsítvány:nincs megadva
- Villany:Van
- Víz:Van
- Gáz:Nincs
- Csatorna:Van
- Üzenetküldés
- Hívás


Hitel ajánlat
Ingatlan hirdetés leírása
Kiemelt megbízás irodánk kínálatában !
Fedezze fel ezt a kivé...
Kiemelt megbízás irodánk kínálatában! Fedezze fel ezt a kivételes lehetőséget Tapolca szívében.
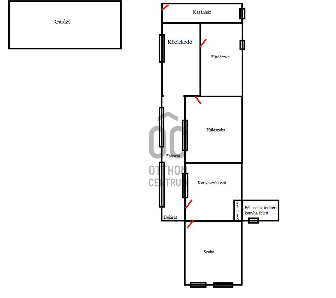
Az ingatlan főbb jellemzői :
- 69 nm hasznos alapterület
- 344 nm telek
- 2 tágas szoba, konyha, étkező, fürdőszoba, wc
- a konyha felett egy félszoba
- fűtése vegyes tüzelésű kazánnal megoldott
- a ház beszigetelése egy éve készült el, illetve a nyílászárók is ki lettek cserélve
- belvárosában helyezkedik el, ideális választás mindenki számára, aki értékeli a központi elhelyezkedést és a kényelmet.
- a garázsban két autó kényelmesen elfér, így a parkolás sosem jelenthet problémát.
Az ingatlan tehermentes, ideális választás családoknak, fiatal pároknak vagy akár befektetőknek, akik a felkapott környék előnyeit szeretnék kihasználni.
A környék kiváló adottságokkal rendelkezik: a közlekedési lehetőségek kiemelkedőek, hiszen az ingatlan könnyen megközelíthető autóval és tömegközlekedéssel egyaránt. a város központja mindössze néhány perc sétára található, ahol számos bolt, étterem és szolgáltatás várja.
A csendes utcák és a barátságos szomszédság garantálják a nyugodt életkörülményeket, miközben a város pezsgő élete is elérhető közelségben van.
Kérdéseivel és érdeklődésével bizalommal fordulhat hozzánk, hiszen célunk, hogy Ön megtalálja álmai otthonát vagy befektetési lehetőségét.
Előre egyeztetett időpontban szívesen megmutatom. FIX 3% lakáshitelre megvehető

