Eladó átlagos állapotú ház - Tarcal
- INGYENES HIRDETÉS FELADÁS
Ingatlan adatai
- Eladó vagy kiadó:Eladó
- Település:Tarcal
- Kategória:Ház
- Alkategória:Családi ház
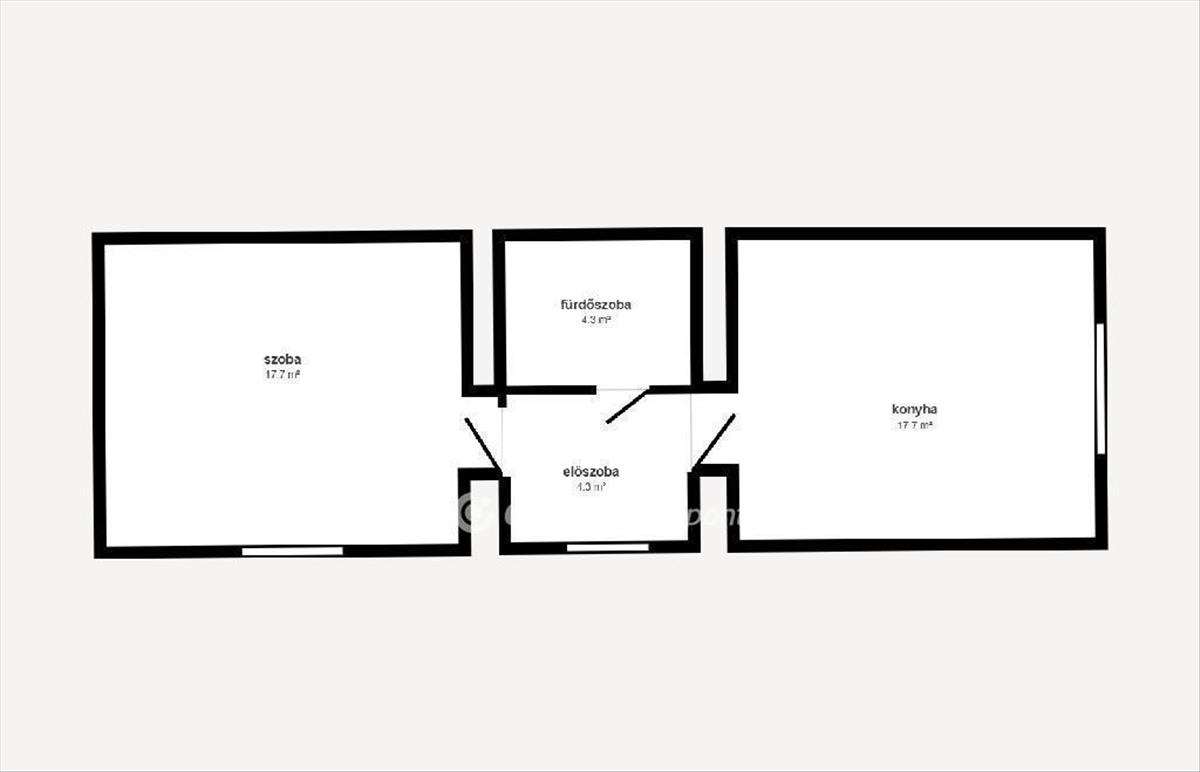
- Alapterület:44 m2
- Telekterület:581 m2
- Csere is:Nem
- Hirdető:Cég
- Élő videón megtekinthető:Nem
- Építés éve:1958
- Szobaszám:1
- Állapot:Átlagos állapotú
- Hány szintes az ingatlan:Földszintes
- Tetőtér:nincs megadva
- Komfortosság:nincs megadva
- Pince:nincs megadva
- Parkolási lehetőség:nincs megadva
- Fűtés:Gáz (konvektor)
- Bútorozottság:nincs megadva
- Fényviszony:Jó
- Tájolás:nincs megadva
- Kilátás:nincs megadva
- Internet:nincs megadva
- Klíma:nincs megadva
- Akadálymentesített:nincs megadva
- Energiatanúsítvány:nincs megadva
- Villany:nincs megadva
- Víz:nincs megadva
- Gáz:nincs megadva
- Csatorna:nincs megadva
- Kapcsolatfelvétel

Oroszné Ferencsák Mária
+36-(30)-709-1435
Mondd meg a hirdetőnek, hogy a megveszLAK-on találtad a hirdetést.
Referencia szám: M309716
Hitel ajánlatok
Ingatlan hirdetés leírása
Eladó Ház, Tarcal, Eladó átlagos állapotú ház - Tarcal
Eladó lakhatásra, valamint családi vállalkozásra is alkalmas ház Tarcal központi utcájában
A 44 nm alapterületű, kőből épült házhoz melléképületek, pince, valamint egy 581 nm -es telek is tartozik. Az ingatlan statikailag jó állapotban van, tető szerkezetét tekintve a gerendákat megerősítették, a léceket pedig kicserélték.
A felújítás során az épületben új műanyag nyílászárók kerültek beépítésre, valamint a fürdőszoba is teljes korszerűsítésen esett át. a meleg víz ellátásról villanybojler gondoskodik, a fűtést pedig gázkonvektorok biztosítják.
A bútorokkal berendezett ingatlan mind idegenforgalmi célra, mind saját pihenésre, illetve háztáji szőlész-borász tevékenységre is alkalmas. a szőlő feldolgozáshoz valamennyi berendezés a rendelkezésre áll egy több 100 literes palackozott készlettel egyetemben, mely komoly érdeklődő esetén a vételár részét képezi.
Az utcában borászatok és idegenforgalmi szálláshelyek találhatók, mint pl. a méltán híres, Andrássy Rezidencia, ahol ötcsillagos szálloda és wellness áll rendelkezésre a kikapcsolódni vágyóknak.
OTP Banki hátterünknek köszönhetően finanszírozási igényekben (pl. Otthon Start Hitelprogram, Babaváró, Falusi csok, CSOK Plusz, Lakáshitel, Személyi kölcsön stb. ), Illetve biztosítások tekintetében is díjmentesen, soron kívüli ügyintézéssel segítem ügyfeleim!
Hívása során hivatkozzon az M309716-os referenciaszámra. FIX 3% lakáshitelre megvehető
Tetszett ez az eladó Tarcali átlagos állapotú 1 szobás családi ház? Hívd fel a hirdetőt most, és tudj meg mindent erről az eladó családi házról! Ha gondolod nézelődj tovább az eladó ház Tarcal oldal hirdetései között. Ennek az eladó háznak az ára 13500000 Ft és mivel az alapterülete 44 négyzetméter, ezért az átlagos négyzetméterára 306818 HUF/m2.
Az eladó házak menüpontban további hirdetések között is böngészhetsz. Ha van kedved, akkor böngészhetsz a Oroszné Ferencsák Mária összes hirdetése között, vagy akár a/az OTPip Miskolc Szemere Bertalan utca 20 - OTP Ingatlanpont Iroda összes hirdetése között is.

