Eladó átlagos állapotú ház - Tata
- INGYENES HIRDETÉS FELADÁS
Ingatlan adatai
- Eladó vagy kiadó:Eladó
- Település:Tata
- Kategória:Ház
- Alkategória:Családi ház
- Alapterület:180 m2
- Telekterület:873 m2
- Csere is:Nem
- Hirdető:Cég
- Élő videón megtekinthető:Nem
- Építés éve:1993
- Szobaszám:3 + 4 fél
- Állapot:Átlagos állapotú
- Hány szintes az ingatlan:nincs megadva
- Tetőtér:nincs megadva
- Komfortosság:nincs megadva
- Pince:nincs megadva
- Parkolási lehetőség:nincs megadva
- Fűtés:nincs megadva
- Bútorozottság:Bútorozott
- Fényviszony:nincs megadva
- Tájolás:nincs megadva
- Kilátás:nincs megadva
- Internet:nincs megadva
- Klíma:Van
- Akadálymentesített:nincs megadva
- Energiatanúsítvány:nincs megadva
- Villany:nincs megadva
- Víz:nincs megadva
- Gáz:nincs megadva
- Csatorna:nincs megadva
- Kapcsolatfelvétel

Menczer Klára
+36309033193
Mondd meg a hirdetőnek, hogy a megveszLAK-on találtad a hirdetést.
Hitel ajánlatok
Ingatlan hirdetés leírása
Tatán, egy csendes, nyugodt környéken kínálunk megvételre egy ...
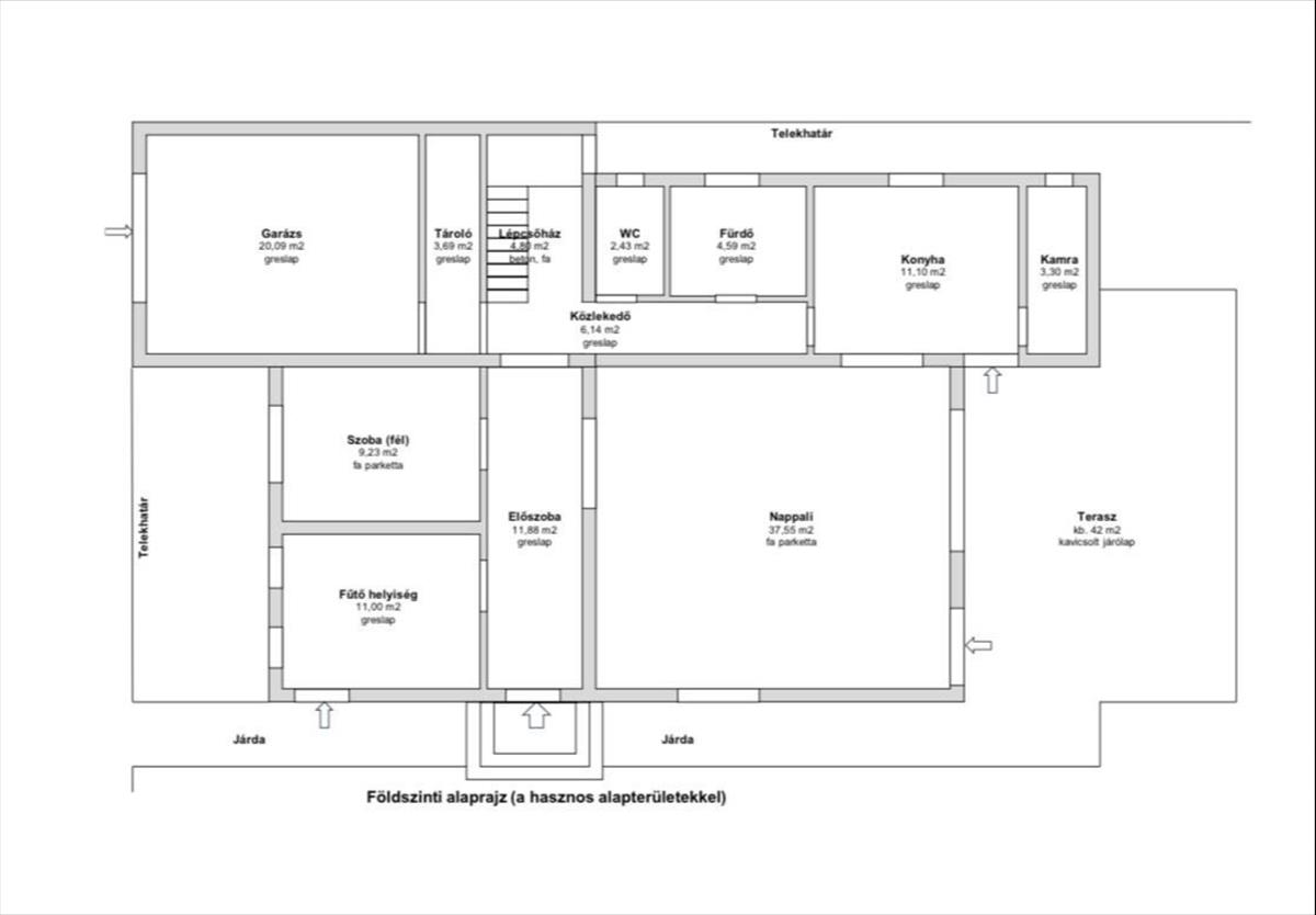
Tatán, egy csendes, nyugodt környéken kínálunk megvételre egy 180 m²-es, két szintes, Habisolból épült családi házat, amely egy 873 m²-es, gondozott, füvesített telken helyezkedik el. Az ingatlanhoz tartozik egy 20 m²-es garázs is.
A ház 1993-ban épült, majd 2015-ben nagyobb felújításon esett át: megújult a külső vakolat, a tetőszerkezet fóliázást és hőszigetelést kapott, részben a tetőlécek is kicserélésre kerültek, valamint a terasz új burkolatot kapott. a cserépfedésű családi ház 6 cm-es külső szigeteléssel rendelkezik, így energiatakarékosan fenntartható.
A fűtésről Viessmann gázkazán, hangulatos cserépkályha, valamint két hűtő-fűtő klíma gondoskodik.
A korszerű biztonsági és kényelmi felszereltség része a riasztórendszer, az automata öntözőrendszer és a nappali–éjszakai 3×25a áramellátás.
A földszinten tágas nappali, konyha, egy kisebb szoba, fürdőszoba, külön wc, fűtőhelyiség és tároló kapott helyet. Az emeleten négy hálószoba, egy polcozott gardróbszoba, valamint fürdő és wc található. a burkolatok változatosak (parketta, járólap, szalagparketta), a nyílászárók részben műanyagból, részben fából készültek, kétrétegű üvegezéssel, részben redőnnyel és szúnyoghálóval felszerelve. a beltéri ajtók mind fából készültek, az emeleten üvegezett faajtók teszik világosabbá a tereket.
A ház vételárába beletartozik a beépített konyha, a garázs polcrendszere és a gardróbszoba teljes berendezése.
A kertben cserépfedéses fedett terasz, kisház és tároló is helyet kapott, valamint egy engedélyezett, öt gyűrűből álló ásott kút is megtalálható, amely praktikus megoldást kínál a locsoláshoz és a kert gondozásához, így minden adott egy kényelmes, családbarát otthonhoz.
Ideális választás többgyermekes családok számára, akik tágas, jól elosztott és azonnal költözhető házat keresnek Tatán.
Irodánkban teljeskörű pénzügyi tanácsadással, kedvezményes ügyvédi háttérrel, jogi tanácsadással állunk rendelkezésére! FIX 3% lakáshitelre megvehető
Tetszett ez az eladó Tatai átlagos állapotú 3 egész és 4 fél szobás családi ház? Hívd fel a hirdetőt most, és tudj meg mindent erről az eladó családi házról! Ha gondolod nézelődj tovább az eladó ház Tata oldal hirdetései között. Ennek az eladó háznak az ára 147000000 Ft és mivel az alapterülete 180 négyzetméter, ezért az átlagos négyzetméterára 816667 HUF/m2.
Az eladó házak menüpontban további hirdetések között is böngészhetsz. Ha van kedved, akkor böngészhetsz a Menczer Klára összes hirdetése között.

