- >>
- eladó ingatlanok
- >>
- eladó ház
- >>
- eladó ház Tatabánya
- >>
Eladó jó állapotú ház - Tatabánya
| | |||
| Kedvencnek jelölöm | Elküldöm emailben | Megosztás | Szavazás |
| FIX 3% lakáshitelre megvehető | |||
| 63 183 000 HUF | |||
Ingatlan adatai
- Eladó vagy kiadó:Eladó
- Település:Tatabánya
- Kategória:Ház
- Alkategória:Családi ház
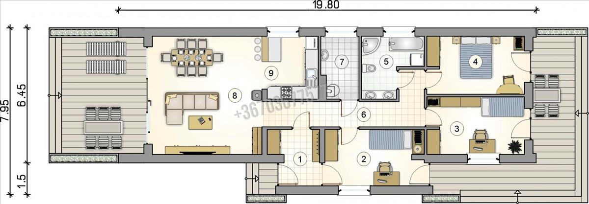
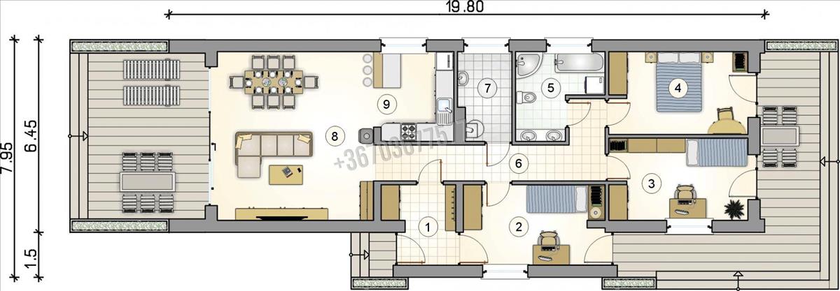
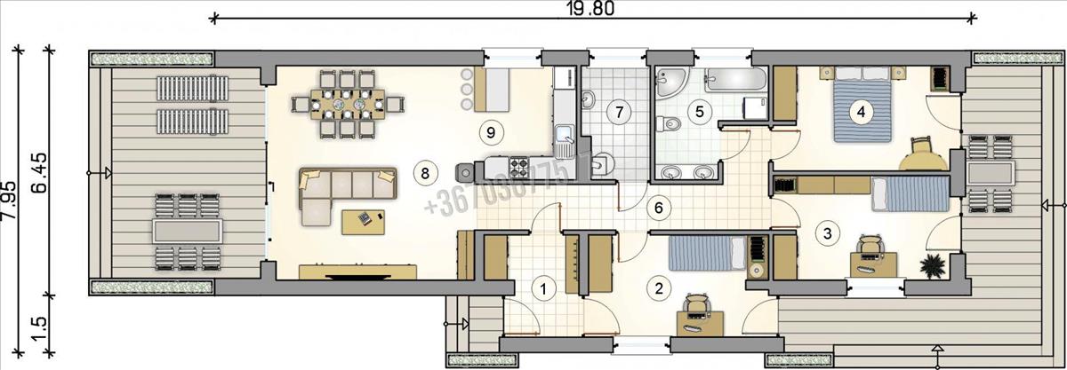
- Alapterület:145 m2
- Telekterület:500 m2
- Csere is:Nem
- Hirdető:Cég
- Élő videón megtekinthető:Nem
- Szobaszám:4
- Állapot:Jó állapotú
- Hány szintes az ingatlan:nincs megadva
- Tetőtér:nincs megadva
- Komfortosság:Komfortos
- Pince:Nincs
- Parkolási lehetőség:Nincs
- Fűtés:Gáz (cirko)
- Bútorozottság:nincs megadva
- Fényviszony:nincs megadva
- Tájolás:nincs megadva
- Kilátás:Utcai
- Internet:nincs megadva
- Akadálymentesített:nincs megadva
- Energiatanúsítvány:nincs megadva
- Villany:Van
- Víz:Van
- Gáz:Van
- Csatorna:Van
- Üzenetküldés
- Hívás

Hitel ajánlat
Ingatlan hirdetés leírása
Eladó Családi ház, Tatabánya, 145nm, 63183000 Ft
Házat építene kevesebb, mint egy tatabányai lakás NÉGYZETMÉTERÁRÁBÓL?-SZERKEZETKÉSZ, félkész, kulcsrakész? Ön dönti EL!
-SZERETNÉ, ha gyorsan beköltözhetne családjával? Mondjuk 6 hónap MÚLVA?
-SZERETNÉ, ha minez skandinávia, közép-európa és a mediterrán országokban már rég bevál építési technologiával épülne?
-RENDELKEZIK saját telekkel, de nem tudja, hogy iduljon el az ÉPÍTKEZÉSSEL?
A Dot-Ing Ingatlaniroda megvételre kínálja az alábbi projektjét, ami modern kivitelezésű, könnyűszerkezetes technologiával épült, bruttó 145 m2-es (nettó 102 m2), amerikai-konyhás nappali + 3 szobás családi ház.
A meghirdetett vételár nem tartalmazza a telek ÁRÁT!
Ha nem rendelkezik saját telekkel, akkor segítünk felkutatni!
Meghirdetett ingatlanunk megépítésében, több évtizedes kivitelezési múlttal és az országban számos referenciával rendelkező cég vállal minőségi garanciát.
Az általunk kínált ház építési módját Ön választhatja meg, legyen az nagypaneles, fa vagy fémszerkezetű, szerkezetkész, félkész vagy kulcsrakész állapot.
A nagy precizitással készült házak elemei milliméter pontossággal illeszkednek egymáshoz, ami a gyártás során alkalmazott lézertechnológiának köszönhető.
Energetikai és építéstechnikai szempontból egész Európában elismert engedéllyel rendelkezik, így megfelel minden EU-s elvárási követelménynek.
Egy személyes konzultáció alkalmával, a könnyűszerkezetes kivitelezésben 30 éves múlttal rendelkező szakemberek nyújtanak Önnek teljes felvilágosítást az építési technológiákról, és segítenek az Önnek legtökéletesebb építési mód kiválasztásában és az építési folyamat megtervezésében, majd kivitelezésében.
Az általunk kínált családi ház közkedvelt típus, de Önnek lehetősége van további típus, méret, és elrendezés kiválasztásában is, valamint ha már rendelkezik saját telekkel, akkor kell sem kell tovább keresnie, saját telekre is vállaljuk a kivitelezést.
Meghirdetett ingatlanunk kulcsrakész kivitelezése bruttó 435. 750. - Ft/ nm áron elérhető (belterületi lakóingatlan esetében).
A kivitelezési szerződés megkötését követően, átlagosan 6 hónap telik el a kulcsrakész átadásig.
Nézzük milyen előnyei vannak a könnyűszerkezetes technológiának:
1. Gyors építési idő: a könnyűszerkezetes házak építése sokkal gyorsabb, mint a hagyományos tégla- vagy betonházaké. Az előre gyártott elemek és a moduláris építési technológia lehetővé teszi, hogy egy ház akár néhány hónap alatt elkészüljön.
2. Energiahatékonyság: Ezek a házak kiváló hőszigeteléssel rendelkeznek, ami alacsonyabb fűtési és hűtési költségeket eredményez. Az energiahatékony anyagok és építési technikák használata csökkenti az energiafelhasználást és a szén-dioxid-kibocsátást.
3. Költséghatékonyság: a könnyűszerkezetes házak építési költségei gyakran alacsonyabbak, mint a hagyományos építési módszereké. Az alacsonyabb munkaerőköltség és az előre gyártott elemek használata hozzájárul a költségek csökkentéséhez.
4. Rugalmas tervezés: Az építészeti tervezés során nagyobb szabadságot biztosítanak, mivel a könnyűszerkezetes elemek könnyen alakíthatók és testreszabhatók. Ez lehetővé teszi az egyedi és kreatív tervek megvalósítását.
5. Környezetbarát megoldás: a könnyűszerkezetes építési módszerek általában kevesebb hulladékot termelnek, és a felhasznált anyagok gyakran újrahasznosíthatók. Az energiahatékonyság is hozzájárul a környezetvédelmi előnyökhöz.
6. Kiváló földrengés- és tűzállóság: a könnyűszerkezetes házak rugalmasak és jobban ellenállnak a földrengéseknek, mivel az épületszerkezet elnyeli és eloszlatja a szeizmikus energiát. Továbbá, a tűzálló anyagok és építési technikák használata növeli a biztonságot.
7. Jobb helykihasználás: a vékonyabb falak és szerkezeti elemek miatt a könnyűszerkezetes házak nagyobb hasznos alapterületet biztosítanak ugyanazon alaprajzi méretek mellett, mint a hagyományos épületek.
8. Egyszerű bővíthetőség és felújítás: a moduláris felépítés miatt a könnyűszerkezetes házak könnyen bővíthetők vagy átalakíthatók, ami hosszú távon rugalmasságot biztosít a tulajdonosok számára.
Ezek az előnyök hozzájárulnak ahhoz, hogy a könnyűszerkezetes házak vonzó alternatívát jelentsenek a hagyományos építési módszerekkel szemben, különösen azok számára, akik gyorsan, energiahatékonyan és költséghatékonyan szeretnének otthont építeni.
Ha nem rendelkezik a teljes vételárral, igényelhet CSOK támogatást és építési hitelt is.
A vásárláshoz rendelkezni kell a telekkel vagy annak vételárával, valamint a meghirdetett bruttó 63. 183. 000. - Ft vételárú, kulcsrakész családi ház 30 %-ával, míg a hátralékos vételárat 5-6 részletben elosztva, szakaszosan, készültségi fognak megfelelően kell megfizetni.
Kulcsrakész állapot műszaki tartalma:
Fűtés, fűtőberendezés:
- Kombi-Cirkó típusú zárt égésterű, földgázkazán, a fűtés és melegvíz ellátás biztosítására. (60 L melegvíztároló beépítése felárral)
- Fehér színű lapradiátorok termosztátos hőfokszabályzóval a számított energia- szükséglet szerint.
Padlófűtés, klímatechnika és szellőzéstechnika kiépítése (felár ellenében).
Víz:
- Víz- és szennyvíz csatorna szerelése szükség szerint 5 db kiállás biztosítása.
Gáz:
- Mérőórától (ha a házban van) a gázkazánig kerül kiépítésre.
(Külső közművek – víz, gáz, csatorna – kiépítése és rácsatlakozás felárral külön megállapodás szerint. )
Aljzatbeton:
- aljzatbeton
- 1 réteg technológiai szigetelés
- csővezetékek (az előzetes gépészeti tervek alapján)
- 40 mm lépésálló hőszigetelés
Burkolási munkák, burkoló anyagok beépítése:
- Az építő által biztosított burkolóanyagokkal alap ár 2000. - Ft/nm
- Fürdő / wc: Falcsempézés – bordűr nélkül- ajtómagasságig
- Járólapok hálóba rakva
- Konyha: -Csempe /60 cm-es szélességben/
- Járólapok hálóba rakva
- Nappali, szobák: -Szőnyegpadló vagy laminált parketta
- Kazánház: -Padló burkolat
- Bordűrök, diagonál burkolás, feláras.
Vizesblokki berendezés Fürdőszoba/WC:
-1 db beépített, lemez (170 cm) estap típusú fürdőkád, KLUDI-Standard márkájú, krómozott zuhanyzó és kifolyó csapteleppel, vagy
-1 db mosdó, 60 cm, egykaros kludi- Standard csapteleppel
-1 db álló wc kagyló öblítőtartállyal
Konyha: Sarokszelepek a hideg- és melegvízhez, valamint egy lefolyó
Festő munkák:
- Külső lazúrozás.
- Belső glettelés és kétszeri diszperziós festés fehér színben.
Belső ajtók:
- Fa küszöb nélküli belső ajtók kerülnek beépítésre, (5 db) különböző választható kivitelben, beépítéssel maximum 15. 000 Ft-os egységáron. (Egyéb ajtók felár ellenében)
Ha Ön is szeretné új Otthonát kedvező áron, gyorsan, korrekt feltételekkel, referenciákkal igazolt, minőségi szabványoknak feltétel nélkül megfelelő, megbízható kivitelezőn keresztül megépíteni…
Akkor további információért keressen bizalommal.
Érdeklődni: Rácz Gyula 70 / 367 7577
Ha nem rendelkezik a vásárláshoz szükséges teljes vételárral, irodánk ingyenes és teljes körű hitel és állami támogatások ügyintézését vállalja, bankfüggetlen, nagy tapasztalattal rendelkező pénzügyi szakembereink segítségével. FIX 3% lakáshitelre megvehető

