Eladó újszerű állapotú ház - Tatabánya
- INGYENES HIRDETÉS FELADÁS
Ingatlan adatai
- Eladó vagy kiadó:Eladó
- Település:Tatabánya
- Kategória:Ház
- Alkategória:Családi ház
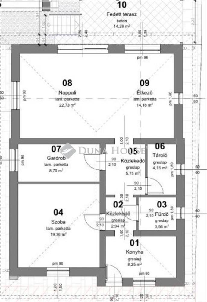
- Alapterület:104 m2
- Telekterület:576 m2
- Csere is:Nem
- Hirdető:Cég
- Élő videón megtekinthető:Nem
- Építés éve:1960
- Szobaszám:3
- Állapot:Újszerű, kitűnő
- Hány szintes az ingatlan:Földszintes
- Tetőtér:nincs megadva
- Komfortosság:nincs megadva
- Pince:nincs megadva
- Parkolási lehetőség:nincs megadva
- Fűtés:Elektromos
- Bútorozottság:nincs megadva
- Fényviszony:Napfényes
- Tájolás:ÉK
- Kilátás:nincs megadva
- Internet:nincs megadva
- Klíma:nincs megadva
- Akadálymentesített:nincs megadva
- Energiatanúsítvány:nincs megadva
- Villany:nincs megadva
- Víz:nincs megadva
- Gáz:nincs megadva
- Csatorna:nincs megadva
- Kapcsolatfelvétel

Sári Gyuláné
+36-(20)-282-7872
Mondd meg a hirdetőnek, hogy a megveszLAK-on találtad a hirdetést.
Referencia szám: HZ096304
Hitel ajánlatok
Ingatlan hirdetés leírása
Eladó ház, Tatabánya
Tatabánya Kertvárosban, csendes mellékutcában, teljesen felújított családi ház eladó!
Az eladó ház jellemzői:
- 567 m2 gondozott, parkosított telek
- 90 m2 hasznos alapterület + 15 m2 fedett terasz
- 2020-ban teljeskörű felújítás és bővítés
- új tetőszerkezet, cserepeslemez héjazattal
- prémium homlokzati nyílászárók ( 2 légkamrás)
- 32 Amper áramerőssségű, új villamos hálózat
- vízvezeték hálózat teljes egészében cserélve
- fűtés norvég panellel
- Nikecell homlokzati szigetelés
- Prémium kategóriás burkolatok és szaniterek
- kertben fedett jacuzzi
Ez a ház egy igazi ritkaság, amely a minőség érzését sugározza magából! Amennyiben felkeltettem érdeklődését, hívjon bizalommal! HZ096304
I. Ár: 106990000 Ft
Érd. Sári Gyuláné +36(20)2827872
Referencia szám: hz096304 FIX 3% lakáshitelre megvehető
Tetszett ez az eladó Tatabányai újszerű állapotú 3 szobás családi ház? Hívd fel a hirdetőt most, és tudj meg mindent erről az eladó családi házról! Ha gondolod nézelődj tovább az eladó ház Tatabánya oldal hirdetései között. Ennek az eladó háznak az ára 106990000 Ft és mivel az alapterülete 104 négyzetméter, ezért az átlagos négyzetméterára 1028750 HUF/m2.
Az eladó házak menüpontban további hirdetések között is böngészhetsz. Ha van kedved, akkor böngészhetsz a Sári Gyuláné összes hirdetése között, vagy akár a/az Duna House Bicske összes hirdetése között is.

