Eladó átlagos állapotú ház - Tiszaeszlár
- INGYENES HIRDETÉS FELADÁS
Ingatlan adatai
- Eladó vagy kiadó:Eladó
- Település:Tiszaeszlár
- Kategória:Ház
- Alkategória:Családi ház
- Alapterület:159 m2
- Telekterület:867 m2
- Csere is:Nem
- Hirdető:Cég
- Élő videón megtekinthető:Nem
- Építés éve:1980
- Szobaszám:4
- Állapot:Átlagos állapotú
- Hány szintes az ingatlan:2 szintes
- Tetőtér:nincs megadva
- Komfortosság:nincs megadva
- Pince:nincs megadva
- Parkolási lehetőség:Utcán
- Fűtés:nincs megadva
- Bútorozottság:nincs megadva
- Fényviszony:nincs megadva
- Tájolás:nincs megadva
- Kilátás:nincs megadva
- Internet:nincs megadva
- Klíma:nincs megadva
- Akadálymentesített:nincs megadva
- Energiatanúsítvány:nincs megadva
- Villany:nincs megadva
- Víz:nincs megadva
- Gáz:nincs megadva
- Csatorna:nincs megadva
- Kapcsolatfelvétel

Konc Richárd
+36-70-597-3523
Mondd meg a hirdetőnek, hogy a megveszLAK-on találtad a hirdetést.
Hitel ajánlatok
Ingatlan hirdetés leírása
Házat venne Tiszaeszlár nyugodt, csendes környékén? Akkor ez ...
Házat venne Tiszaeszlár nyugodt, csendes környékén?
Akkor ez az kiváló lehetőség!
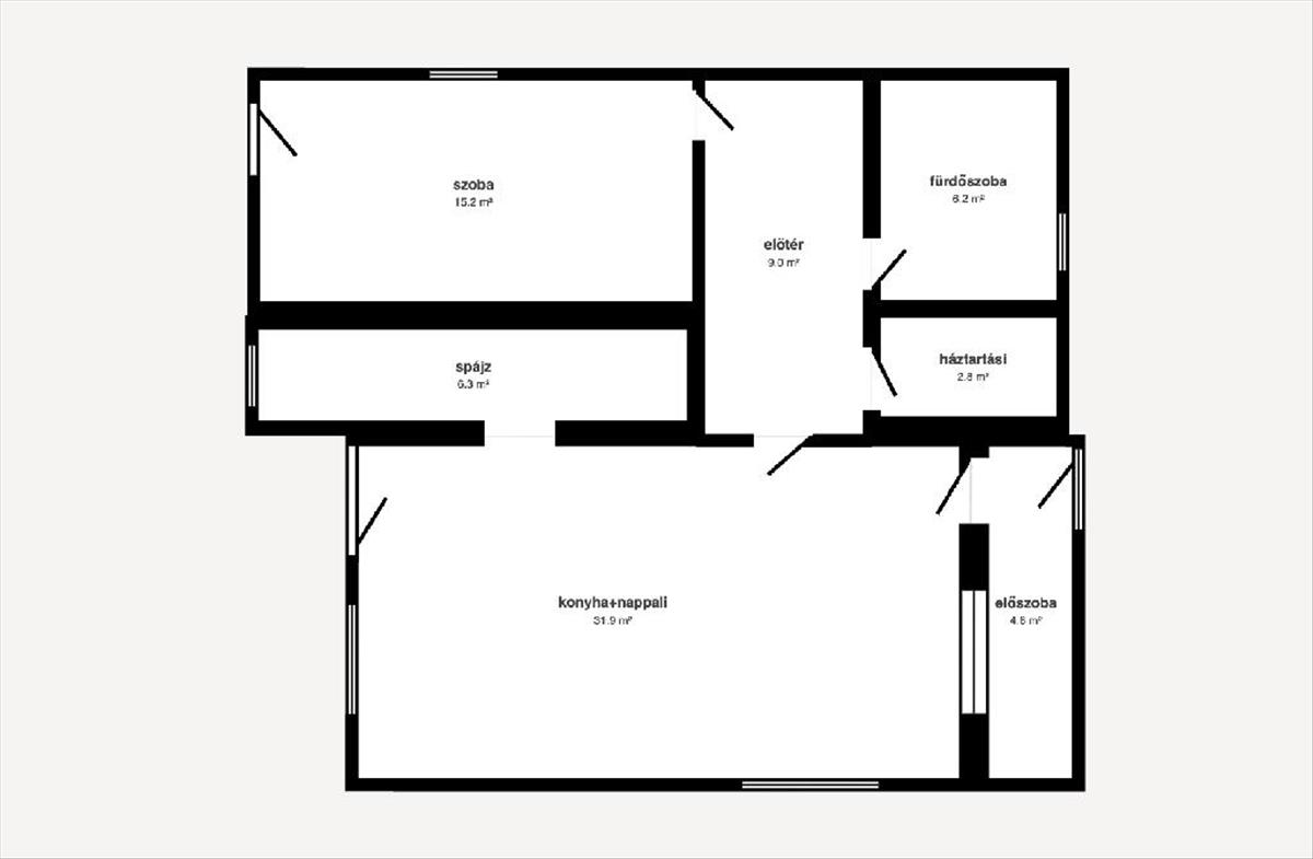
Eladó 867 nm -es telken egy kétszintes, 159 nm hasznos alapterületű, vegyes falazatú, cserép tetővel ellátott családi házat Tiszaeszlár csendes, nyugodt részén. Az ingatlan alsó szintjén szoba, fürdőszoba, előtér, spájz, konyha nappalival és előszoba került kialakításra, míg az emeleten három szoba, külön wc, tároló, előtér és erkély található. Az emeleti szobák és a közlekedő padlószőnyeggel, a további helyiségek járólappal burkoltak. a fűtésről kandalló, gázfűtés és klíma gondoskodik, így több alternatíva is rendelkezésre áll a komfortos hőérzet biztosítására. a házhoz kisebb méretű, rendezett telek tartozik néhány gyümölcsfával és egy melléképülettel, amely kiválóan alkalmas tárolásra, de igény szerint műhellyé vagy garázzsá is alakítható. a közelben megtalálható óvoda, iskola és gyógyszertár, így a mindennapi élethez szükséges intézmények könnyen elérhetők. Az ingatlan bútorozottan is eladó, amely megegyezés tárgyát képezi, és akár 60 napon belül birtokba vehető.
OTP Banki hátterünknek köszönhetően finanszírozási igényekben (pl. Otthon Start Hitelprogram, Babaváró, Falusi csok, CSOK Plusz, Lakáshitel, Személyi kölcsön stb. ), Illetve biztosítások tekintetében is díjmentesen, soron kívüli ügyintézéssel segítem ügyfeleim! Referenciaszám:M323038
https://my. Matterport. Com/show/? M=ndVRDuJVKUr&mls=1 FIX 3% lakáshitelre megvehető
Tetszett ez az eladó Tiszaeszlári átlagos állapotú 4 szobás családi ház? Hívd fel a hirdetőt most, és tudj meg mindent erről az eladó családi házról! Ha gondolod nézelődj tovább az eladó ház Tiszaeszlár oldal hirdetései között. Ennek az eladó háznak az ára 30900000 Ft és mivel az alapterülete 159 négyzetméter, ezért az átlagos négyzetméterára 194340 HUF/m2.
Az eladó házak menüpontban további hirdetések között is böngészhetsz. Ha van kedved, akkor böngészhetsz a Konc Richárd összes hirdetése között, vagy akár a/az Nyíregyháza Bocskai utca 18-20 - OTP Ingatlanpont Iroda összes hirdetése között is.

