Eladó újszerű állapotú ház - Tiszaújváros
- INGYENES HIRDETÉS FELADÁS
Ingatlan adatai
- Eladó vagy kiadó:Eladó
- Település:Tiszaújváros
- Kategória:Ház
- Alkategória:Családi ház
- Alapterület:100 m2
- Telekterület:1646 m2
- Csere is:Nem
- Hirdető:Cég
- Élő videón megtekinthető:Nem
- Építés éve:1970
- Szobaszám:3
- Állapot:Újszerű, kitűnő
- Hány szintes az ingatlan:Földszintes
- Tetőtér:nincs megadva
- Komfortosság:Összkomfortos
- Pince:nincs megadva
- Parkolási lehetőség:Udvaron
- Fűtés:Kandalló
- Bútorozottság:nincs megadva
- Fényviszony:nincs megadva
- Tájolás:nincs megadva
- Kilátás:nincs megadva
- Internet:nincs megadva
- Klíma:nincs megadva
- Akadálymentesített:nincs megadva
- Energiatanúsítvány:nincs megadva
- Villany:nincs megadva
- Víz:nincs megadva
- Gáz:nincs megadva
- Csatorna:nincs megadva
- Kapcsolatfelvétel

Haluska Szilveszter
+36-(70)-732-7461
Mondd meg a hirdetőnek, hogy a megveszLAK-on találtad a hirdetést.
Hitel ajánlatok
Ingatlan hirdetés leírása
Eladó családi ház Tiszaújváros
Tiszaújváros csendes, biztonságos részén, Tiszaszederkényben kínálunk eladásra egy felújítandó, 3 szobás családi házat, hatalmas 1646 nm -es telken.
A ház szerkezete stabil, műanyag nyílászárókkal és alumínium elektromos hálózattal rendelkezik, fűtése kandallóval megoldott. a hozzá tartozó, külön bejáratú 50 nm -es melléképület kiváló lehetőség műhely, garázs vagy akár vendégház kialakítására.
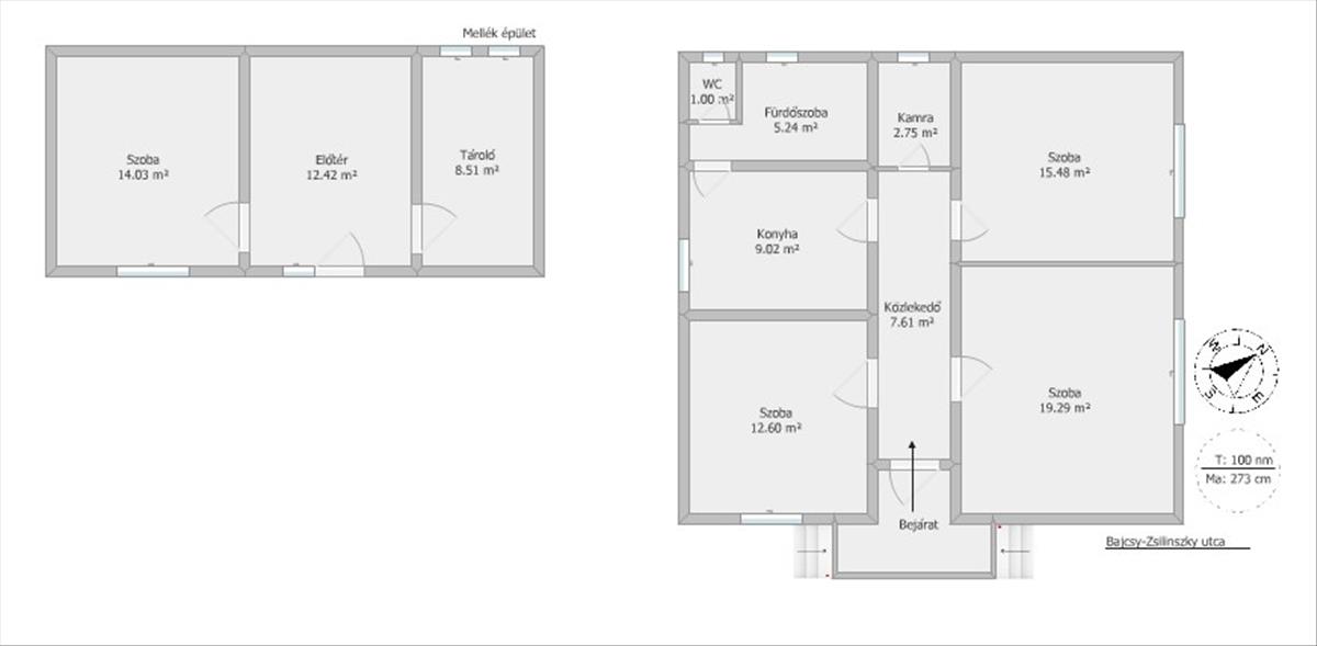
Helyiséglista:
● 3 szoba
● konyha
● fürdőszoba
● közlekedő
● kamra
Extra:
fúrt kút a kert gondozásához vagy öntözéshez.
A környék rendkívül biztonságos, a közlekedési kapcsolatok kiválóak, így akár Miskolc vagy a környező ipari parkok is gyorsan elérhetők.
Régi ár: 35. 000. 000 Ft.
Ha szeretne többet megtudni erről az ingatlanról, vagy személyesen szeretné megtekinteni, kérjük, vegye fel velünk a kapcsolatot még ma!
Hitelügyintézésben segítünk!
További információkért keressen minket a megadott telefonszámon vagy E-mail címen.
Várjuk érdeklődését! FIX 3% lakáshitelre megvehető
Tetszett ez az eladó Tiszaújvárosi újszerű állapotú 3 szobás családi ház? Hívd fel a hirdetőt most, és tudj meg mindent erről az eladó családi házról! Ha gondolod nézelődj tovább az eladó ház Tiszaújváros oldal hirdetései között. Ennek az eladó háznak az ára 33900000 Ft és mivel az alapterülete 100 négyzetméter, ezért az átlagos négyzetméterára 339000 HUF/m2.
Az eladó házak menüpontban további hirdetések között is böngészhetsz. Ha van kedved, akkor böngészhetsz a Haluska Szilveszter összes hirdetése között, vagy akár a/az TopLine Ingatlan összes hirdetése között is.

