Eladó felújítandó ház Tokaj
| Kedvencbe | Megosztás | Árfigyelő |
| FIX 3% lakáshitelre megvehető | ||
| 84 900 000 HUF | ||
Ingatlan adatai
- Eladó vagy kiadó:Eladó
- Település:Tokaj
- Kategória:Ház
- Alkategória:Családi ház
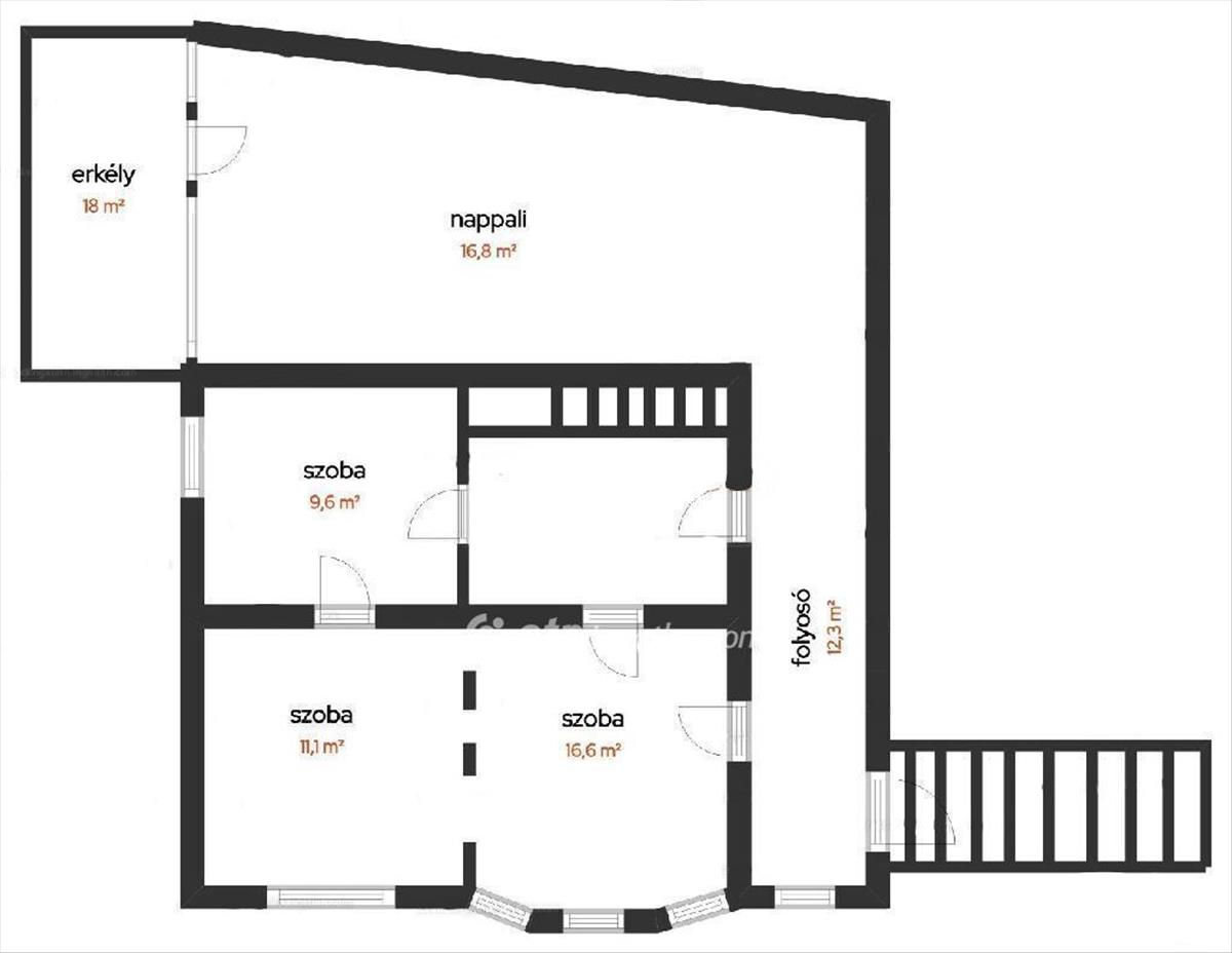
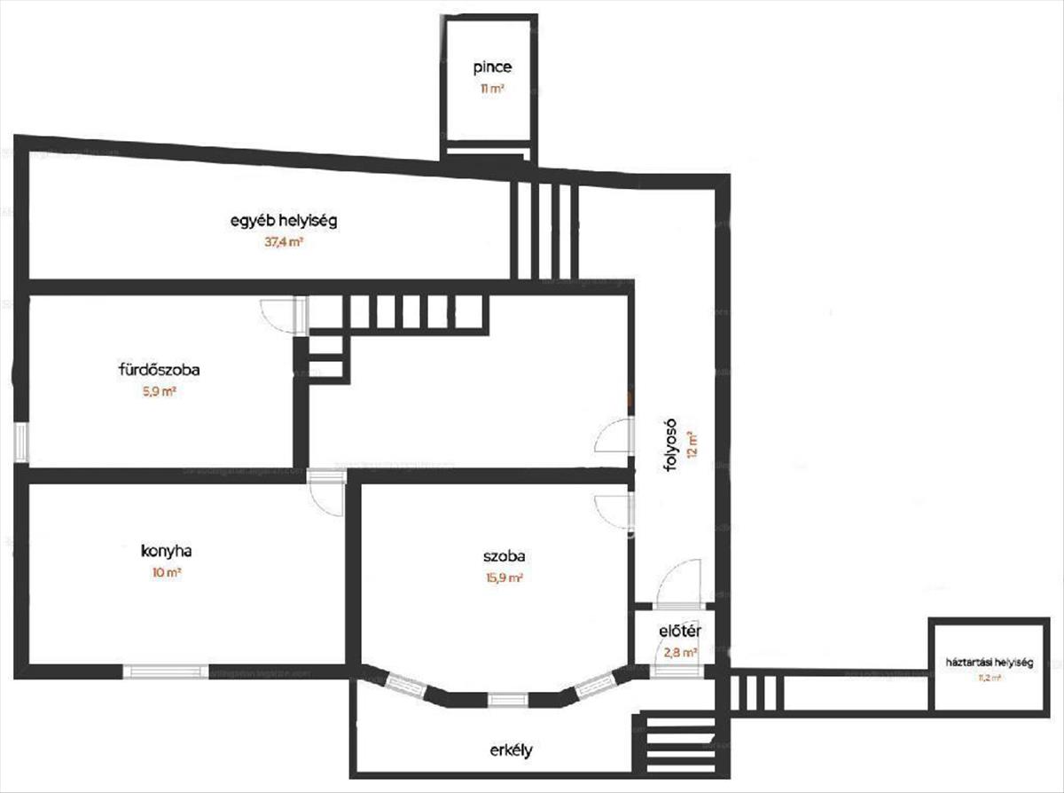
- Alapterület:410 m2
- Telekterület:1048 m2
- Csere is:Nem
- Hirdető:Cég
- Élő videón megtekinthető:Nem
- Szobaszám:5
- Állapot:Felújítandó
- Hány szintes az ingatlan:3 szintes
- Tetőtér:nincs megadva
- Komfortosság:nincs megadva
- Parkolási lehetőség:Udvaron
- Fűtés:Egyéb
- Bútorozottság:nincs megadva
- Fényviszony:Napfényes
- Tájolás:nincs megadva
- Kilátás:nincs megadva
- Internet:nincs megadva
- Akadálymentesített:nincs megadva
- Energiatanúsítvány:nincs megadva
- Villany:nincs megadva
- Víz:nincs megadva
- Gáz:nincs megadva
- Csatorna:nincs megadva
- Üzenetküldés
- Hívás

Referencia szám: M317608

Hitel ajánlat
Ingatlan hirdetés leírása
Eladó Ház, Tokaj, Eladó felújítandó ház - Tokaj
Exkluzív eladó ingatlan Tokaj szívében: történelmi kúria páratlan POTENCIÁLLALTokaj egyik legszebb, zsákutcában fekvő, intim környezetében, a Temető közben kínáljuk eladásra ezt az 1800-as években épült, kiemelkedő adottságokkal rendelkező ingatlant. Ez az otthon nem csupán egy ház, hanem egy darab Tokaj történelméből, amelyben rendkívüli lehetőségek rejlenek.
Az Ingatlan Jellemzői és Adottságai:
Méret és Elrendezés: Az ingatlan 310 négyzetméter alapterületű, mely 3 szinten terül el. Jelenleg 5 nagyméretű szoba és 2 fürdőszoba áll rendelkezésre, hatalmas tető terasszal.
Telek és Környezet: Az 1000 négyzetméteres telket egy egyedülálló, történelmi jellegű várfal övezi. Elhelyezkedése kivételes: zsákutcában található, garantálva a csendet és a nyugalmat, átmenő forgalom és szomszédság nélkül.
Páratlan Kilátás: a 100 négyzetméteres, hatalmas tetőteraszról és a ház számos pontjáról páratlan, 360 fokos panoráma tárul elénk. a Tokaji-hegy fenséges vonulataira, a Bodrog folyóra és a város történelmi látképére egyaránt nyílik kilátás. Ez a terasz önmagában egy életérzés.
A Borvidék Szellemisége: Az ingatlanhoz két eredeti borospince tartozik, melyek ideálisak a tokaji borok szakszerű tárolására, vagy borászati/vendéglátóipari célú hasznosításra.
Parkolás: a telek és a bejárat mellett jelentős méretű parkoló áll rendelkezésre, ami elengedhetetlen a nagyobb vendéglátóipari vagy rendezvényhelyszíni vállalkozások számára.
Befektetési és Hasznosítási Potenciál:
Az ingatlan felújítandó állapotban van, ami lehetőséget ad az új tulajdonosnak, hogy saját elképzelései szerint, a modern kor igényeire szabva újítsa fel, miközben megőrzi a ház történelmi báját.
Exkluzív Családi Otthon: Tökéletes választás azok számára, akik tágas terekre, nyugalomra és inspiráló környezetre vágynak, és ehhez egy nem mindennapi családi otthonra vágynak.
Luxus Kereskedelmi Ingatlan: Adottságai (pincék, parkoló, tetőterasz, panoráma, zsákutca) révén ideális alapja egy magas színvonalú boutique hotelnek, vendégháznak, exkluzív borháznak vagy rendezvényhelyszínnek.
Ilyen méretű, történelmi és panorámás ingatlan a Tokaji borvidéken ritkán kerül a piacra. Ne hagyja ki ezt a rendkívüli befektetési lehetőséget.
Az ingatlan jelen pillanatban három külön helyrajzi számon van de egy tulajdonos.
Hívjon még ma a megtekintés egyeztetéséhez!
További kérdéseire készséggel válaszolok akár hétvégén is! Kedvezményes kamatozású lakásvásárlási és felújítási hitelek valamint CSOK és Babaváró ügyintézés az OTP hátterével irodánkban. FIX 3% lakáshitelre megvehető

