- >>
- eladó ingatlanok
- >>
- eladó ház
- >>
- eladó ház Tordas
- >>
Eladó jó állapotú ház - Tordas
| | |||
| Kedvencnek jelölöm | Elküldöm emailben | Megosztás | Szavazás |
| Kedvezményes lakáshitel ajánlatok | |||
| 170 000 000 HUF | |||
Ingatlan adatai
- Eladó vagy kiadó:Eladó
- Település:Tordas
- Kategória:Ház
- Alkategória:Családi ház
- Alapterület:223 m2
- Telekterület:1000 m2
- Csere is:Nem
- Hirdető:Cég
- Élő videón megtekinthető:Nem
- Építés éve:2003
- Szobaszám:5 + 2 fél
- Állapot:Jó állapotú
- Hány szintes az ingatlan:2 szintes
- Tetőtér:nincs megadva
- Komfortosság:nincs megadva
- Parkolási lehetőség:Garázsban
- Fűtés:Gáz (cirko)
- Bútorozottság:nincs megadva
- Fényviszony:nincs megadva
- Tájolás:nincs megadva
- Kilátás:nincs megadva
- Internet:nincs megadva
- Akadálymentesített:nincs megadva
- Energiatanúsítvány:nincs megadva
- Villany:Van
- Víz:Van
- Gáz:Van
- Csatorna:Van
- Üzenetküldés
- Hívás


Hitel ajánlat
Ingatlan hirdetés leírása
VIDEÓ ELÉRHETŐ!
TORDAS csendes, erdővel határolt részén ELADÓ...
Videó ELÉRHETŐ! TORDAS csendes, erdővel határolt részén eladó egy külön bejárttal rendelkező 2 lakásos családiház. Az ingatlan kiváló elrendezéssel és műszaki adottságokkal bír.
TELEK:
1000 négyzetméter rendezett, nagy méretű telken fúrt kút, vasbeton medencealap, automata öntözőrendszer, melléképület (kb. 25 Nm) is található.
HELYISÉGEK:
Földszint:
- amerikai konyhás nappali (54 nm)
- 3 szoba (12, 13, 16 nm)
- Mosókonyha (3 nm)
- Fürdőszoba (9 nm)
- Külön wc (2 nm)
- Tároló (3 nm)
- 2 Terasz (14, 18 nm)
GARÁZS: 36 nm, 2 állásos, fűtött
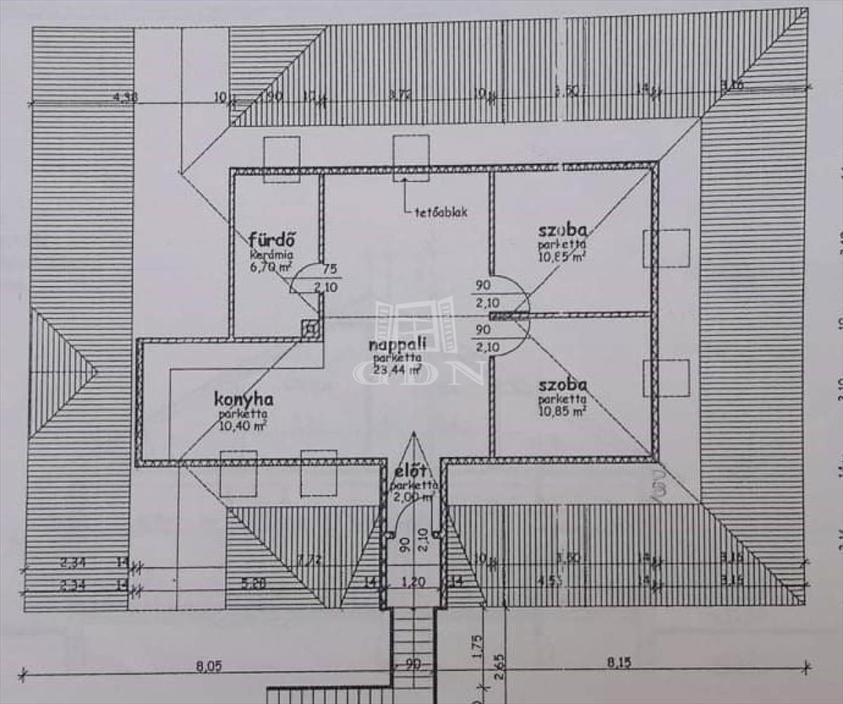
Tetőtér:
- amerikai konyhás nappali (35 nm)
- 2 szoba (11, 11 nm)
- Fürdőszoba, wc (7 nm)
- Tároló
MŰSZAKI ADATOK:
- Fűtés: cirkós gázfűtés, infrapanel, padlófűtés
- Klíma: minden szobában van (tetőrben hűtő-fűtő)
- Falak: 30 cm vastag Porotherm téglából
- Válaszfalak: Porotherm tégla
- Szigetelés: 8 cm
- Tető: cserépfedés
KÖRNYÉK:
Tordas az ország egyik legbiztonságosabb települése, ahol lovarda, sportközpont, kerékpárút, horgásztó és gyönyörű, csendes környezet fogadja az ide hazajárókat.
INFRASTRUKTÚRA:
A háztól rövid sétával elérhető az iskola, óvoda, orvosi rendelő, sportközpont, bolt és étterem, valamint a közelben található a Western falu élménypark is.
KÖZLEKEDÉS:
Autóval 5 perc az M7-es autópálya, 20 perc alatt elérhető az M4-es metró kelenföldi végállomása, illetve az onnan induló villamosok. Buszmegálló 7 perc sétára van, amivel 10 perc Martonvásár és a vasútállomásról 25 perc a Budapest Déli pályaudvar.
Ideális választás összeköltözőknek, nagycsaládosoknak vagy azoknak, akik a sajátjuk mellett egy különálló, kiadható lakás vásárlásában is gondolkodnak.
Mindenkinek ajánlom, aki egy befogadó, nyitott közösséget keres családjával ebben a csodálatos zöld környezetben, közel a fővároshoz.
Jöjjön el, nézze meg és nem fog csalódni!
AMENNYIBEN nem rendelkezik a teljes vételárral, segítünk Önnek megtalálni a legjobb megoldást!
BANKFÜGGETLEN hitelcentrumunk minden elérhető bank és hitelintézet ajánlatát versenyezteti az Ön kedvéért, ráadásul díjmentesen. Önnek nincs más dolga, mint elbeszélgetni munkatársunkkal, aki a hallott információk alapján versenyre hívja a bankokat, hogy Ön hosszú távon is a legjobb konstrukciót kaphassa. a legjobb ajánlatokból végül Ön választhatja ki a nyertest. Munkatársaink sokéves szakmai tapasztalattal várják Önt, előre egyeztetve akár a normál munkaidő után is. Hitel.hu - Hasonlítsa össze a bankok lakáshitel ajánlatait

