Eladó felújítandó ház - Tura
- INGYENES HIRDETÉS FELADÁS
Ingatlan adatai
- Eladó vagy kiadó:Eladó
- Település:Tura
- Kategória:Ház
- Alkategória:Családi ház
- Alapterület:120 m2
- Telekterület:921 m2
- Csere is:Nem
- Hirdető:Cég
- Élő videón megtekinthető:Nem
- Építés éve:1940
- Szobaszám:3
- Állapot:Felújítandó
- Hány szintes az ingatlan:nincs megadva
- Tetőtér:nincs megadva
- Komfortosság:nincs megadva
- Pince:nincs megadva
- Parkolási lehetőség:nincs megadva
- Fűtés:Gáz (konvektor)
- Bútorozottság:nincs megadva
- Fényviszony:nincs megadva
- Tájolás:DK
- Kilátás:Utcai
- Internet:nincs megadva
- Klíma:nincs megadva
- Akadálymentesített:nincs megadva
- Energiatanúsítvány:nincs megadva
- Villany:Van
- Víz:Van
- Gáz:Van
- Csatorna:Utcában
- Kapcsolatfelvétel

Horváth Tibor
+36-(70)-467-6871
Mondd meg a hirdetőnek, hogy a megveszLAK-on találtad a hirdetést.
Hitel ajánlatok
Ingatlan hirdetés leírása
*** 1 db családi ház vételáráért cserébe 2 db LAKÁST KAP! *** ...
*** 1 Db családi ház vételáráért cserébe 2 db lakást kap! ***
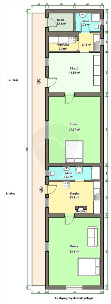
Lakjon az egyik 54 m2-es lakrészen és adja ki a másik lakrészt, amely 47 m2-es, ezáltal akár a lakás fenntartása/törlesztője ingyen lehet.
Tura központi részén eladó egy felújításra váró régi típusú vályogból épült parasztház. Nagy előnye, hogy jelenleg 2 külön lakrészből áll, összesen nettó 101 m2 + 20-30 m2 tároló és pince tartozik hozzá. a telek mérete 921 m2. Víz, villany és a gáz be van vezetve, viszont a csatorna csak az utcában található. Az elmúlt években a 2 fürdőszoba teljes felújításra került, illetve új 3x16 Amper lett bevezetve szabványosított szekrénybe. a két külön bejáratú lakás részben külön mérőórákkal rendelkeznek.
A központi elhelyezkedésnek köszönhetően minden a közelben megtalálható. M3-as autópálya 8-10 percen belül elérhető. Budapest 40-50 percen belül, akár tömegközlekedéssel is.
Ha saját célra szeretne ingatlant vásárolni és fontos, hogy két külön lakrész legyen, akkor ezt a lehetőséget ne hagyja ki. Akár befektetésre is alkalmas. További információért hívjon bizalommal! FIX 3% lakáshitelre megvehető
Tetszett ez az eladó Turai felújítandó 3 szobás családi ház? Hívd fel a hirdetőt most, és tudj meg mindent erről az eladó családi házról! Ha gondolod nézelődj tovább az eladó ház Tura oldal hirdetései között. Ennek az eladó háznak az ára 29900000 Ft és mivel az alapterülete 120 négyzetméter, ezért az átlagos négyzetméterára 249167 HUF/m2.
Az eladó házak menüpontban további hirdetések között is böngészhetsz. Ha van kedved, akkor böngészhetsz a Horváth Tibor összes hirdetése között, vagy akár a/az ingatlanmentor összes hirdetése között is.

