Eladó felújítandó ház - Tüskevár
- INGYENES HIRDETÉS FELADÁS
Ingatlan adatai
- Eladó vagy kiadó:Eladó
- Település:Tüskevár
- Kategória:Ház
- Alkategória:Családi ház
- Alapterület:161 m2
- Telekterület:1492 m2
- Csere is:Nem
- Hirdető:Cég
- Élő videón megtekinthető:Nem
- Építés éve:1920
- Szobaszám:6
- Állapot:Felújítandó
- Hány szintes az ingatlan:Földszintes
- Tetőtér:nincs megadva
- Komfortosság:nincs megadva
- Pince:nincs megadva
- Parkolási lehetőség:Udvaron
- Fűtés:Gáz (cirko)
- Bútorozottság:nincs megadva
- Fényviszony:Jó
- Tájolás:DNY
- Kilátás:nincs megadva
- Internet:nincs megadva
- Klíma:nincs megadva
- Akadálymentesített:nincs megadva
- Energiatanúsítvány:nincs megadva
- Villany:Van
- Víz:Van
- Gáz:Van
- Csatorna:Van
- Kapcsolatfelvétel

Zatykó Krisztina
+36-(70)-237-2705
Mondd meg a hirdetőnek, hogy a megveszLAK-on találtad a hirdetést.
Referencia szám: M325973
Hitel ajánlatok
Ingatlan hirdetés leírása
Eladó Ház, Tüskevár, Eladó felújítandó ház - Tüskevár
Vidéken ÚJRAKEZDŐK
FALUSI turizmusban GONDOLKODÓK
MEGFIZETHETŐ nyaralóra VÁGYÓK
GÖRGESSETEK!
Veszprém megye nyugati részén, a borairól híres Somló hegytől néhány kilométerre, Tüskeváron a Torna patak mellett, egy nagy telken elhelyezkedő két felújítandó lakóház, nyaraló, vagy vendégház eladó.
Tökéletes hely elvonulásra, vendéglátásra, szálláshely üzemeltetésre, vagy lakhatásra.
A kert végében patak, azon túl a természetvédelmi körzet terül el, túraútvonalakkal, kerékpárutakkal.
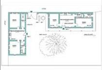
Az 1492 m2-es összközműves kertben két épület, diófa, fűzfa, kút és kerticsap található.
Tulajdoni lap szerint kivett lakóház, udvar, gazdasági épület. a lakóház (alaprajzon Ház 1. ) Szerkezete vályog, a gazdasági épület (alaprajzon Ház 2. ) -Ami istálló volt eredetileg- kőből épült.
Mindkét épületet a 2000-es években ízlésesen felújították, vendégházzá alakították. Alapterületük 80-80 m2. Alaprajzi kialakításuk hasonló: konyha-étkező-nappali, két szoba, fürdőszoba és tároló található bennük. a tetőtér beépíthető.
Fűtésük gáz cirkó kazán, padlófűtés és radiátor hőleadókkal. a kőházban (Ház 2. ) a fűtésrendszer javításra szorul. Az épületek felújítandóak.
Közművek közül víz, gáz, villany rendelkezésre áll.
Energetikai tanúsítvány nem áll rendelkezésre.
Mentse meg ön ezt a gyönyörű népi építészeti értéket. Akár a hat kilométer távolságban található Somló hegyi présházzal együtt is megvásárolható, melynek ára 15 millió Ft. a présház hirdetés azonosítója: M325978
Ha kérdése van vagy megtekintené, keressen.
Az energetikai tanúsítvány készítése folyamatban van, amint rendelkezésre áll, úgy azzal a hirdetés frissítésre kerül.
Referencia szám: m325973 FIX 3% lakáshitelre megvehető
Tetszett ez az eladó Tüskevári felújítandó 6 szobás családi ház? Hívd fel a hirdetőt most, és tudj meg mindent erről az eladó családi házról! Ha gondolod nézelődj tovább az eladó ház Tüskevár oldal hirdetései között. Ennek az eladó háznak az ára 27000000 Ft és mivel az alapterülete 161 négyzetméter, ezért az átlagos négyzetméterára 167702 HUF/m2.
Az eladó házak menüpontban további hirdetések között is böngészhetsz. Ha van kedved, akkor böngészhetsz a Zatykó Krisztina összes hirdetése között, vagy akár a/az OTPip Budapest XI. kerület Bartók Béla út 62 - OTP Ingatlanpont Iroda összes hirdetése között is.

