Eladó új építésű ház - Vácrátót
- INGYENES HIRDETÉS FELADÁS
Ingatlan adatai
- Eladó vagy kiadó:Eladó
- Település:Vácrátót
- Kategória:Ház
- Alkategória:Családi ház
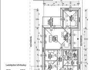
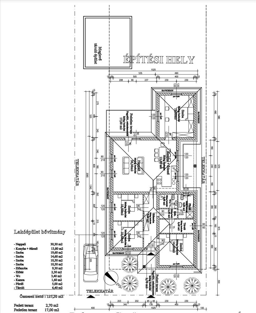
- Alapterület:124 m2
- Telekterület:781 m2
- Csere is:Nem
- Hirdető:Cég
- Élő videón megtekinthető:Nem
- Építés éve:2025
- Szobaszám:3 + 2 fél
- Állapot:Új építésű
- Hány szintes az ingatlan:Földszintes
- Tetőtér:nincs megadva
- Komfortosság:nincs megadva
- Pince:Nincs
- Parkolási lehetőség:Beállóban
- Fűtés:nincs megadva
- Bútorozottság:nincs megadva
- Fényviszony:nincs megadva
- Tájolás:nincs megadva
- Kilátás:nincs megadva
- Internet:nincs megadva
- Klíma:Van
- Akadálymentesített:nincs megadva
- Energiatanúsítvány:nincs megadva
- Villany:nincs megadva
- Víz:nincs megadva
- Gáz:nincs megadva
- Csatorna:nincs megadva
- Kapcsolatfelvétel

Gyurkó Melinda
+36-(30)-239-6175
Mondd meg a hirdetőnek, hogy a megveszLAK-on találtad a hirdetést.
Hitel ajánlatok
Ingatlan hirdetés leírása
Vácrátótón újépítésű gyönyörű, 5 szobás családi ház eladó nagy...
2025. Évi kezdéssel eladó egy 781 nm -es telken lévő új építésű családi ház Vácrátóton. Az ingatlan a Szent István lakóparktól nem messze, Vácrátót régebbi település részén helyezkedik el. Csendes utca, nyugodt környék.
A belső konyhai kép illusztráció!
Jogi információ: Belterületi ingatlan, övezeti besorolása Lf-2.
Az alapozás elkészült. Tervezett átadás: 2026. I. Negyedév
- Tervezett zöldterület 551 nm , az épület pedig 124 nm netto a garázzsal + kb. 12 Nm-es terasz.
Díjtalan, banksemleges hitelügyintézésben segítünk!
Profi ügyvédünket is igénybe veheti kedvezményes áron!
Fizetési ütemezés megbeszélés alapján, foglaló összege 10%, teljes önerő összege minimum kb. 25M Ft (foglaló+ előleg), a többi pedig a készültségi foknak megfelelően, ütemesen.
Főbb műszaki jellemzők:
- 30 cm-es porotherm nf tégla
- 10 cm-es válaszfaltégla, glettelve, színezve (fehér színben)
- betonfödém
- bramach cserépfedés (szabadon választható színben)
- 50 db konnektor kiállás
- hőszivattyú
- 2 db hűtő-fűtő klíma kiállás!
- Műanyag nyílászárók (fehér, 1 W/m²K üvegezéssel)
- Homlokzati hőszigetelés: 15 cm EPS-80
- Nemesvakolat: 1, 5 mm szemcseméret
- Deszka kerítés és1 db 3 m széles nagykapu és 1 db 90 cm széles kiskapu
- Ház körüli 50 cm széles betonjárda.
Megtekintés rugalmasan, napközben és hétvégén is! FIX 3% lakáshitelre megvehető
Tetszett ez az eladó Vácrátóti új építésű 3 egész és 2 fél szobás családi ház? Hívd fel a hirdetőt most, és tudj meg mindent erről az eladó családi házról! Ha gondolod nézelődj tovább az eladó ház Vácrátót oldal hirdetései között. Ennek az eladó háznak az ára 135000000 Ft és mivel az alapterülete 124 négyzetméter, ezért az átlagos négyzetméterára 1088710 HUF/m2.
Az eladó házak menüpontban további hirdetések között is böngészhetsz. Ha van kedved, akkor böngészhetsz a Gyurkó Melinda összes hirdetése között, vagy akár a/az Be My Home összes hirdetése között is.

