Eladó felújítandó ház Vaja
| Kedvencbe | Megosztás | Árfigyelő |
| FIX 3% lakáshitelre megvehető | ||
| 20 000 000 HUF | ||
Ingatlan adatai
- Eladó vagy kiadó:Eladó
- Település:Vaja
- Kategória:Ház
- Alkategória:Családi ház
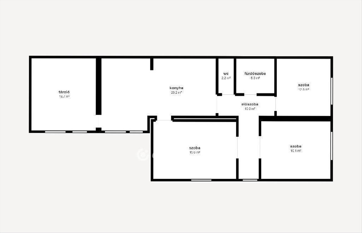
- Alapterület:112 m2
- Telekterület:800 m2
- Csere is:Nem
- Hirdető:Cég
- Élő videón megtekinthető:Nem
- Építés éve:1995
- Szobaszám:3
- Állapot:Felújítandó
- Hány szintes az ingatlan:Földszintes
- Tetőtér:nincs megadva
- Komfortosság:nincs megadva
- Parkolási lehetőség:nincs megadva
- Fűtés:Egyéb
- Bútorozottság:nincs megadva
- Fényviszony:Napfényes
- Tájolás:nincs megadva
- Kilátás:nincs megadva
- Internet:nincs megadva
- Akadálymentesített:nincs megadva
- Energiatanúsítvány:nincs megadva
- Villany:nincs megadva
- Víz:nincs megadva
- Gáz:nincs megadva
- Csatorna:nincs megadva
- Üzenetküldés
- Hívás

Referencia szám: M311712

Hitel ajánlat
Ingatlan hirdetés leírása
Eladó Ház, Vaja, Eladó felújítandó ház - Vaja
Csendes, kertvárosi otthon Vaja szívében eladó!Eladásra kínálunk Vaján, a nyugodt és barátságos Dessewffy utcában egy 112, 8nm-es családi házat, amely egy tágas, 800 nm-es telken helyezkedik el. Az ingatlan ideális választás lehet mindazoknak, akik szeretnék saját ízlésükre formálni otthonukat, és a város zajától távol, mégis mindenhez közel élni.
Az ingatlan jellemzői:
3 szoba + nappali-konyha, előszoba, fürdőszoba, külön WC
Nagy méretű terasz, ahol élvezheti a reggeli kávét vagy a nyári estéket
Melléképület fa tüzelésű kazánnal
Gazdálkodásra is alkalmas ól a hátsó udvarban
Tégla falazat, fa nyílászárók, hullámpala tető
Fűtés: fatüzelésű kazán biztosítja a meleget
Állapot: felújítandó, így tökéletes lehetőség, hogy saját elképzelése szerint alakítsa ki álmai otthonát!
Miért éppen ez az ingatlan? Mert a csendes környék, a tágas telek és a barátságos szomszédság együttese ideális helyszínt biztosít családoknak, kertészkedőknek vagy mindazoknak, akik szeretik a természetközeli, nyugodt életet.
Vaja egyik legkedveltebb részén, barátságos környezetben várja új tulajdonosát ez a hangulatos, nagy lehetőségeket rejtő családi ház!
Szeretnéd, hogy írjak hozzá egy rövidebb, tömörített verziót is, ami jól működik pl. Facebook-hirdetésben vagy apróhirdetési oldalon.
OTP Banki hátterünknek köszönhetően finanszírozási igényekben (pl. Otthon Start Hitelprogram, Babaváró, Falusi csok, CSOK Plusz, Lakáshitel, Személyi kölcsön stb. ), Illetve biztosítások tekintetében is díjmentesen, soron kívüli ügyintézéssel segítem ügyfeleim! Referenciaszám: m311712 FIX 3% lakáshitelre megvehető

