Eladó átlagos állapotú ház - Várvölgy
- INGYENES HIRDETÉS FELADÁS
Ingatlan adatai
- Eladó vagy kiadó:Eladó
- Település:Várvölgy
- Kategória:Ház
- Alkategória:Családi ház
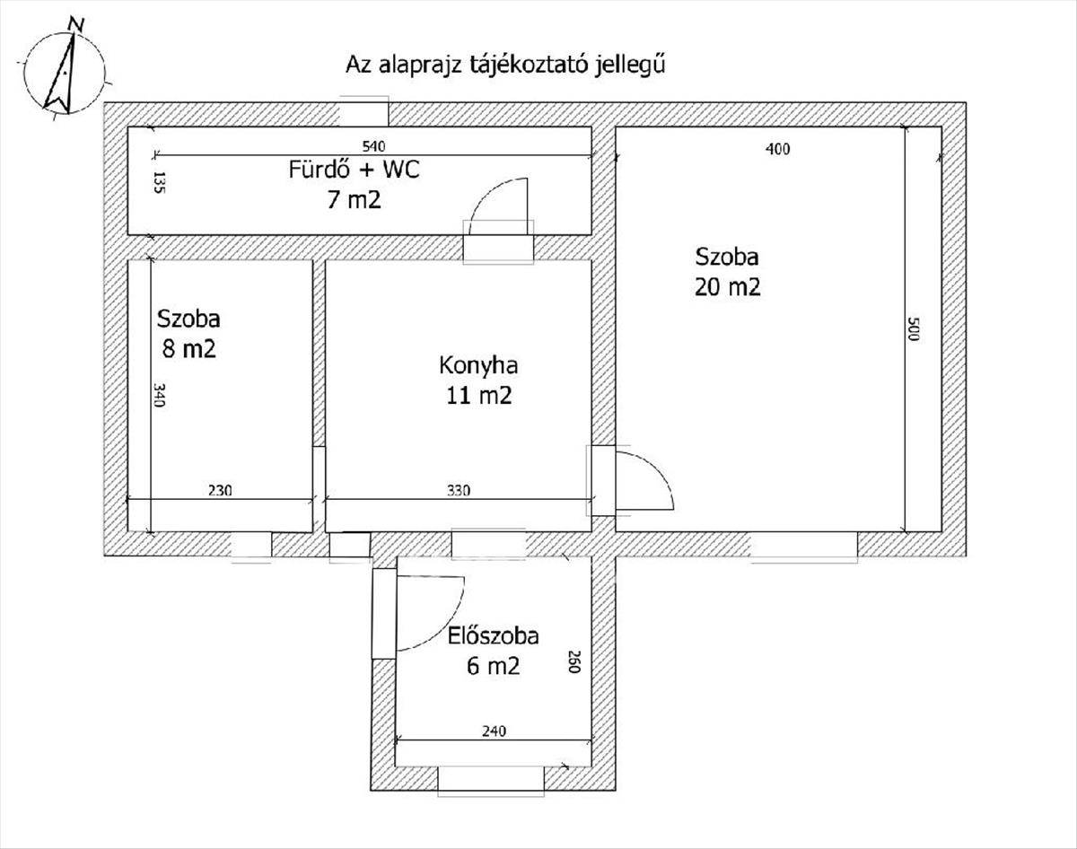
- Alapterület:52 m2
- Telekterület:467 m2
- Csere is:Nem
- Hirdető:Cég
- Élő videón megtekinthető:Nem
- Építés éve:1960
- Szobaszám:1 + 1 fél
- Állapot:Átlagos állapotú
- Hány szintes az ingatlan:Földszintes
- Tetőtér:nincs megadva
- Komfortosság:nincs megadva
- Pince:nincs megadva
- Parkolási lehetőség:Beállóban
- Fűtés:Cserépkályha
- Bútorozottság:nincs megadva
- Fényviszony:nincs megadva
- Tájolás:nincs megadva
- Kilátás:nincs megadva
- Internet:nincs megadva
- Klíma:nincs megadva
- Akadálymentesített:nincs megadva
- Energiatanúsítvány:nincs megadva
- Villany:Telken belül
- Víz:Telken belül
- Gáz:Utcában
- Csatorna:Telken belül
- Kapcsolatfelvétel

Boja Péter
+36-30-930-6036
Mondd meg a hirdetőnek, hogy a megveszLAK-on találtad a hirdetést.
Hitel ajánlatok
Ingatlan hirdetés leírása
Eladó családi ház Várvölgyön Várvölgy csendes részén kínálunk...
Eladó családi ház Várvölgyön
Várvölgy csendes részén kínálunk megvételre egy 52 m2-es, 1+1 szobás családi házat, amely az 1960-as években épült. Az ingatlan egy 467 m2-es telken helyezkedik el, falazata vegyes - kő, tégla és vályog -, a tető cserépfedést kapott.
A fűtésről cserépkályha és hűtő-fűtő klíma gondoskodik, a melegvíz ellátás villanybojlerrel megoldott. Az udvarban összesen négy ház található, mindegyik saját helyrajzi számon, önálló telekrésszel. a felkínált ingatlan tehermentes, és nincs rajta semmilyen szolgalmi jog bejegyezve.
Az ingatlan kiváló lehetőség azok számára, akik egy nyugodt falusi környezetben szeretnének otthonra találni, vagy saját elképzeléseik szerint felújítható házat keresnek.
Amennyiben felkeltette az érdeklődését, kérem, egyeztessen időpontot a megtekintéshez! FIX 3% lakáshitelre megvehető
Tetszett ez az eladó Várvölgyi átlagos állapotú 1 egész és 1 fél szobás családi ház? Hívd fel a hirdetőt most, és tudj meg mindent erről az eladó családi házról! Ha gondolod nézelődj tovább az eladó ház Várvölgy oldal hirdetései között. Ennek az eladó háznak az ára 24900000 Ft és mivel az alapterülete 52 négyzetméter, ezért az átlagos négyzetméterára 478846 HUF/m2.
Az eladó házak menüpontban további hirdetések között is böngészhetsz. Ha van kedved, akkor böngészhetsz a Boja Péter összes hirdetése között, vagy akár a/az Tapolca Batsányi utca 1 - OTP Ingatlanpont Iroda összes hirdetése között is.

